
Flat to rent 3+kk • 71 m² without real estateNa Petřinách, Prague - Břevnov
Na Petřinách, Prague - BřevnovPublic transport 1 minute of walking • Partially equipped • Balcony 4 m²Interested?
Communicate all private owners and save CZK 25,000 on commissions.
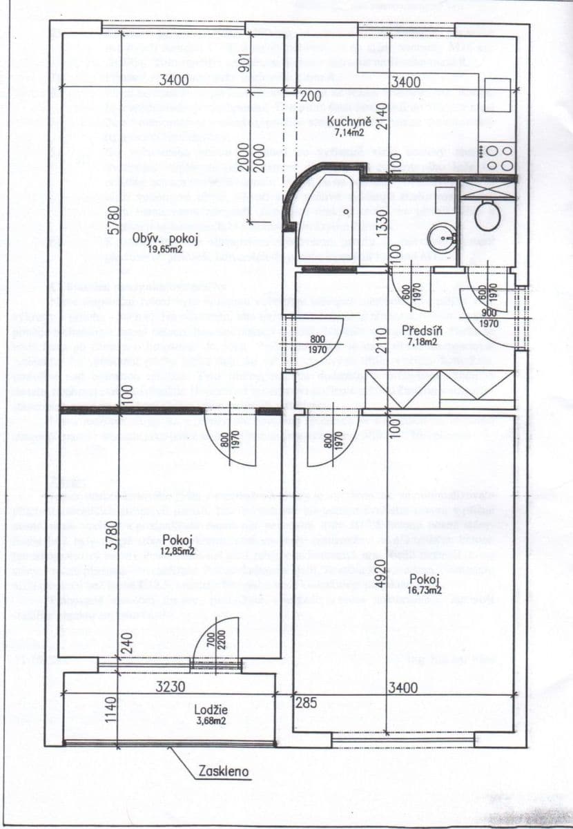
Nabízíme k pronájmu světlý tichý byt 3+kk po celkové rekonstrukci. Nachází se v panelovém domě ve zvýšeném přízemí . Byt o celkové obytné ploše 71 m² je částečně vybaven. Dispozice bytu nabízí kuchyni propojenou s obytným pokojem, dva samostatné pokoje, předsíň, záchod, koupelnu. K dispozici je zasklený balkon. Nájemné za byt činí 25 000 Kč, zálohová platba dle měsíčního předpisu pevných a zálohových plateb spojených s užíváním bytu je 5 900Kč (částka odpovídá 3 osobám v bytě, mírně se liší dle počtu bydlících osob). Energie - plyn, elektřina - možno přepsat na nájemce.
V případě zájmu mě prosím kontaktujte prostřednictvím zpráv na komunikační platformě Bezrealitky.cz
Property characteristics
| Available from | 02/12/2025 |
|---|---|
| Building construction | Precast concrete |
| Fully furnished | Partly |
| Heating | Central |
| Ownership | Personal |
| Reconstruction | Complete |
| Usable area | 71 m² |
| Condition | Very good |
|---|---|
| Layout | 3+kk |
| Floor | 1. floor out of 5 |
| Listing ID | 968219 |
| EPC | B - Very economical |
| Location | Residences |
| Price per unit | CZK 352 / m2 |
What does this listing have to offer?
| Balcony: 4 m² |
| MHD 1 minute on foot |
What you will find nearby
Interested?
Communicate all private owners and save CZK 25,000 on commissions.
Still looking for the right one?
Set up a watchdog. You will receive a summary of your customized offers 1 time a day by email. With the Premium profile, you have 5 watchdogs at your fingertips and when something comes up, they notify you immediately.

















