Office to rent • 307 m² without real estateAxel-Springer-Platz 2 Hamburg Neustadt Hamburg 20355
Axel-Springer-Platz 2 Hamburg Neustadt Hamburg 20355Public transport 1 minute of walkingFriendly, very bright, and versatile spaces in the heart of Hamburg. Double-sided lighting and glass walls create transparent areas throughout the property. Natural wood flooring and an open layout enhance the spatial experience and well-being.
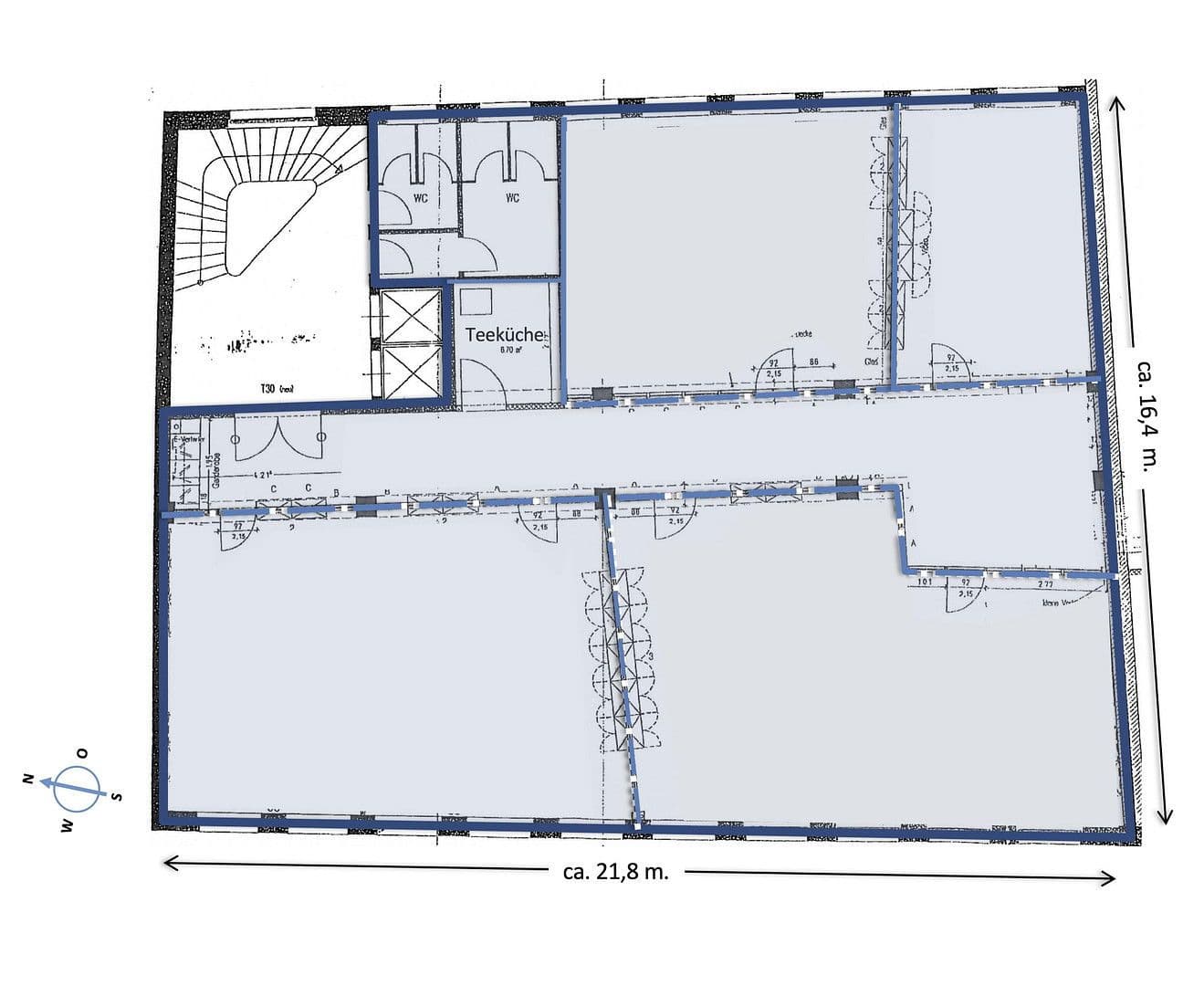
The spacious floor plan offers flexibility: suitable for both established and new uses in the changing landscape of office work. Ideal for communicative collaboration in attractively versatile spaces. If needed, some rooms can be subdivided. Rooms designed for teamwork, project work, task forces, and get-togethers – all on a dedicated floor. A striking example of moderate modernity from the mid-20th century's second Gründerzeit.
Also divisible and available as separate units of 72 m², 117 m², and 117 m², including shared use of a conference room, kitchenette, and get-together area. Ideal for startups and companies with growth potential.
You can hardly get more central: Hamburg’s inner city (Neustadt), Axel-Springer-Platz. Within a 5–7 minute walk are the Binnenalster, Jungfernstieg (S/U), Neuer Wall, Rathausmarkt (U), Gänsemarkt (U), Großneumarkt, Stadthausbrücke (S), and Rödingsmarkt (U). Only 5 minutes by public transport from the main train station and the port. Numerous shopping and dining options are in the immediate vicinity. Hotels catering to business and upscale tourism are within walking distance.
Solid wood parquet, glass walls and doors, team rooms, fiber-optic connection, LAN cabling, kitchen, built-in cabinets, completely renovated sanitary areas, and an externally mounted, remote-controlled sun shading system. Two fast elevators.
Also divisible and available as separate units of 72 m², 117 m², and 117 m², including shared use of a conference room, kitchenette, and get-together area. Ideal for startups and companies with growth potential.
Neuhaus Handels- und Verwaltungs-GmbH, Axel-Springer-Platz 2, 20355 Hamburg
All prices exclude VAT.
Property characteristics
| Age | Over 5050 years |
|---|---|
| Condition | After reconstruction |
| Listing ID | 967938 |
| Price per unit | €20 / m2 |
| Available from | 01/01/2026 |
|---|---|
| Floor | 3. floor |
| Land office | 307 m² |
What does this listing have to offer?
| MHD 1 minute on foot |
What you will find nearby
Still looking for the right one?
Set up a watchdog. You will receive a summary of your customized offers 1 time a day by email. With the Premium profile, you have 5 watchdogs at your fingertips and when something comes up, they notify you immediately.



















