House for sale 4+1 • 135 m² without real estateMarderweg 13, , Bavaria
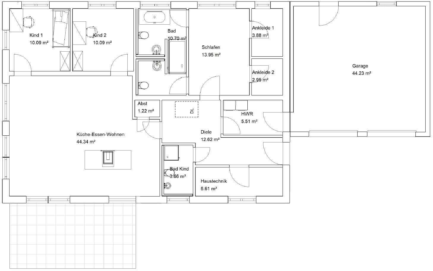
Marderweg 13, , BavariaPublic transport less than a minute of walking • GarageMassively built new bungalow is currently under construction and will be ready for occupancy starting in July 2026. The building offers a single-story living concept with an open plan living, dining, and kitchen area that directly adjoins the entrance area. The kitchen, which is prepared for a cooking island, features a separate storage room. The utility room connects the living house with the double garage, ensuring short distances.
The floor plan includes two flexibly usable rooms as well as a master suite comprising a bedroom, two dressing rooms, and two directly connected bathrooms. Another guest bathroom is centrally located in the house. The south-facing terrace is planned with an aluminum terrace roof and serves as an extended outdoor living area.
The equipment includes a photovoltaic system with 9.1 kWp as well as an air-to-water heat pump. The interior design – in particular the flooring, sanitary fittings, and doors – can be selected during the sampling phase. Special requests can still be considered by mid-January 2026 upon consultation.
The bungalow is being built in the new development area Gleitsweg in Irchenrieth. The location offers short distances to shopping facilities, schools, childcare, and medical care. Its proximity to Weiden i.d.OPf. and the A6 provides good access to regional employers and surrounding cities.
The area is characterized by residential development, green spaces, and a quiet neighborhood structure, making it suitable for families as well as for individuals seeking a one-story living concept.
Features:
- 2.80 m ceiling height, floor-to-ceiling windows with 2.50 m height
- Villeroy & Boch tiles in bathroom and utility areas
- Parquet flooring in the living area
- Underfloor heating throughout the house
- Air-to-water heat pump as the central heating system
- LED downlights in almost all rooms, including the garage
- Electric roller shutters
- Switch and socket program by Busch-Jaeger
- Sanitary equipment by Grohe
- Direct access from the double garage to the house
- Terrace roofing made of aluminum and laminated safety glass (VSG)
- Rainwater cistern
- Individual selection options during the sampling phase
Key Data:
- Living area: 135 m²
- Plot: approx. 567 m²
- Rooms: 3 bedrooms or 2 rooms + master suite
- Dressing rooms: 2
- Bathrooms: 2 + guest bathroom
- Solid double garage
Completion: July 2026
JOWI Immo GmbH
Headquarters and registration: Nuremberg, AG Nürnberg HRB 44975
Represented by its managing director
Josef H. Sechser M. Sc. Real Estate
Ostendstraße 161, 90482 Nuremberg
Telephone +49 172 82 56 401
kontakt@jowi-immo.de
Permit according to § 34c Paragraph 1 Sentence 1 Number 3a of the Trade Regulation Act (property developer)
Supervisory authority: Chamber of Industry and Commerce for Munich and Upper Bavaria, Max-Joseph-Str. 2, 80333 Munich
Property characteristics
| Age | Over 5050 years |
|---|---|
| Layout | 4+1 |
| EPC | A - Extremely economical |
| Land space | 567 m² |
| Price per unit | €3,926 / m2 |
| Condition | New-build |
|---|---|
| Listing ID | 967936 |
| Usable area | 135 m² |
| Total floors | 1 |
What does this listing have to offer?
| Wheelchair accessible | |
| MHD 0 minutes on foot |
| Garage | |
| Terrace |
What you will find nearby
Still looking for the right one?
Set up a watchdog. You will receive a summary of your customized offers 1 time a day by email. With the Premium profile, you have 5 watchdogs at your fingertips and when something comes up, they notify you immediately.




