
Flat for sale 3+1 • 62 m² without real estateJiřího Wolkera, Nymburk - Nymburk, Středočeský Region
Jiřího Wolkera, Nymburk - Nymburk, Středočeský RegionPartially equippedProdej bytu 3+1/L 62 (celková plocha) m 2, J. Wolkera, Nymburk 5 500 000 Kč
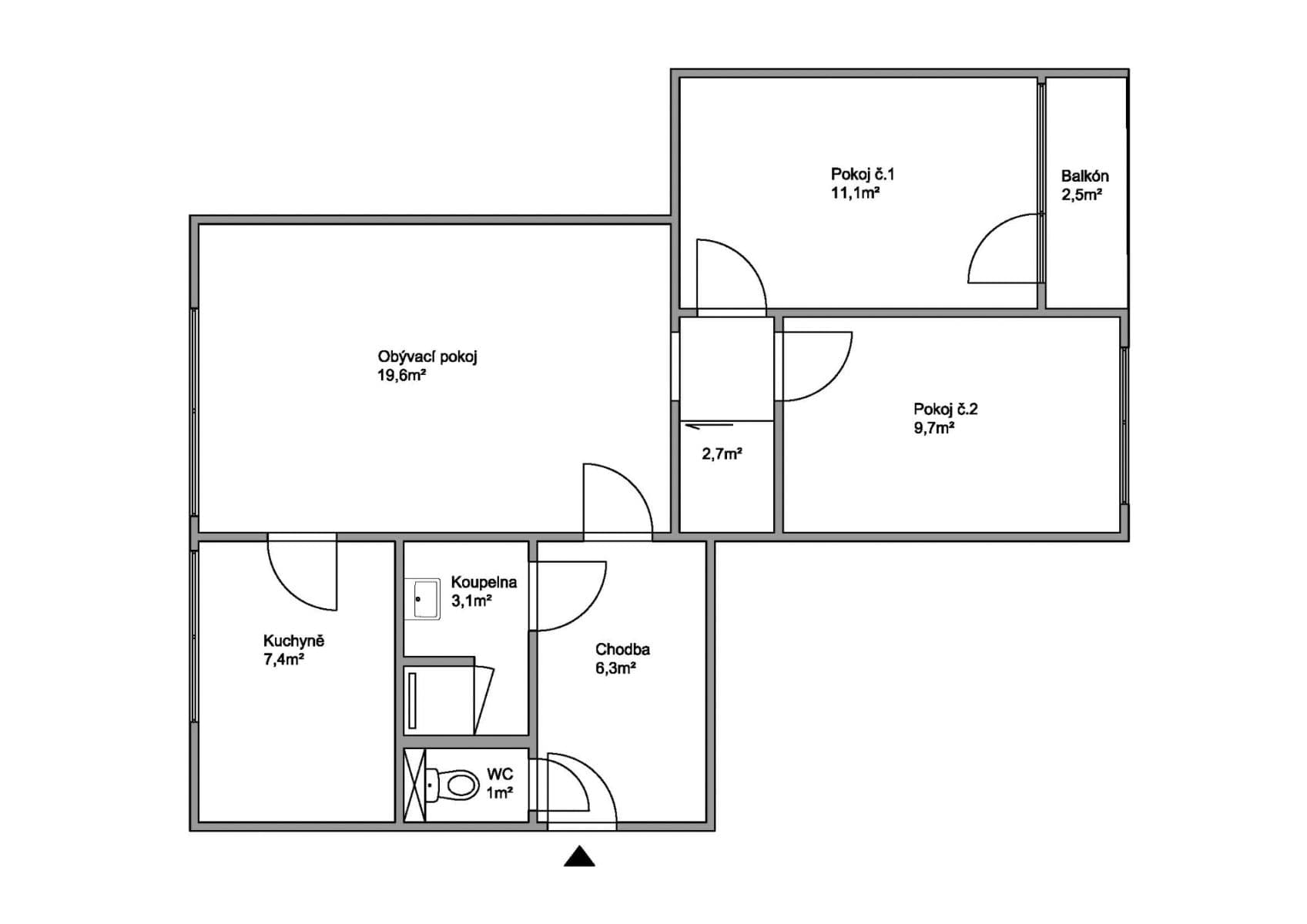
Parametry bytu:
dispozice: 3+1/L, sklepní kóje
plocha bytu: 62 m 2
umístění: 1. NP,
orientace: S/J
Nabízím k prodeji byt 3+1 v osobním vlastnictví o velikosti 62 m2 s lodžií v 1. NP třípodlažního domu.
Na vlastním odkoupeném pozemku.
Byt je orientovaný obývacím pokojem a kuchyní na sever, druhé dva pokoje na jih.
Byt prošel v průběhu let kompletními rekonstrukcemi, které dotvořily bytovou jednotku k dokonalému bydlení bez dalších potřebných úprav.
Kuchyně na míru z pevných materiálů MDF. Rozvody elektřiny, technická místnost. Vestavěné úložné prostory : tech. místnost, kóje a lodžie ( uzamykatelná). Koupelna a záchod komplet po rekonstrukci.
Dům disponuje zateplenou fasádou, novými stoupačkami. V poslední řadě nová výmalba společných prostor, nové venkovní schodiště, domácí telefony.
SVJ spravuje realitní kancelář s dobrým výsledkem hospodaření. Společná hypotéka na velké rekonstrukce splacena, tj. nynější náklady na bydlení bez energií cca 4.500 Kč.
V okolí najdete vše potřebné, školu, školku, obchody. Do Prahy vlakem 39 minut.
Prohlídky bytu dle osobní domluvy, vždy nejlépe víkend.
RK nevolat !
Property characteristics
| Available from | 24/11/2025 |
|---|---|
| Building construction | Precast concrete |
| Fully furnished | Partly |
| Listing ID | 967849 |
| EPC | C - Economical |
| Usable area | 62 m² |
| Condition | Good |
|---|---|
| Layout | 3+1 |
| Floor | 1. floor out of 3 |
| Ownership | Personal |
| Location | Residences |
| Price per unit | CZK 88,710 / m2 |
Are you choosing a apartment?
Make sure you have all the important information!
What you will find nearby
Still looking for the right one?
Set up a watchdog. You will receive a summary of your customized offers 1 time a day by email. With the Premium profile, you have 5 watchdogs at your fingertips and when something comes up, they notify you immediately.






















