
Flat to rent 3+1 • 67 m² without real estateDaimlerstraße 4, , Baden-Württemberg
Daimlerstraße 4, , Baden-WürttembergPublic transport 4 minutes of walkingThis accessory apartment with a separate entrance is part of a KFW55 new build (heating with a heat pump) from 2016. It will be available from February 1, 2026, possibly even earlier.
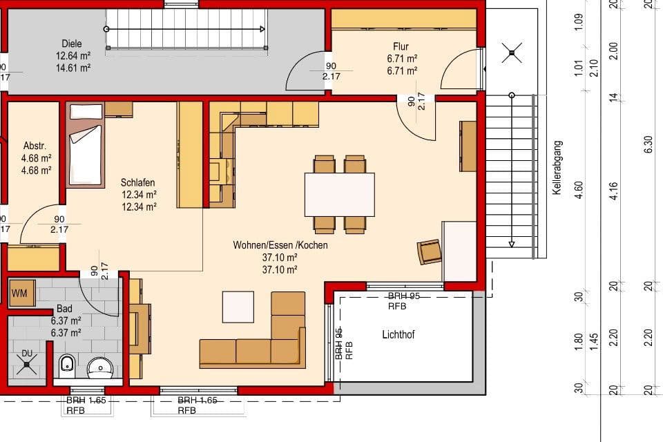
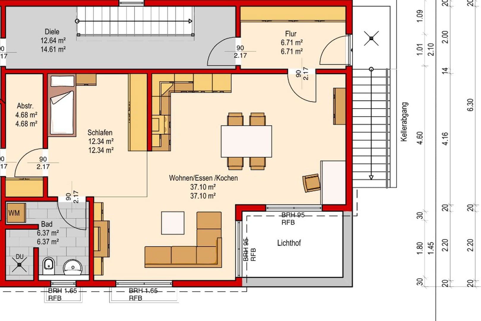
A total of 67 sqm is available, including 12 sqm of usable space.
The apartment is located in the basement (lower level) of a new building from 2016 on a side street in Kiebingen. Kiebingen itself has excellent public transport connections; there is a very good link to Tübingen or Rottenburg via train (about a 5-minute walk) or bus (about a 3-minute walk).
The open-plan apartment is mostly equipped with vinyl flooring (tiles in the bathroom and storage room) and underfloor heating. It also includes a fitted kitchen (sink, dishwasher, refrigerator, stove, oven, exhaust system) and high-quality bathroom fixtures; it is otherwise unfurnished.
Satellite connection. High-speed DSL is possible up to 100 Mbit/s.
Please note that the hall shown in the picture (highlighted in gray) is not part of the rental.
Pets and the consumption of tobacco products are not allowed.
Please note the floor plan and the pictures; the area between the living and sleeping spaces is not completely separated by a wall.
The total rent, including the base rent, kitchen rent, and the listed advance payments, amounts to €950, consisting of:
The base rent is €850/month.
The rent for the fitted kitchen is €30/month.
Advance payment for hot water preparation and heating costs (FBH) is €30/month.
Advance payment for proportionate property tax/building insurance is €20/month.
Advance payment for water supply and sewage is €10/month.
Renovation fee is €10/month.
General electricity is to be paid separately by the tenant.
Property characteristics
| Age | Over 5050 years |
|---|---|
| Condition | Good |
| Floor | Floors not specified |
| EPC | A - Extremely economical |
| Price per unit | €13 / m2 |
| Available from | 01/02/2026 |
|---|---|
| Layout | 3+1 |
| Listing ID | 967813 |
| Usable area | 67 m² |
What does this listing have to offer?
| MHD 4 minutes on foot |
What you will find nearby
Still looking for the right one?
Set up a watchdog. You will receive a summary of your customized offers 1 time a day by email. With the Premium profile, you have 5 watchdogs at your fingertips and when something comes up, they notify you immediately.














