
Flat for sale 3+1 • 65 m² without real estateFrankfurt Höchst Hessen 65929
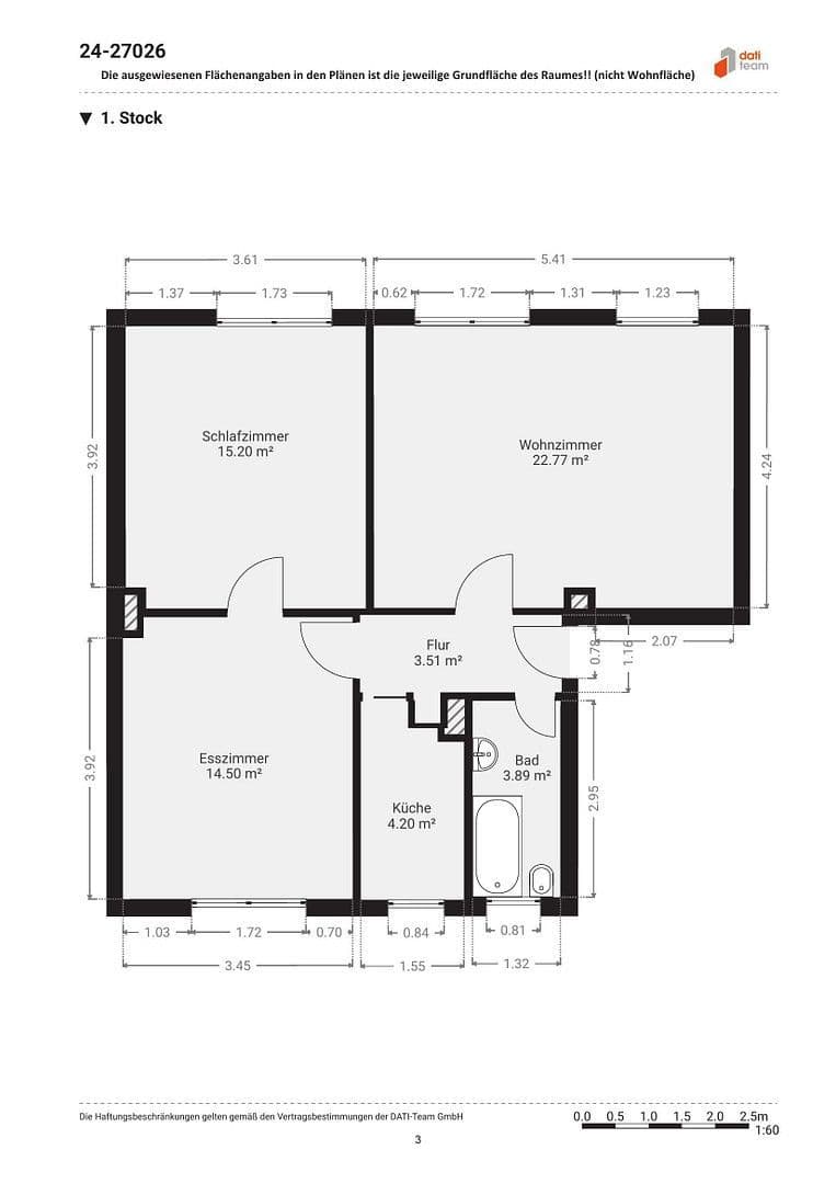
Beautiful, very bright three- to four-room apartment on the first floor of a well-maintained six-unit building. The apartment has been freshly renovated and is ready for immediate occupancy, but it is also very well suited for renting—for example, to a shared apartment community. A drywall partition has been installed, creating three SEPARATE ROOMS (not yet shown on the floor plan), whose doors even feature security locks.
Ideal for owner-occupiers, families, or as an investment – also suitable for shared apartment living.
The apartment is located on leasehold land owned by the City of Frankfurt. The leasehold currently runs until 2025 and can be extended by the city for another 99 years if all owners agree.
Originally four rooms – two were combined into a spacious living area, but they can be separated again. One of the rooms is a through room.
The apartment offers an excellent layout and a pleasant living atmosphere thanks to large windows and plenty of natural light. It is situated in a central yet quiet location in the Frankfurt-Höchst district. The well-maintained residential complex is set in a green environment with mature trees and a communal garden available for shared use.
It is about a 7-minute walk to Höchst station with S-Bahn and regional train connections, and the motorway access is excellent. All daily necessities such as supermarkets, pharmacies, schools, doctors, and restaurants are conveniently within walking distance. Despite the proximity to the airport, there is no aircraft noise.
The renovated, bright three- to four-room apartment features high-quality laminate and tiles, a daylight bathroom with a bathtub, electric roller shutters in the living room, as well as its own Junkers gas-fired on-site heating (for its own consumption only). A large, dry basement storage room (approx. 12 m²) with a window, electricity, and a steel door is ideal for use as a hobby room or workshop. Additionally, there is a communal laundry room, bicycle storage, and a well-maintained garden available for the use of all residents. With no elevator and no flat roof, the maintenance costs are low.
The owners’ association has a reserve fund of approximately €130,000, with about €12,000 attributable to this apartment, which can be used for repairs or modernization. The leasehold fee is approximately €75 per month, and additional costs come in at under €300 per month, including reserves.
The sale is conducted directly by the owner – no broker commission. The apartment is available for immediate occupancy, and almost all furniture can be taken over free of charge upon request.
The building was constructed around 1955. According to the energy certificate, the energy demand is approximately 140 kWh/(m²·year), Class E.
All information has been provided to the best of our knowledge – please verify all details during a viewing. Included with the apartment is a proportional share of the communal property (e.g., commercial space), which is expected to be sold in 2026 – a proportional share of around €3,000 could accrue to the new owner.
Please contact preferably by email, as telephone contact is only limitedly available. Inquiries from brokers will not be answered.
Property characteristics
| Available from | 23/11/2025 |
|---|---|
| Layout | 3+1 |
| Listing ID | 967325 |
| Price per unit | €3,062 / m2 |
| Condition | After reconstruction |
|---|---|
| Floor | Ground floor |
| Usable area | 65 m² |
What does this listing have to offer?
| Basement |
| MHD 2 minutes on foot |
What you will find nearby
Still looking for the right one?
Set up a watchdog. You will receive a summary of your customized offers 1 time a day by email. With the Premium profile, you have 5 watchdogs at your fingertips and when something comes up, they notify you immediately.













