
Flat to rent 2+kk • 82 m² without real estate, Baden-Württemberg
, Baden-WürttembergPublic transport less than a minute of walking • LiftAre you looking for a home that combines modern design with a warm atmosphere? This bright 2.5-room apartment is perfect for couples or anyone who appreciates stylish and comfortable living!
Features & Characteristics
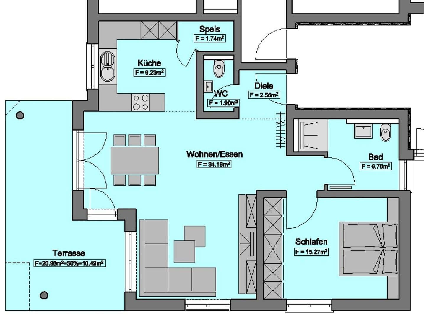
• Open living and dining area with direct access to the terrace
• Generous kitchen area
• Daylight bathroom with shower
• Separate guest WC
• Energy efficient: KfW-55 standard for low energy costs
• Underfloor heating: Individually controllable in each room
• High-quality materials: vinyl flooring, exclusive sanitary fittings
• Network connections in all rooms
• Parking options: a parking space or an underground garage space is available, which can be rented additionally.
Parking space = €35/month
Underground garage space = €55/month
This dream apartment is available immediately and is waiting to become your new home.
Contact us for a viewing! We look forward to your inquiry and are happy to answer any questions
(by email or by phone)
Contact person: Mr. Kopp 0176 / 2094326 // d.kopp@kopp-haus.de
The property is located in Horb am Neckar. Within walking distance, there are several restaurants, bakeries, supermarkets, and a café. A shopping center, primary school, and kindergarten are available. You will also find good medical facilities and various leisure and sports options (including several fitness studios) in the immediate vicinity.
The town of Bildechingen is situated 3.5 km northeast of Horb am Neckar at the southwestern edge of the Upper Gäu, or on the eastern edge of the Northern Black Forest, at an elevation of 504 m above sea level, and has approximately 2,200 inhabitants.
• Elegant finish
• Construction by the best craftsmen from the region guarantees you top quality and lasting value
• High-quality windows with triple glazing / insulated glass windows
• The latest central heating technology with regenerative and cost-saving systems, independent of oil or gas
• Underfloor heating with individual room control
• Towel radiator in the bathrooms
• High-quality construction
• Balcony/terrace, full bathroom, guest WC, walk-in shower, and much more...
• Generous window areas
• Apartments with terrace
• Natural stone window sills
• Separate storage room
• Healthy indoor climate
• Ecological, solid construction with clay brickwork
• High-quality construction in KfW Efficiency House 55 standard.
Property characteristics
| Age | Over 5050 years |
|---|---|
| Layout | 2+kk |
| EPC | A - Extremely economical |
| Price per unit | €11 / m2 |
| Available from | 05/12/2025 |
|---|---|
| Listing ID | 967227 |
| Usable area | 82 m² |
What does this listing have to offer?
| Balcony | |
| Basement | |
| MHD 0 minutes on foot |
| Wheelchair accessible | |
| Lift | |
| Terrace |
What you will find nearby
Still looking for the right one?
Set up a watchdog. You will receive a summary of your customized offers 1 time a day by email. With the Premium profile, you have 5 watchdogs at your fingertips and when something comes up, they notify you immediately.





