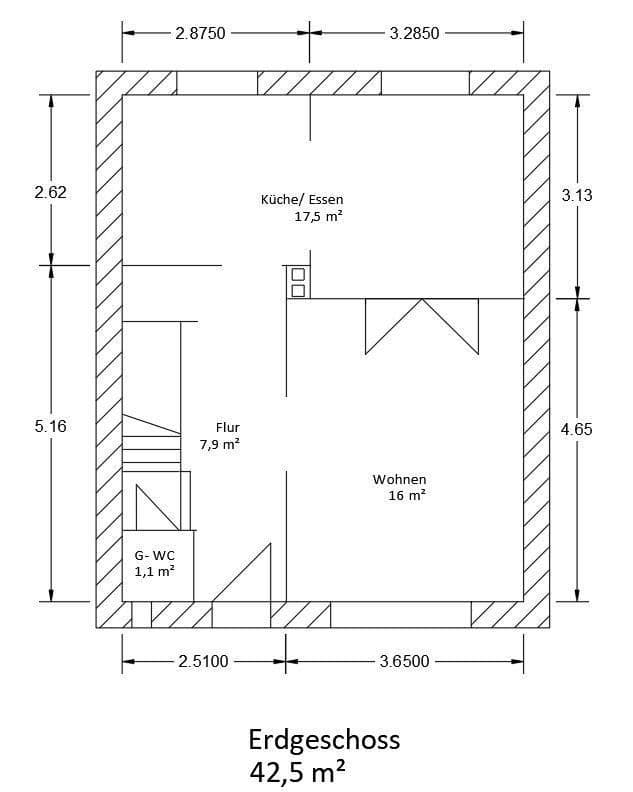
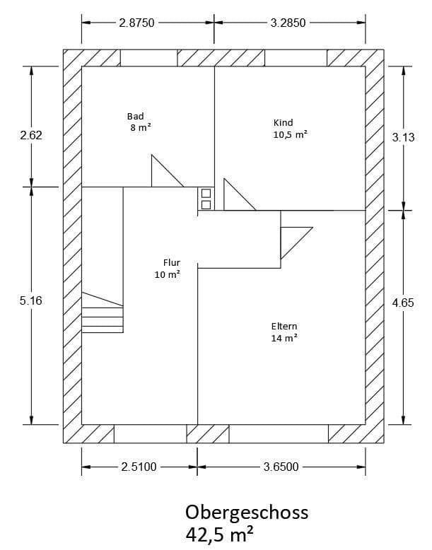
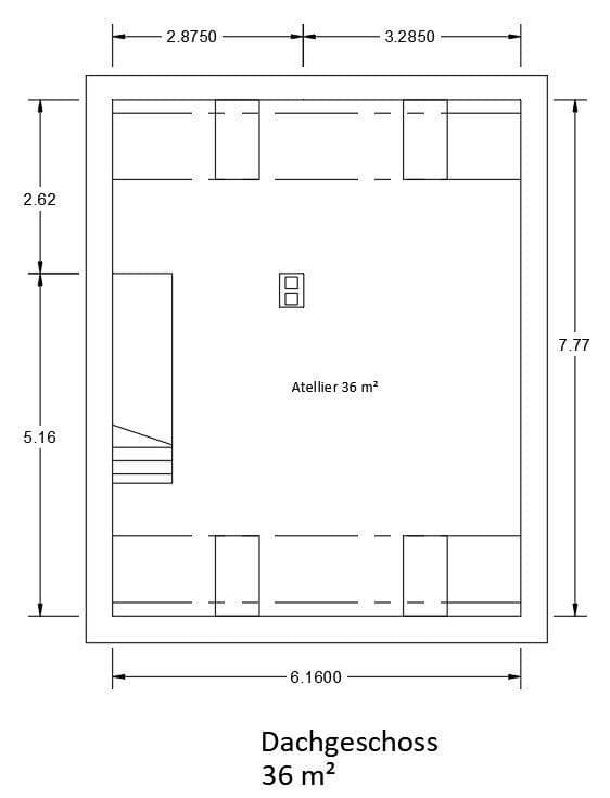
House for sale 4+kk • 121 m² without real estateBergstraße 37c, , Saxony-Anhalt
The house is located in the midst of a terraced housing estate in the northern part of the city of Stendal. It was built in 1958 and features a separate garage on the property as well as a basement, ground floor, upper floor, and attic. It has been comprehensively and tastefully renovated and offers modern living comfort at a high standard.
The bathroom and guest WC have been completely refurbished. New flooring has been installed throughout the house, and the walls and doors have been renewed. The parquet floor runs through large parts of the entire house, meeting the highest standards of modern design.
The house is heated by an efficient gas central heating system. Significant improvements in energy efficiency were achieved through the insulation of the external walls as well as the attic.
The heating system is from 2007. In 2025, new triple-glazed windows and doors were partly installed – ideal for thermal and sound insulation. The electrical system was also completely renewed in 2025.
The terrace offers an idyllic view of the greenery and invites you to relax and unwind. The quiet location and high-quality fittings make this house an ideal home for lovers of modern design.
The house is located in the northern part of Stendal, in a sought-after residential area (North), which is very well connected to the city’s main destinations.
You can reach Stendal Hochschule train station in about 3 minutes by bike or a 10-minute walk. This ensures quick and straightforward access to local and long-distance public transport.
The distance to Stendal Hochschule is one kilometer. By bike, you can be on campus in about 3 minutes. This proximity to the university could be particularly advantageous for academic staff or university employees.
There are several shopping opportunities in the immediate vicinity. The nearest supermarket is 400 meters away and can be reached on foot in about 4 minutes. By bike, it takes approximately 2 minutes. Additional shops and amenities can be found nearby.
The old town of Stendal, which is considered the cultural center of the city with its historical buildings and leisure facilities, is located 1.2 kilometers away. You can cover this distance by bike in about 5 minutes.
For medical care, the hospital is 750 meters away, which is about a 2-3 minute bike ride. Additionally, you will find several doctors’ offices and pharmacies in the area that are easily accessible.
Commuters and travelers benefit from the quick motorway connection. The exit to the future A 14 Stendal-Nord A3 is only a 10-minute drive away, allowing you to quickly set off in the direction of Magdeburg.
Recreation and leisure opportunities are provided by the surrounding green spaces. Here, you have the opportunity to go for walks or relax in a quiet environment.
Overall, the location of the house is characterized by excellent accessibility to key destinations as well as a pleasant mix of urban infrastructure and a peaceful residential setting.
Lange Immoprojekt GmbH
Hof Eichenweg 14
39576 Stendal
Property characteristics
| Age | Over 5050 years |
|---|---|
| Condition | After reconstruction |
| Listing ID | 967181 |
| Land space | 221 m² |
| Price per unit | €2,471 / m2 |
| Available from | 24/11/2025 |
|---|---|
| Layout | 4+kk |
| Usable area | 121 m² |
| Total floors | 3 |
What does this listing have to offer?
| Balcony | |
| Garage | |
| MHD 2 minutes on foot |
| Basement | |
| Parking | |
| Terrace |
What you will find nearby
Still looking for the right one?
Set up a watchdog. You will receive a summary of your customized offers 1 time a day by email. With the Premium profile, you have 5 watchdogs at your fingertips and when something comes up, they notify you immediately.


































