Flat to rent 4+1 • 139 m² without real estateGartenstraße 15, , Schleswig-Holstein
Gartenstraße 15, , Schleswig-HolsteinPublic transport 3 minutes of walkingThis 5-room apartment is located on the raised ground floor of a charming multi-family house dating back to 1964.
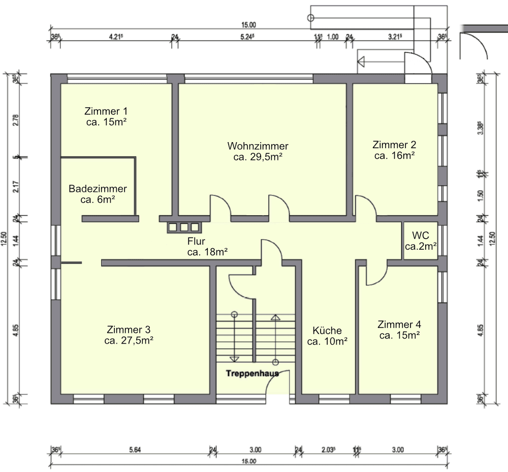
Overall, the apartment offers approximately 139 m² of living space. The floor plan is practical and well thought-out: from the hallway, you can access the spacious living room, four additional rooms, the kitchen, the bathroom, as well as a separate toilet.
The rooms are bright and generously proportioned. The apartment is well suited for families or couples who desire plenty of space and a clear room layout.
The residential building is centrally located in the prime area of Bad Segeberg. From the very quiet Garden Street, it is just a stone’s throw to the lively pedestrian zone with its varied gastronomy and extensive shopping opportunities. The Kurhausstraße can be reached on foot in less than 5 minutes, while the popular Kirchstraße or the weekly market are under a 10-minute walk away. Also within walking distance are various doctors, the Segeberg Clinics, as well as several schools and kindergartens. The large Segeberg Lake, only a few minutes away, invites you to take a walk and features pedal boat rental, an outdoor swimming pool, and its own sailing club.
Bad Segeberg, with its over 16,000 inhabitants, is the third-largest town in the Segeberg district. It benefits from excellent motorway connections in the triangle between Kiel (A21), Lübeck (A20), and Hamburg (A21). After Neumünster, you can reach it by car in half an hour via the B205. Hamburg and Lübeck are conveniently and quickly accessible by train via Bad Oldesloe. The train connection to Neumünster is even available without any transfers.
But it is not just the location that makes Bad Segeberg so attractive. Beyond the city limits, Bad Segeberg is known for the annual Karl May Festival held at the 91-meter-high chalk hill. In addition to good shopping opportunities, visitors and residents can also enjoy an extensive range of cultural and leisure activities. The Bat Experience Exhibition, the Museum Alt-Segeberger Bürgerhaus, the Kalkberg caves, and the Marienkirche are just a few examples. Throughout the year, various festivals and events take place, such as the Segeberg Cultural Summer or the summer concerts on the open-air stage.
The well-known Möbel-Kraft AG, as well as the Association of Statutory Health Insurance Physicians and the Medical Association of Schleswig-Holstein, have their headquarters here. The town also offers various schools, including a folk high school.
Overall, the apartment is in good condition. The walls are painted white and the floors mostly consist of easy-care laminate. Tiles are installed in the kitchen and bathroom. The kitchen is conveniently accessible from the hallway. Large windows ensure plenty of daylight. The heating system and hot water system of the building were renewed in 2025.
The apartment is currently rented to a care service and can be taken over at the earliest from January 1, 2026. The existing bathroom will be renovated before move-in and a completely new kitchen will be installed – in the room marked on the floor plan (kitchen 10 m²). The kitchen shown in the pictures is only a temporary “office kitchen” of the current tenant.
The minimum rental period is 12 months. If you have any questions or would like to arrange an appointment, please feel free to get in touch with us at any time. We would be happy if you could provide us with the most important information with your inquiry (income, number of residents, desired move-in date, etc.), so that we can process your request efficiently.
Property characteristics
| Age | Over 5050 years |
|---|---|
| Layout | 4+1 |
| EPC | G - Extremely uneconomical |
| Price per unit | €10 / m2 |
| Condition | Good |
|---|---|
| Listing ID | 966739 |
| Usable area | 139 m² |
What does this listing have to offer?
| MHD 3 minutes on foot |
What you will find nearby
Still looking for the right one?
Set up a watchdog. You will receive a summary of your customized offers 1 time a day by email. With the Premium profile, you have 5 watchdogs at your fingertips and when something comes up, they notify you immediately.









