Commercial property for sale • 327 m² without real estateGewerbeweg 4 Großmehring Bayern 85098
Gewerbeweg 4 Großmehring Bayern 85098Public transport 3 minutes of walking • GarageHere is the English translation of the text:
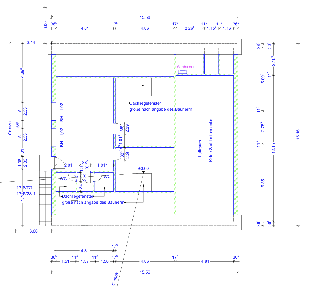
The property offered here essentially comprises three units: the commercial units on the ground floor and an attic apartment above.
Unit 1 – Automotive Trade with Office and Warehouse
The first commercial unit is currently used as an automotive or used car dealership. The indoor area offers ample space for a lifting platform and the yard area is suitable for vehicles, complemented by a practical office, a small separate parts storage, as well as a guest toilet with shower. A spiral staircase leads to a cozy break room on the upper floor. This unit is ideal for automotive, craft, or technical services.
Unit 2 – Office with Garage/Storage Area
The second unit consists of a bright office with several workstations and many windows facing south and west. Attached is a garage that is currently used as storage and offers versatile possibilities—for instance, for administration, an agency, or a commercial operation with storage needs. The well-maintained fittings and good lighting create a pleasant working atmosphere. The office unit is subject to certain safety requirements that preclude the publication of images. However, a personal viewing is possible at any time.
Unit 3 – Attic Apartment with Southern Orientation
The approximately 80 m² apartment in the attic features an open living and kitchen area in the hallway, a functional bathroom, two bedrooms, and a separate living room. The rooms are designed in a friendly style, with radiators and roof windows to ensure a comfortable living climate. Thanks to the southern orientation, the apartment is filled with light and feels inviting. Access is via a private external staircase.
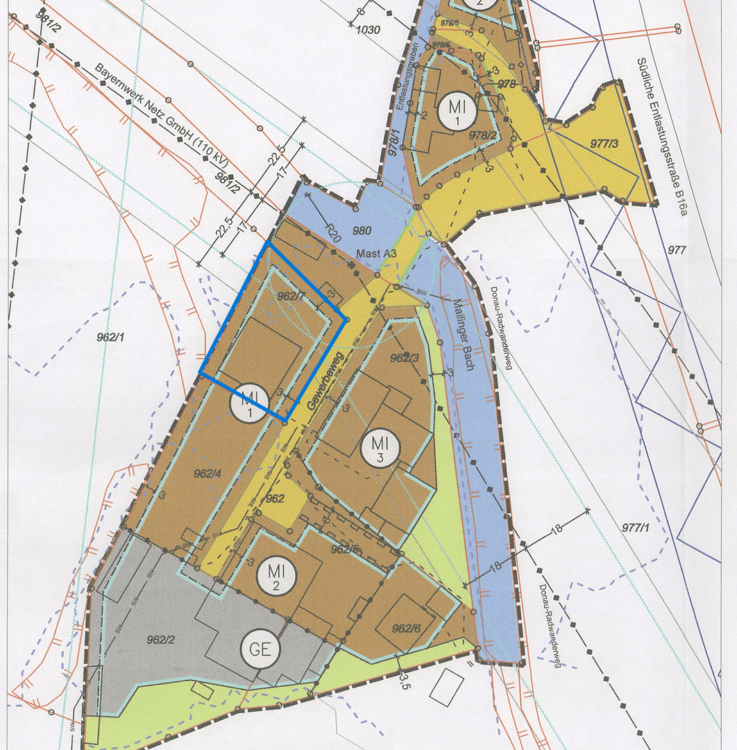
The development plan pertaining to the property is available on the municipality of Großmehring’s website under “Mixed-Use Area in the Commercial Area.” The information provided there is without guarantee and should be independently verified by interested parties with the responsible authorities.
The property is located in Commercial Area 4 in Großmehring, in the district of Eichstätt – immediately east of Ingolstadt. Its proximity to Ingolstadt (approximately 8 km), Munich (approximately 80 km), and Nuremberg (approximately 90 km) places the location centrally within Bavaria’s economically strong triangle. Excellent transport connections in all directions are available via the federal highway B16 and the nearby A9.
The location benefits from its proximity to renowned employers, particularly in the automotive and supplier industries. Großmehring itself offers an established environment with good supply and service structures. The micro-location in the commercial area is characterized by well-kept neighboring businesses, generous plots, and good accessibility – ideal for commerce, craftsmanship, and services.
Below is an overview of selected features of this property:
Property
– Total area of approximately 850 m²
– Partially paved/wood-chip surfaced
– Fenced at the rear
– Access possible via one long side along the street
Commercial Mixed-Use Unit (approximately 15m x 15m)
– Approximately 327 m² area, equipped with garage roller shutters
– Attic apartment of approximately 80 m²
– Three-phase power, various security cameras
Building Condition: Well-maintained, continuously serviced
Construction: Solid construction with sturdy commercial fittings
Floor Coverings: Tiles, industrial flooring, industrial carpet (office) and laminate (apartment)
Heating: Central gas heating with radiators
Sanitary: WC and shower in the commercial unit, separate bathroom in the apartment
Windows: PVC windows with insulating glass, some roof windows
Access: Separate entrances for all units, external staircase to the apartment
Outdoor Areas: Parking spaces directly at the building, partly paved yard area
Technology: Electrical connections in all units, network and telephone cabling available
Special Features: Flexible usage possibilities, combination of work and living, solid tenant structure
Energy Certificate for a Mixed-Use Building
As a basis for the energy specifications, the owner and their architects stated that the developmental stage of the office portions is “residential-like,” and therefore the residential-like portion exceeds 50%. Accordingly, the energy data are as follows:
Type of Energy Certificate: Energy Demand Certificate, Heating Type: Gas Heating, Energy Carriers: Liquefied Gas, Electricity Mix, Energy Efficiency Class: B, Final Energy Demand: 73.04 kWh/(m²*a), Year of Construction: 2015
The property is currently rented (with un-terminated leases) and is available for sale immediately. Interested parties can arrange flexible viewing appointments in consultation with the brokers from 1516 Immobilien.
Please note that viewings of the property can only be conducted by appointment and in the company of one of our real estate brokers. It is not permitted to access or view the property independently or without permission.
Furthermore, please be aware that only the information provided in writing is valid during the sales process; any verbal statements do not constitute legal claims.
We look forward to personally presenting the property to you!
We look forward to your inquiry!
Your team at 1516 Immobilien.
Property characteristics
| Age | Over 5050 years |
|---|---|
| Listing ID | 966369 |
| Land space | 850 m² |
| Condition | Good |
|---|---|
| Land non-residential space | 327 m² |
| Price per unit | €2,905 / m2 |
What does this listing have to offer?
| Garage |
| MHD 3 minutes on foot |
What you will find nearby
Still looking for the right one?
Set up a watchdog. You will receive a summary of your customized offers 1 time a day by email. With the Premium profile, you have 5 watchdogs at your fingertips and when something comes up, they notify you immediately.


















