Office to rent • 190 m² without real estateHebbelstraße 24, , Schleswig-Holstein
Hebbelstraße 24, , Schleswig-HolsteinPublic transport 1 minute of walking • GarageThe well-maintained commercial space is available for rent immediately. The property is ideally suited as an office, retail store, insurance agency, warehouse, practice (e.g., physiotherapy, foot care, healing practice), consultancy, cosmetic or nail studio, as well as for similar commercial uses. The premises offer a variety of design possibilities in a central location in Hohenlockstedt.
Features:
- 2 large, flexibly usable and separable rooms
- Counter area available (can be customized individually)
- Sanitary facilities (men & women)
- Terrace with separate access
- Parking available in the immediate vicinity
Special Features:
- Ideally suited for office use, agency, studio, warehouse, or practice spaces
- Possibility for individual room design and adaptation to meet business needs
- Excellent visibility and central accessibility in Hohenlockstedt
- Well-maintained appearance and pleasant atmosphere
- If interested in long-term rental, conversion for other purposes is possible upon consultation
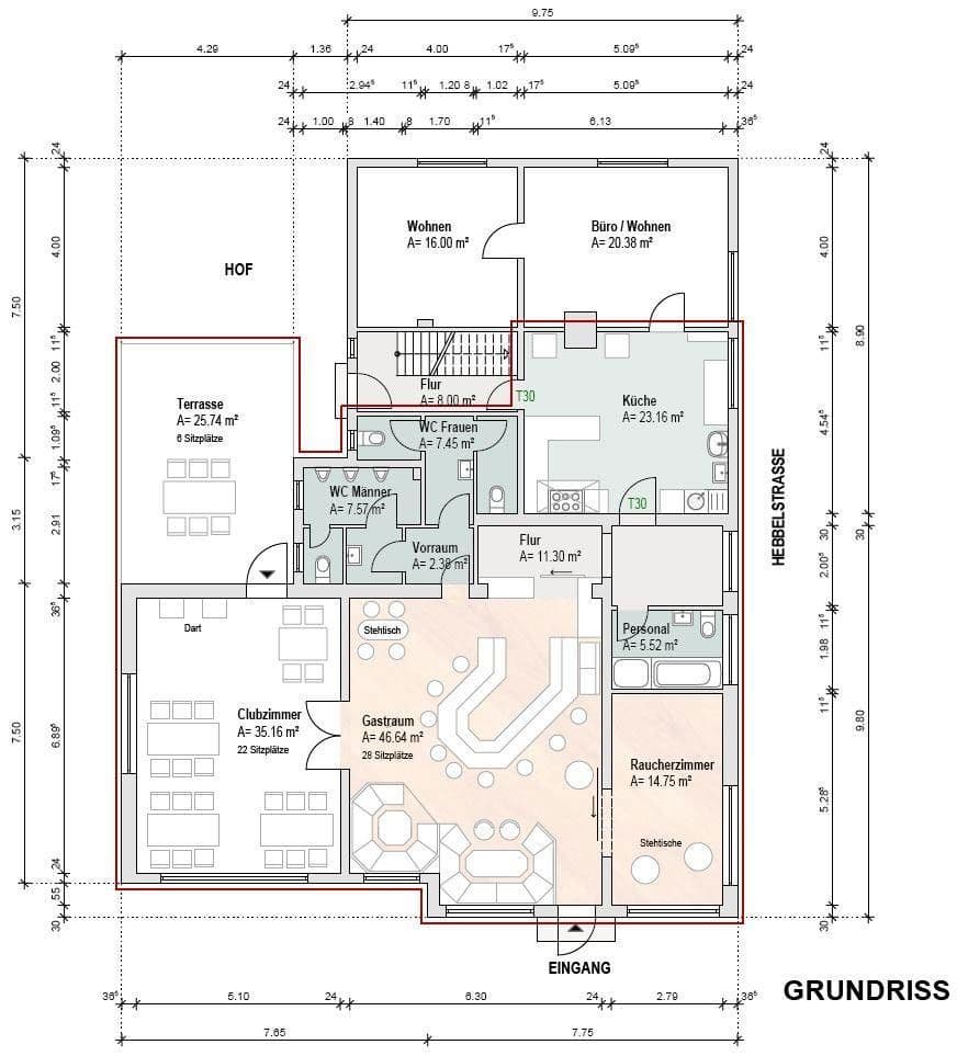
Divisible from 110m² up to 190m², see floor plan (image)
Rental Period:
Available for rent immediately, long-term use possible upon consultation.
Property characteristics
| Age | Over 5050 years |
|---|---|
| Condition | Good |
| Land office | 190 m² |
| Available from | 22/11/2025 |
|---|---|
| Listing ID | 966301 |
| Price per unit | €10 / m2 |
What does this listing have to offer?
| Garage | |
| Terrace |
| MHD 1 minute on foot |
What you will find nearby
Still looking for the right one?
Set up a watchdog. You will receive a summary of your customized offers 1 time a day by email. With the Premium profile, you have 5 watchdogs at your fingertips and when something comes up, they notify you immediately.





