House for sale 5+1 • 141 m² without real estate, Lower Saxony
, Lower SaxonyPublic transport 2 minutes of walking • ParkingPrice€226,500
Translated with the help of AI
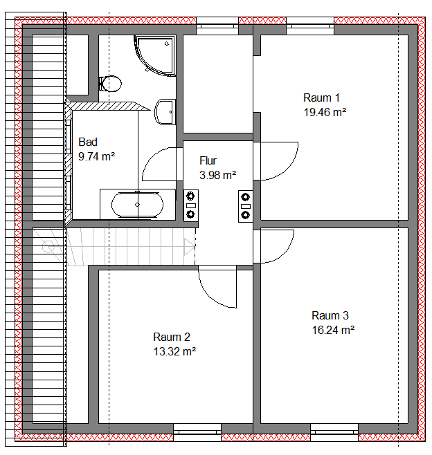
Within approximately 2 km of BS, there is the single-family home—with a full basement—that partially requires renovation.
Included in the price are the subdivision of the property, a new land register, and a renovation plan for the property prepared by a building expert.
This mortgage-eligible package provides security and a quick decision from the banks.
Any owner-contributed work desired will then be compensated at the full tradesperson rate.
Simply arrange a viewing.
Property characteristics
| Age | Over 5050 years |
|---|---|
| Listing ID | 966286 |
| Land space | 647 m² |
| Price per unit | €1,606 / m2 |
| Layout | 5+1 |
|---|---|
| Usable area | 141 m² |
| Total floors | 2 |
What does this listing have to offer?
| Basement | |
| MHD 2 minutes on foot |
| Parking |
What you will find nearby
Public transportLehre, Rathaus
🚶 142 m (2 mins)
Post office
🚶 237 m (3 mins)
ShopBudde
🚶 147 m (2 mins)
BankVolksbank
🚶 132 m (2 mins)
RestaurantPizzeria Anna
🚶 167 m (2 mins)
PharmacyRote Apotheke Hahne
🚶 100 m (1 min)
SchoolOberschule Lehre
🚶 253 m (3 mins)
KindergardenKita Kunterbunt
🚶 456 m (5 mins)
Sports fieldfit+
🚶 67 m (1 min)
PlaygroundKinderspielplatz Eitelbrotstraße Lehre
🚶 577 m (7 mins)
How far to…:
Price€226,500
Still looking for the right one?
Set up a watchdog. You will receive a summary of your customized offers 1 time a day by email. With the Premium profile, you have 5 watchdogs at your fingertips and when something comes up, they notify you immediately.




