
Flat to rent 3+1 • 90 m² without real estateTegernbach Tegernbach Bayern 84104
Tegernbach Tegernbach Bayern 84104Public transport 1 minute of walking • Parking • GarageBelow is the English translation of the text enclosed by the XML tag:
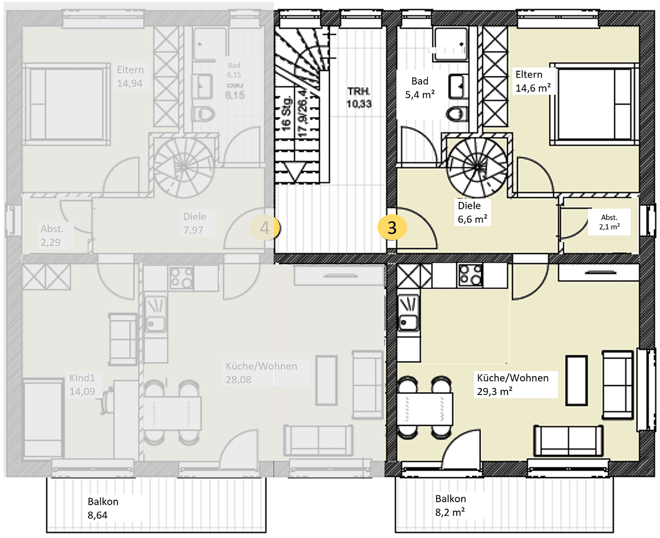
For this appealing property, we are dealing with a maisonette apartment on the first floor of a four-family house built in 2020. The high-quality fitted property is thus almost brand new. When you enter the apartment, you will be greeted by a large living-dining kitchen, a storage room, one bedroom, and a bathroom – via a spiral staircase you reach the attic, where there is an additional bedroom and a large gallery that can be used as an office. In addition, there is a large storage room providing extra space. Particularly noteworthy is the large southwest balcony.
High-level features:
- Heating provided by high-performance air heat pumps
- Low energy costs thanks to above-average thermal insulation and soundproofing
- Low-temperature underfloor heating with individually controllable room thermostats throughout the property
- A water softening system for the entire house – a delight for your skin, hair, laundry, and appliances
- Fresh water stations in every apartment
- Energy-efficient residential ventilation with heat recovery
- Very bright rooms due to large windows with triple glazing and electric shutters
- Media connections in the living area and all bedrooms
- Fiber optic connection available with speeds up to 1000 Mbit
- Satellite system
- Bathrooms and hallways equipped with high-quality LED ceiling lights
- A large basement room is included
- Generous balconies with over 8 m² in area
- Large communal garden
- Spacious communal laundry room with the possibility to accommodate larger washing machines and dryers
- Parking spaces and garages are equipped with wallboxes
Optional:
• Kitchen installation: €60/month
• Outdoor parking space: €20/month
• Double garage – €50/month per parking space
The idyllic and quiet Tegernbach belongs to the municipality of Rudelzhausen, which is located in the northern Freising district. The municipality has a total of approximately 3,500 inhabitants, of which Tegernbach accounts for about 850.
In Tegernbach, there is the municipal kindergarten, an outdoor swimming pool, a bakery, a butcher, a beverage market, restaurants, a post office, and for sports enthusiasts, there are a football club, a tennis club, and the Holledau golf course is also one of Tegernbach’s attractions. Surrounding cycling and hiking paths offer many leisure opportunities.
The primary school is located in the neighboring town of Rudelzhausen. Other schools, as well as doctors, pharmacies, and a hospital (in Mainburg/Freising), are found in the surrounding area.
Very centrally located between Munich, Landshut, Regensburg, and Ingolstadt – all these cities can be reached by car in about 35 minutes, as can Munich Airport.
Three MVV bus lines connect Tegernbach with Mainburg, Freising, and Moosburg. From Freising and Moosburg, you can transfer to the S-Bahn or trains.
There are four highway exits reachable in about 15 minutes – A9 at Schweitenkirchen/Pfaffenhofen, A93 at Wolnzach, Mainburg, and also Elsendorf.
If interested, please send a meaningful application/short curriculum vitae including a self-disclosure. A viewing appointment can only be arranged after we have received your documents.
Property characteristics
| Age | Over 5050 years |
|---|---|
| Condition | Very good |
| Floor | 1. floor out of 2 |
| Usable area | 90 m² |
| Available from | 12/12/2025 |
|---|---|
| Layout | 3+1 |
| Listing ID | 966266 |
| Price per unit | €12 / m2 |
What does this listing have to offer?
| Balcony | |
| Garage | |
| MHD 1 minute on foot |
| Basement | |
| Parking |
What you will find nearby
Still looking for the right one?
Set up a watchdog. You will receive a summary of your customized offers 1 time a day by email. With the Premium profile, you have 5 watchdogs at your fingertips and when something comes up, they notify you immediately.








