
Flat to rent 2+kk • 55 m² without real estateČakovická, Prague - Prosek
Interested?
Communicate all private owners and save CZK 25,000 on commissions.
Nabízím ke svému pronájmu nový, moderní a útulný byt 2+kk, který se nachází v novostavbě předané k užívání v říjnu 2025.
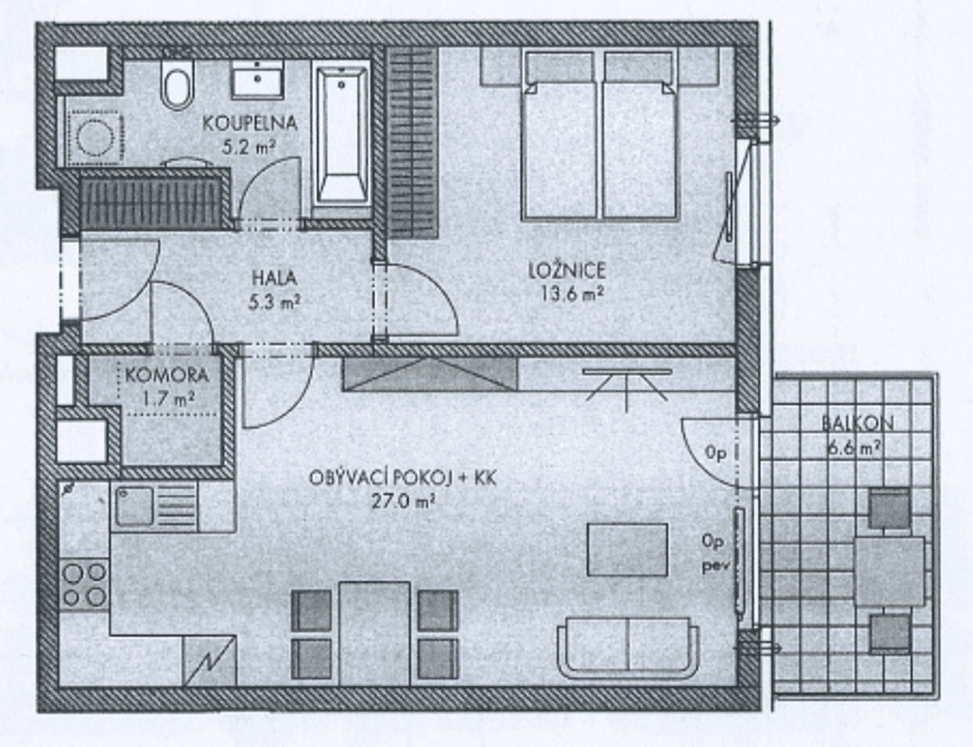
Byt o rozloze 55 m² se nachází v pětipodlažní budově na 5. podlaží s výtahem, což zaručuje pohodlný přístup. Nemovitost je vybavená kuchyňskou linkou se všemi spotřebiči (vestavěná lednice, trouba, mikrovlnná trouba, indukční deska a myčka).
Dále je ve vstupní hale umístěna na míru vyrobená vestavěná skříň.
Prostorná koupelna disponuje pračkou i topným žebříkem.
V bytě se dále nachází i prostorná komora, kterou lze využít např. jako šatnu.
Byt dále disponuje prostornou terasou o výměře 7 m², s výhledem do zeleně, kde se můžete těšit na chvíle odpočinku za čerstvého vzduchu, a také sklepem o rozloze 6 m², který poskytuje dostatek prostoru pro úložné potřeby.
K bytu náleží garážové stání, což je v Praze obecně velké plus. Garážové stání je možno pronajmout za 2 500 Kč / měsíc.
Ohledně nákladů na energie a další provozní náklady Vám rádi poskytneme více informací. Náklady na bydlení činí 4 500 Kč, přičemž elektřina je hrazena přímo nájemníkem.
Výborná dopravní dostupnost – metro C Prosek 7
minut chůze, metro B je dostupné 1 zastávku
autobusem. V okolí kompletní občanská vybavenost
(obchody, restaurace, parky).
V případě zájmu mě neváhejte kontaktovat a domluvíme si prohlídku, během které si můžete osobně ověřit výjimečnost tohoto bytu.
Byt je připraven k nastěhování ihned.
Podmínky:
Nájemné: 25 000 Kč/ měs.
Nájemné garážové stání: 2 500 Kč/ měs.
Poplatky: 4.500 Kč
Vratná kauce: 50.000 Kč
Volný k nastěhování: ihned
Property characteristics
| Available from | 18/11/2025 |
|---|---|
| Building construction | Brick |
| Fully furnished | Partly |
| Listing ID | 966240 |
| Usable area | 55 m² |
| Condition | New-build |
|---|---|
| Layout | 2+kk |
| Floor | 5. floor out of 5 |
| Location | Quiet area |
| Price per unit | CZK 455 / m2 |
What does this listing have to offer?
| Wheelchair accessible | |
| Garage | |
| Terrace: 7 m² |
| Basement: 6 m² | |
| Lift |
What you will find nearby
Interested?
Communicate all private owners and save CZK 25,000 on commissions.
Still looking for the right one?
Set up a watchdog. You will receive a summary of your customized offers 1 time a day by email. With the Premium profile, you have 5 watchdogs at your fingertips and when something comes up, they notify you immediately.

















