Flat to rent 3+kk • 160 m² without real estate, North Rhine-Westphalia
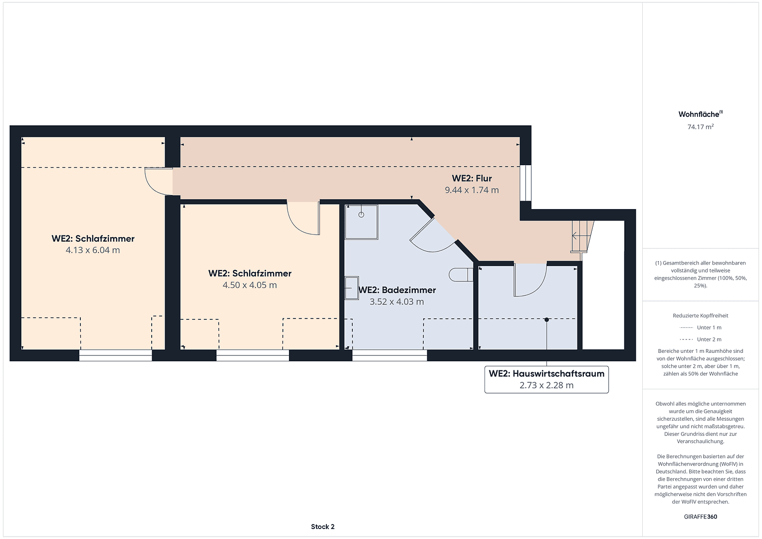
, North Rhine-WestphaliaPublic transport 3 minutes of walking • Parking • GarageThis spacious apartment in a well-maintained semi-detached house in Heinsberg-Aphoven offers plenty of room for the whole family with approximately 160 m² of living space and 3.5 rooms. Two bathrooms make everyday life easier, and the large windows create a bright, welcoming living atmosphere. Particularly noteworthy is the garden, which is approximately 80 m² in size, providing plenty of space for children to play and allowing parents to relax in the greenery. In addition, there is a functioning well in the garden that can be used.
The property also includes a garage that provides space for one vehicle and/or additional storage.
The apartment is located in a quiet residential area of Heinsberg that is especially suitable for families. The infrastructure is excellent: shopping facilities such as Aldi (655 m), Edeka (1.1 km), Lidl (1.2 km), or Rewe (1.5 km) are easily accessible. For families, it's important to note that kindergartens (from 328 m) and primary schools (from 626 m) are in the immediate vicinity. Recreational facilities such as playgrounds and sports facilities are also just a few minutes away. The nearest train station (1.2 km) and highway connection (5.1 km) ensure good accessibility.
Living space: approximately 160 m²
3.5 rooms + kitchen & 2 bathrooms
Year of construction: 1997
Energy efficiency class: C
Approximately 80 m² garden
1 garage + parking spaces
Quiet neighborhood with
Property characteristics
| Age | Over 5050 years |
|---|---|
| Condition | Good |
| Floor | 1. floor out of 3 |
| EPC | C - Economical |
| Price per unit | €9 / m2 |
| Available from | 15/12/2025 |
|---|---|
| Layout | 3+kk |
| Listing ID | 966106 |
| Usable area | 160 m² |
What does this listing have to offer?
| Garage | |
| MHD 3 minutes on foot |
| Parking |
What you will find nearby
Still looking for the right one?
Set up a watchdog. You will receive a summary of your customized offers 1 time a day by email. With the Premium profile, you have 5 watchdogs at your fingertips and when something comes up, they notify you immediately.


















