Commercial property to rent • 2588 m² without real estate, North Rhine-Westphalia
, North Rhine-WestphaliaPublic transport 1 minute of walkingThe property is currently partly used by the owner. The available administrative and hall areas can be rented flexibly, in consultation, starting at about 2,000 m² up to a maximum of roughly 12,500 m² (see examples in the photos/drawing). The leased area indicated here corresponds to Example 2.
The spaces are ideally suited for warehousing, logistics, or production purposes and can be customized to the tenant’s requirements. In addition, there is the possibility to rent parking spaces for cars or trucks on the spacious property.
The rental rate is determined by the leased area, the lease term, and the individual requirements. Overall, we offer an excellent price-performance ratio and extremely attractive conditions. If necessary, management by the owner is also possible – for example, the loading and unloading of trucks, the storage of goods, or use as an external storage area.
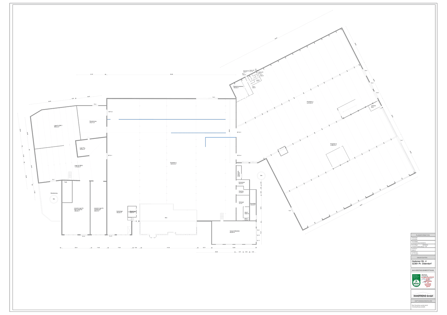
The commercial property is located in Preußisch Oldendorf and comprises a spacious site of approximately 48,311 m². The property consists of several hall sections with a total area of around 24,000 m² as well as a separate administrative building with about 900 m² of office and social areas.
Access is provided via a 30-meter-wide driveway on “Hedemer Straße.” From here, the hall areas can be reached by vehicles from both the north and the south. The loading yard in the area of Production Halls 2 and 3 offers four roller doors, an integrated truck ramp, and around 58 car parking spaces. An additional approximately 40 parking spaces are located in a separate parking area in the northern part of the property. A bypass around the entire building complex enables access on both sides and ensures an optimal logistics structure.
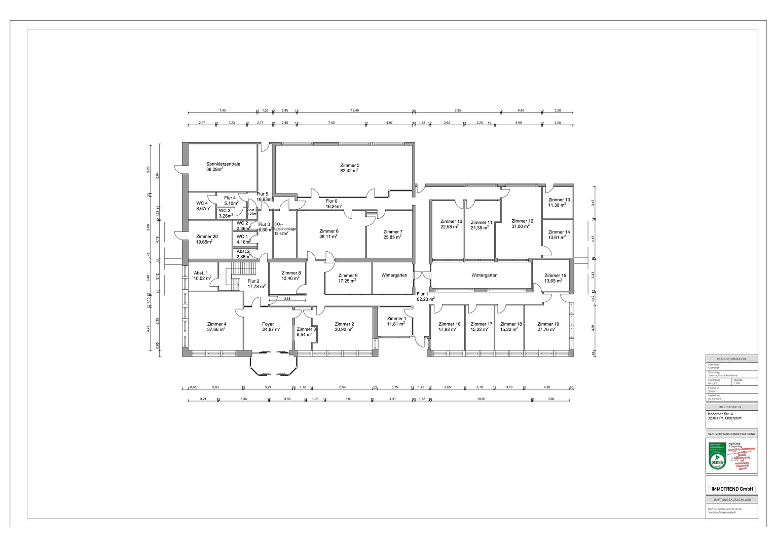
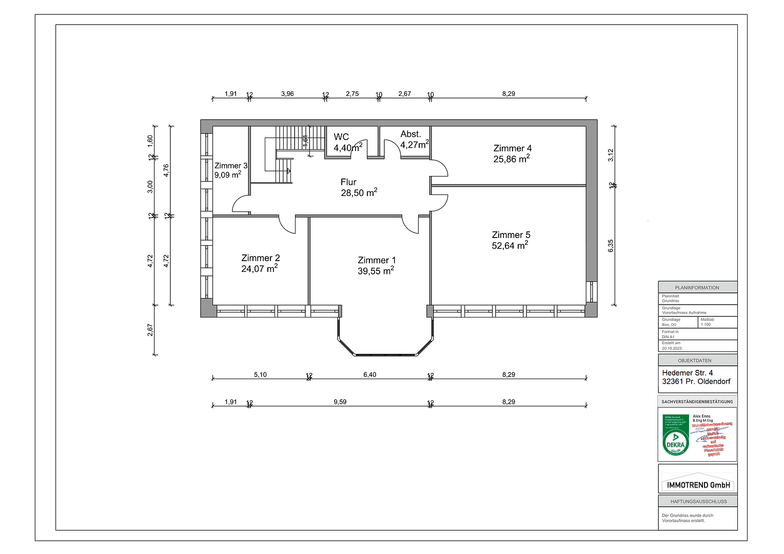
The administrative building in the western part of the property features 24 offices and meeting rooms spread over two floors (ground and upper floor). In front of the building, an additional 12 car parking spaces are available.
The property is located in Preußisch Oldendorf in the Minden-Lübbecke district, in the heart of the Ostwestfalen-Lippe economic region. The town is part of the urban area between Gütersloh, Bielefeld, Herford, and Minden and is situated north of the Wiehen Hills.
The transport connections are excellent:
Via the B65 and Landesstraße 557, the A30 motorway (Bünde junction) can be reached in about 17 km.
The B239, one of the region’s most important north-south routes, is located only around 8 km away.
The A30 connects the motorways A1 and A2, intersects with the A33 near Osnabrück, and is part of the European transport axis Warsaw–Berlin–Amsterdam (European Road 30). This results in excellent connections towards Osnabrück, Hanover, Münster, and the Netherlands.
Total site: approximately 48,311 m²
Hall area: approximately 24,000 m², divided into several segments
Office/social areas: approximately 900 m² (two floors, around 24 offices and meeting rooms)
Floor load capacity: approximately 6 t/m² (concrete floor)
Heating: modern wood chip heating plant (in planning)
Sprinkler system in all hall areas
Access: 4 roller doors, 3 truck ramps (with dock levelers)
Outdoor areas: driveable loading yard, bypass around the entire building
Parking spaces: approximately 110 car parking spaces (divided across several areas)
Usage: partly occupied by the owner, unused areas available for rental
Access road: 30-meter-wide driveway from “Hedemer Straße”
The property was previously heated by a chip heating system. This system is currently out of operation; the planning of a new, energy-efficient heating solution is presently being prepared by specialist companies. An energy certificate is in progress and will be available at the latest during the viewing.
Paramos Immobilien GmbH
Ellerkampstr. 75
32609 Hüllhorst
Register court: Bad Oeynhausen
Registration number: HRB 20183
Managing Director: Kai Helweg
We are neither obliged nor willing to participate in any consumer dispute resolution procedure before a consumer arbitration board.
Property characteristics
| Available from | 08/12/2025 |
|---|---|
| Land non-residential space | 2,588 m² |
| Price per unit | €3 / m2 |
| Listing ID | 966088 |
|---|---|
| Land space | 48,311 m² |
What does this listing have to offer?
| MHD 1 minute on foot |
What you will find nearby
Still looking for the right one?
Set up a watchdog. You will receive a summary of your customized offers 1 time a day by email. With the Premium profile, you have 5 watchdogs at your fingertips and when something comes up, they notify you immediately.






