
- 3+1
- 75 m²
Available for sale is a well-laid-out 3.5-room apartment on the 6th floor of a multi-family house, including a garage, located in Korber Höhe in Waiblingen. The building was constructed in 1972, with first occupancy in 1974. The apartment is conveniently reachable by elevator, with both the floor and the building entrance being at ground level.
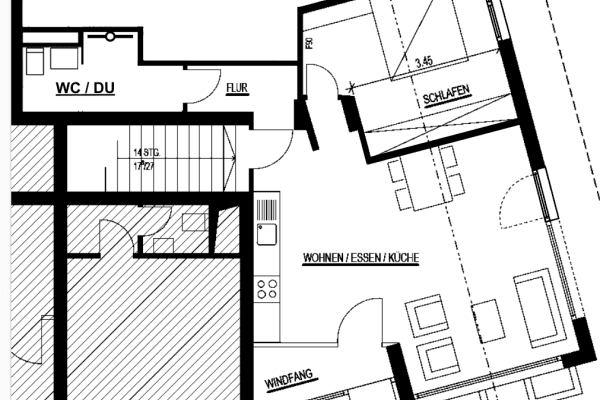
The living area is about 95 m². In addition to the living room with access to the balcony, there are two additional rooms, as well as a dining room that can also be used as a fourth room if desired – for example, as an office, children's room, or guest room.
The apartment includes a basement storage room as well as a lockable single garage. The building has been heated with district heating since 2019. The monthly service fee is currently around €370. The building’s maintenance reserves are solidly established at approximately €1 million (plus €136,000 for the garage system).
The sale is private and commission-free. We kindly ask prospective brokers to refrain from inquiries.
--------------------------------------------------
Key Information at a Glance
• Location: Waiblingen-Korber Höhe
• Floor: 6 of 7 (with elevator; accessible at ground level)
• Year Built: 1972 / First Occupancy: 1974
• Living Area: Approximately 95 m²
• Rooms: 3.5 (the dining room can be used as a 4th room)
• Balcony: Yes
• Windows & Front Door: Replaced in 1993
• Heating: District Heating (since 2019)
• Basement: Available
• Garage: Lockable single garage
• Service Fee: Currently around €370 per month
• Maintenance Reserves: Approximately €1 million (building) + €136,000 (garage system)
• Condition: Well-maintained; kitchen & bathroom from an earlier period
• Quiet and green location with excellent connectivity (e.g., bus stop reachable within one minute)
• Private sale – no broker commission, no broker inquiries
The location is quiet yet very well connected. Shopping opportunities, schools, and doctors are quickly accessible on foot. The bus stop is only one minute away. The surrounding area is green and offers high recreational value with walking and cycling paths along the Rems.
All shutters have been electrified using surface-mounted systems. Although the kitchen and bathroom date back to an earlier period, they are well maintained. The windows and the main entrance door were replaced in 1993, and the carpet floors have already been removed. The garage is included in the purchase price.
| Age | Over 5050 years |
|---|---|
| Layout | 3+kk |
| Usable area | 95 m² |
| Condition | Before reconstruction |
|---|---|
| Listing ID | 966063 |
| Price per unit | €3,368 / m2 |
| Balcony | |
| Basement | |
| Lift |
| Wheelchair accessible | |
| Garage | |
| MHD 0 minutes on foot |






Still looking for the right one?
Set up a watchdog. You will receive a summary of your customized offers 1 time a day by email. With the Premium profile, you have 5 watchdogs at your fingertips and when something comes up, they notify you immediately.