Flat to rent 5+1 • 130 m² without real estateMünchen Lochhausen Bayern 81249
München Lochhausen Bayern 81249Public transport 1 minute of walking • ParkingThe apartment for rent is located on the ground floor of a 7-unit building in Munich-Aubing and is laid out as a maisonette over two levels (ground floor and basement).
On the ground floor, there are three bright rooms, a separate kitchen, a bathroom, and a guest WC. All living areas offer direct access to the spacious (south) garden with a terrace.
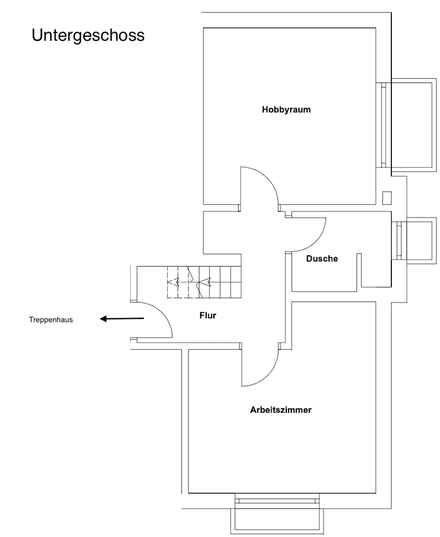
An internal staircase leads down to the basement, where you will find two additional rooms, an extra bathroom, and an entrance hall with a second access to the staircase. The basement rooms are ideal for use as an office, hobby, or guest area.
The apartment is situated in a family-friendly residential area in Munich-Aubing. The surroundings are quiet, close to nature, and yet very well connected. In less than 5 minutes by car, you can reach the tunnelled A99.
Lochhausen S-Bahn station is approximately 1 km away (about a 14-minute walk or 3 minutes by car). The bus stops at Allingerstraße and Asmarstraße are roughly a 5-minute walk away. The popular Langwieder Lake is about a 15-minute drive away and offers excellent recreational opportunities.
The garden is provided for exclusive use and must be maintained by the tenant. This includes, in particular, trimming and caring for the hedges and shrubs.
The apartment is rented on an unfixed-term basis.
Also included is a duplex garage parking space for €60 per month. The total monthly warm rent thus amounts to €2,390.
If interested, please send a message with a personal introduction of all potential residents as well as a self-disclosure of your income.
All information has been carefully compiled and is based on the details available to us. Typos and errors excepted. The offer is non-binding.
Property characteristics
| Age | Over 5050 years |
|---|---|
| Condition | Good |
| Listing ID | 965979 |
| Usable area | 130 m² |
| Available from | 18/11/2025 |
|---|---|
| Layout | 5+1 |
| EPC | C - Economical |
| Price per unit | €15 / m2 |
What does this listing have to offer?
| Parking | |
| Terrace |
| MHD 1 minute on foot |
What you will find nearby
Still looking for the right one?
Set up a watchdog. You will receive a summary of your customized offers 1 time a day by email. With the Premium profile, you have 5 watchdogs at your fingertips and when something comes up, they notify you immediately.













