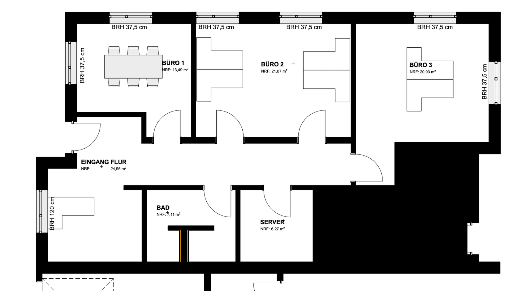
Office to rent • 94 m² without real estateMainzer Straße 7, , Hesse
Mainzer Straße 7, , HessePublic transport 4 minutes of walking • ParkingFor rent: High-quality, versatile spaces with approximately 94 m² of usable area in the Langendernbach district. The unit is ideal as an office, a practice, or for commercial use.
Highlights of the property:
- New build – modern, bright spaces
- Built-in kitchen already available
- Excellent visibility thanks to its direct location on Federal Road B54
- Ground floor entrance – barrier-free and comfortable
- High-quality vinyl flooring in all rooms
- Network connections in every room for optimal technical setup
The space offers flexible usage possibilities and is ideal for companies, self-employed professionals, or service providers who value a conveniently accessible and representative location.
We are happy to provide you with further information or arrange a viewing appointment.
The commercial unit is located in the Dornburg district of Langendernbach. Langendernbach offers a quiet yet conveniently located setting and is especially attractive for businesses due to its proximity to major traffic routes.
The property is situated directly on Federal Road B54, providing excellent visibility as well as quick access towards Limburg, Rennerod, and the surrounding municipalities. The motorway connection to the A3 (Cologne–Frankfurt) is reachable in a short driving time, ensuring excellent regional accessibility.
- New build – modern, bright spaces
- Built-in kitchen already available
- Excellent visibility thanks to its direct location on Federal Road B54
- Ground floor entrance – barrier-free and comfortable
- High-quality vinyl flooring in all rooms
- Network connections in every room for optimal technical setup
Property characteristics
| Age | Over 5050 years |
|---|---|
| Condition | New-build |
| Land office | 94 m² |
| Available from | 22/11/2025 |
|---|---|
| Listing ID | 965955 |
| Price per unit | €11 / m2 |
What does this listing have to offer?
| Wheelchair accessible | |
| MHD 4 minutes on foot |
| Parking |
What you will find nearby
Still looking for the right one?
Set up a watchdog. You will receive a summary of your customized offers 1 time a day by email. With the Premium profile, you have 5 watchdogs at your fingertips and when something comes up, they notify you immediately.








