Commercial property to rent 4+1 • 230 m² without real estateSchiltachstrasse 28, , Baden-Württemberg
Schiltachstrasse 28, , Baden-WürttembergPublic transport 4 minutes of walkingBelow is the English translation of the text:
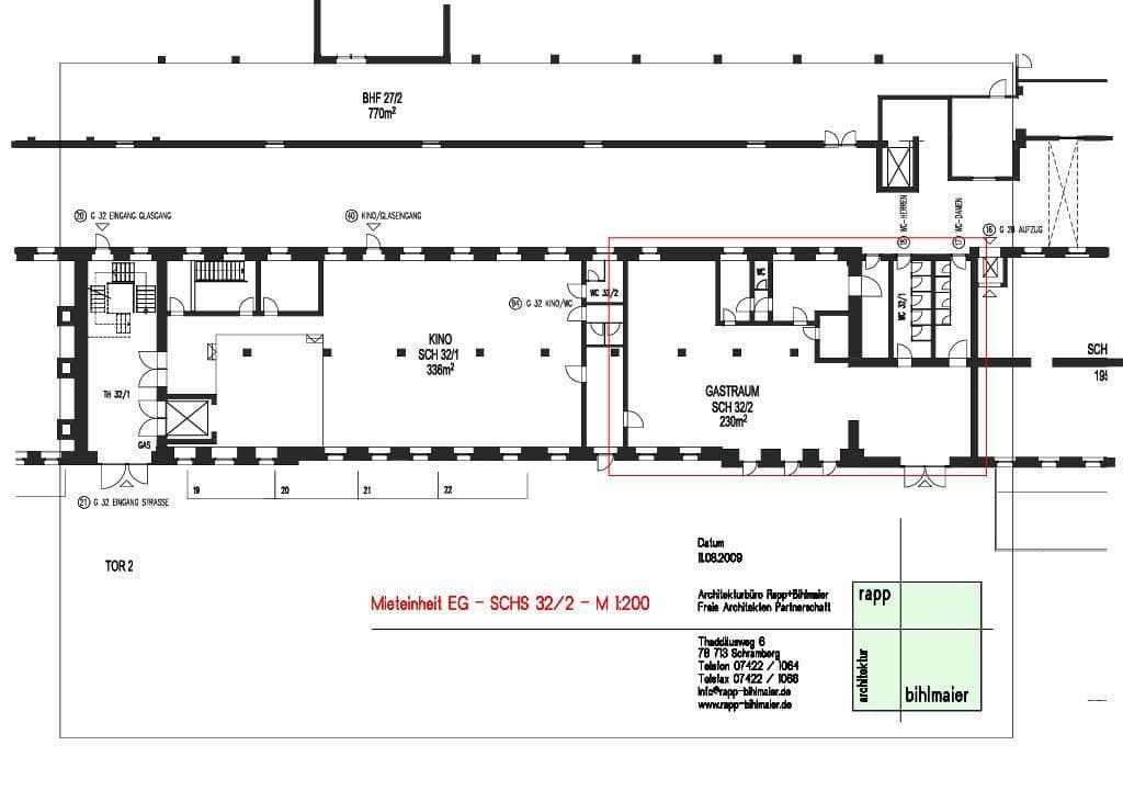
At the gastro establishment, it is a cafe bar located in a commercial park with approximately 100 tenants and 250 employees. The establishment has about 100 seats as well as an additional 100 seats in the beer garden. In the immediate vicinity, in the same building, one of Germany’s best repertory cinemas is housed, which hosts screenings every evening.
The location of the establishment is in the Majolika Business Park at Schiltachstraße 32, 78713 Schramberg. It is housed in a factory building from the 1830s in the classicist style. Schramberg is a major district town in the Rottweil district and has around 21,000 inhabitants.
The establishment was leased to the same operator for 15 years and has grown continuously. It is a very nice gastro space with an industrial style.
Imprint
Schramberger Majolika Business Park
Schiltachstraße 28
78713 Schramberg
The Schramberger Majolika Business Park is a company of Melvin GmbH & Co. KG
Managing Directors:
Annette Melvin and Michael Melvin.
Contact:
Phone: +49 7422 - 2780
Email: info@majolika.de
Register Entry:
Entry in the Commercial Register.
Register Court: Local Court Stuttgart
Register Number: HRB B 480 093
Value-Added Tax (VAT):
VAT Identification Number in accordance with §27a of the Value Added Tax Act:
DE272760530
Dispute Resolution
The European Commission provides a platform for online dispute resolution (ODR): https://ec.europa.eu/consumers/odr.
You can find our email address above in the imprint.
We are not willing or obliged to participate in dispute resolution proceedings before a consumer arbitration board.
Liability for Content
As service providers, we are responsible for our own content on these pages in accordance with § 7 Abs.1 TMG under the general laws. However, according to §§ 8 to 10 TMG, we as service providers are not obligated to monitor transmitted or stored third-party information or to investigate circumstances that indicate illegal activity.
Obligations to remove or block the use of information under general laws remain unaffected by this. However, any liability in this regard is only possible from the point in time at which we become aware of a specific infringement. Upon becoming aware of such violations, we will remove the content immediately.
Liability for Links
Our offer contains links to external websites of third parties, over whose contents we have no influence. Therefore, we cannot guarantee the content of these external sites. The respective provider or operator of the linked pages is always responsible for their contents. The linked pages were checked for potential legal violations at the time of linking. No illegal content was recognizable at the time of linking.
However, a permanent monitoring of the linked pages is not reasonable without concrete evidence of a legal violation. Upon becoming aware of any legal violations, we will remove such links immediately.
Copyright
The content and works created by the site operators on these pages are subject to German copyright law. Duplication, processing, distribution, and any kind of exploitation of the content outside the limits of copyright law require the written consent of the respective author or creator. Downloads and copies of this page are only permitted for private, non-commercial use. Insofar as the contents on this page were not created by the operator, the copyrights of third parties are observed. In particular, third-party contents are marked as such. Should you nevertheless become aware of a copyright infringement, please notify us accordingly. Upon becoming aware of any such legal violations, we will remove the content immediately.
Property characteristics
| Condition | Good |
|---|---|
| Listing ID | 965701 |
| Price per unit | €12 / m2 |
| Layout | 4+1 |
|---|---|
| Land non-residential space | 230 m² |
What does this listing have to offer?
| Wheelchair accessible | |
| Terrace |
| MHD 4 minutes on foot |
What you will find nearby
Still looking for the right one?
Set up a watchdog. You will receive a summary of your customized offers 1 time a day by email. With the Premium profile, you have 5 watchdogs at your fingertips and when something comes up, they notify you immediately.




