
Flat to rent 2 bedroom • 68 m² without real estate, Lower Saxony
, Lower SaxonyPublic transport 2 minutes of walking • ParkingThis well-maintained maisonette apartment in Hollenstedt combines practical comfort with a cozy living ambiance. Spread over two levels, you will find bright rooms, a well-thought-out layout, and allergen-friendly flooring – ideal for anyone who values a healthy living environment.
The approximately 68 m² maisonette apartment is located in a quiet area as it faces away from the street. Large windows in the living room ensure plenty of natural light. The open plan kitchen with a bay window provides space for a cozy dining area and invites you to enjoy cooking together.
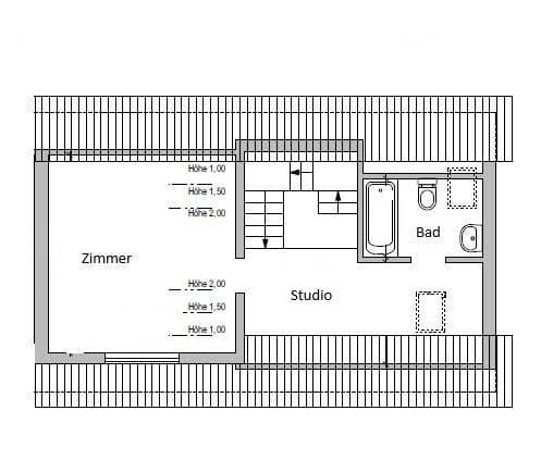
On the upper floor, you'll find a studio and the bedroom. Both rooms feature built-in closets made of solid wood.
There is a full bathroom with a window on the upper floor as well as a separate guest WC on the ground floor.
The floors are predominantly tiled and partly equipped with parquet – perfect for allergy sufferers and easy to maintain on a daily basis. A new gas condensing boiler from the brand Vaillant was installed in 2024.
The rent is composed as follows:
• Monthly base rent: €850.00
• Monthly rent for the carport: €50.00
• Monthly heating costs: €185.00
• Monthly operating costs: €185.00
Total warm rent: €1,270.00
Rental deposit: €2,550.00 (= 3 months’ rent)
The property is located in the heart of Hollenstedt, a charming community in the district of Harburg. All essential amenities for daily needs – supermarkets, bakeries, doctors, and pharmacies – are conveniently reachable on foot.
Families benefit from nearby kindergartens and schools.
Thanks to the direct access to the main road, transportation is excellent: The A1 motorway is just a few minutes away, making Hamburg and Bremen quickly accessible.
At the same time, you will enjoy the peace of a well-established residential area with plenty of greenery in the vicinity.
Numerous walking and cycling paths invite you to relax in nature.
This location combines rural idyll with urban proximity – ideal for those who appreciate good infrastructure but do not want to sacrifice peace and nature.
Features & Highlights:
+ Maisonette apartment on 2 levels
+ Approximately 68 m² of living space
+ Full bathroom with a window and a guest WC
+ Open plan kitchen with a bay window and a window for the dining area
+ Generous window front in the living room
+ Attic studio
+ Built-in closets made of solid wood
+ Allergen-friendly floors (tiles, stone, parquet)
+ Quiet location facing away from the street
+ New central heating (built in 2024)
HAFERKAMP GMBH
Strandallee 11
23683 Scharbeutz (Haffkrug)
Phone: 04563 / 423998-0
Fax: 04563 / 423998-9
Email: info(at)haferkamp-grundbesitz.de
Managing Director: Jens-Hendrik Haferkamp
District Court Lübeck HRB 23030 HL
VAT ID: DE304113136
Haferkamp Grundbesitz is a trading name of Haferkamp GmbH.
Business activities subject to a permit according to § 34c para. 1 of the Trade Regulation Act
Supervisory authority:
Municipality of Scharbeutz (Trade Office) · Am Bürgerhaus 2, 23683 Scharbeutz
Haferkamp Grundbesitz is a trading name of Haferkamp GmbH
Person responsible for content according to § 6 MDStV:
Jens-Hendrik Haferkamp
Property characteristics
| Age | Over 5050 years |
|---|---|
| Condition | Good |
| Listing ID | 965226 |
| Usable area | 68 m² |
| Available from | 05/12/2025 |
|---|---|
| Layout | 2 bedroom |
| EPC | E - Wasteful |
| Price per unit | €13 / m2 |
What does this listing have to offer?
| Parking |
| MHD 2 minutes on foot |
What you will find nearby
Still looking for the right one?
Set up a watchdog. You will receive a summary of your customized offers 1 time a day by email. With the Premium profile, you have 5 watchdogs at your fingertips and when something comes up, they notify you immediately.











