
Flat for sale 5+1 • 119 m² without real estateDominova, Prague - Stodůlky
Dominova, Prague - StodůlkyPartially equipped • Loggia 7 m²Přímo od majitele nabízím k prodeji mezonetový byt s jedinečnou dispozicí 5+1 o celkové podlahové ploše 119 m² v panelové budově na ulici Dominova, sedmé podlaží ze sedmi. Byt je situován v klidné části Prahy 5, v bezprostřední blízkosti zeleně a metra Hůrka.
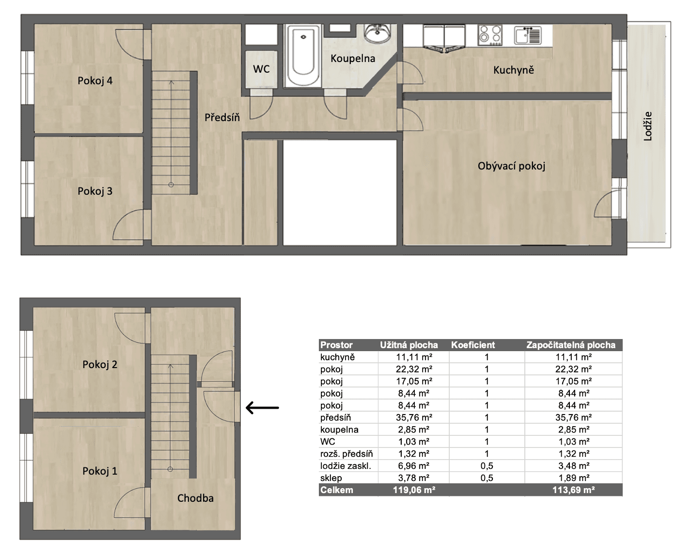
Byt je udržovaný, s možností okamžitého užívání, ale zasloužil by si rekonstrukci. Po vstupu do bytu vás přivítá předsíň, z ní vstup do pokoje cca 12 m² po pravé straně a menší pokoj cca 8,5 m² přímo rovně. Po schodech vystoupáte do vyššího patra, kde jsou obdobné dva pokoje, vestavěné skříně, oddělená toaleta a samostatná koupelna. Kuchyně je umístěna dále chodbou vlevo, obývací pokoj (cca 23 m²) vpravo; z něj je vstup na lodžii (7 m²). Byt má sklepní kóji (3,78 m²).
Výborná orientace v posledním patře zaručuje klidné prostředí a ničím nerušené výhledy.
Lokalita nabízí kompletní občanskou vybavenost: školy, obchody, sportoviště i rychlou dostupnost MHD. Ideální pro rodinu hledající prostorný byt s promyšlenou dispozicí v panelovém domě.
Nemovitost osobně vlastněná, připravena k převodu od 1.2.2026. Pro bližší informace a dohodu o prohlídce mě neváhejte kontaktovat.
For sale directly from the owner: a spacious two-storey flat with a unique 5+1 layout, offering a total floor area of 118 m², located in a panel building on Dominova Street, on the seventh floor of seven. The property is situated in a quiet part of Prague 5, within immediate proximity to green spaces and Hůrka metro station.
The flat is well maintained and ready for immediate occupancy, though it would benefit from refurbishment. Upon entering, you are welcomed by a hallway leading to a room of approximately 12 m² on the right and a smaller room of about 8.5 m² straight ahead (originally combined into one bedroom). A staircase takes you to the upper level, where you will find two similar rooms, built-in wardrobes, a separate toilet and an independent bathroom. The kitchen is further along the corridor to the left, while the living room (approx. 23 m²) is on the right; from here, there is access to a loggia (7 m²). The flat also includes a cellar storage unit (3.78 m²).
Its excellent top-floor position guarantees a peaceful environment and uninterrupted views.
The location offers full amenities: schools, shops, sports facilities and quick access to public transport. Ideal for a family seeking a spacious flat with a well-thought-out layout in a panel building.
The property is privately owned and ready for transfer from 1 February 2026. For further information or to arrange a viewing, please do not hesitate to contact me.
Property characteristics
| Available from | 01/02/2026 |
|---|---|
| Building construction | Precast concrete |
| Fully furnished | Partly |
| Listing ID | 965119 |
| EPC | G - Extremely uneconomical |
| Usable area | 119 m² |
| Condition | Good |
|---|---|
| Layout | 5+1 |
| Floor | 7. floor out of 7 |
| Ownership | Personal |
| Location | Residences |
| Price per unit | CZK 100,756 / m2 |
Are you choosing a apartment?
Make sure you have all the important information!
What does this listing have to offer?
| Loggia balcony: 7 m² |
What you will find nearby
Still looking for the right one?
Set up a watchdog. You will receive a summary of your customized offers 1 time a day by email. With the Premium profile, you have 5 watchdogs at your fingertips and when something comes up, they notify you immediately.




















