Flat to rent 4+1 • 111 m² without real estateKleiner Zimmerhof 16, , Lower Saxony
Kleiner Zimmerhof 16, , Lower SaxonyPublic transport 3 minutes of walkingProperty Description
This charming maisonette apartment with its own entrance via a quiet rear courtyard is located in a listed building in the heart of Wolfenbüttel’s old town. With a generous 111 m² of living space, it offers a unique living atmosphere that combines historical flair with modern comfort.
The apartment impresses with its open-plan design: except for the kitchen and the two bathrooms, all rooms flow into one another, creating an airy, light-filled living experience. Two separate bedrooms provide ample opportunities for privacy. The high-quality fitted kitchen and the new heating system ensure contemporary living comfort. Solid wood windows emphasize the stylish character of the property.
The private garden with terrace invites you to relax and unwind—a true rarity in the old town.
Living Space and Features
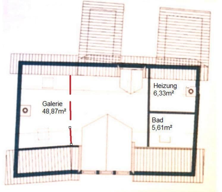
• Living area: 111 m²
• Rooms: 2 bedrooms, open living areas
• Kitchen: Fitted kitchen included
• Bathrooms: 2
• Garden: Private garden with terrace
• Special Features: Listed building, solid wood windows, new heating system, separate entrance
Rental Terms
• Cold rent: €1,050 per month
• Additional costs (for 2 persons): €120 per month (excluding gas and electricity)
• Deposit: 3 months’ cold rent (€3,150), payable before move-in
Viewing Conditions
Before a viewing, the following documents must be submitted:
• Age and occupation
• Number of people moving in
• Current SCHUFA credit report
• Proof of income
Please note: Applications from recipients of citizen’s money or social assistance unfortunately cannot be considered.
Location
The apartment is located in the historic old town of Wolfenbüttel—quiet, central, and with excellent transportation links. Shops, cafés, schools, and public transportation are all within walking distance. Surrounded by charming half-timbered houses, cafés, and cultural attractions, this apartment offers a relaxed living experience with all the conveniences close by.
Special Features
• Historical flair meets modern amenities
• Perfect for couples or individuals looking for something unique
• An ideal blend of urban living and nature
The tenant is responsible for setting up electricity and gas directly with the providers.
Don’t miss out on this rare opportunity! Contact us for a viewing appointment and discover your new home.
Property characteristics
| Age | Over 5050 years |
|---|---|
| Layout | 4+1 |
| Listing ID | 965019 |
| Price per unit | €9 / m2 |
| Condition | Good |
|---|---|
| Floor | 2. floor out of 2 |
| Usable area | 111 m² |
What does this listing have to offer?
| MHD 3 minutes on foot |
| Terrace |
What you will find nearby
Still looking for the right one?
Set up a watchdog. You will receive a summary of your customized offers 1 time a day by email. With the Premium profile, you have 5 watchdogs at your fingertips and when something comes up, they notify you immediately.




















