
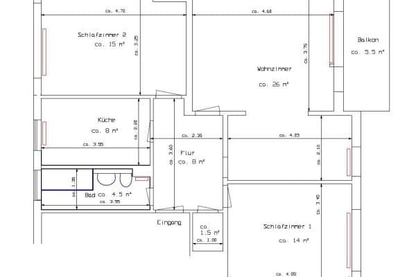
Flat to rent 2 bedroom • 60 m² without real estateGustav-Heinemann-Straße 109 Bremen Findorff Bremen 28215
Gustav-Heinemann-Straße 109 Bremen Findorff Bremen 28215Public transport 1 minute of walking • Lift • ParkingThis high-quality, fully equipped, and newly renovated 2-room apartment at Gustav-Heinemann-Straße 109 is located in a well-maintained multi-family building in the popular Bremen district of Findorff. With approximately 60 m² of living space, it offers modern living comfort with stylish materials and a well-thought-out layout.
Features:
• Upscale finishes in every room
• High-quality flooring with elegant granite tiles
• New fitted kitchen with an induction cooktop, oven with pyrolysis function, dishwasher, and refrigerator-freezer combination
• Modern, freshly renovated bathroom with a bathtub, towel radiator, washbasin, and washing machine
• Bright entrance hall with a wardrobe
• Small, cozy conservatory as an additional retreat
• Large, sunny terrace (approx. 26 m²) with space for a lounge or dining area
• Basement storage compartment for extra storage
• Private outdoor parking space right outside the front door
The apartment is located in one of Bremen’s most desirable residential areas – in the heart of Findorff.
• Bremen City Park: just a 5-minute walk – perfect for strolls or exercise
• Shopping: REWE, Lidl, bakeries, pharmacies, and other shops are only a 1-minute walk away
• Public transport: excellent connections to all parts of the city
• City centre: reachable within minutes by bicycle or bus
• Freshly renovated including a new bathroom
• Large 26 m² terrace
• Basement storage compartment
• Private parking space
• Well-maintained residential complex
Ideal for singles or couples who value stylish living, comfort, and a quiet location with perfect infrastructure.
Property characteristics
| Age | Over 5050 years |
|---|---|
| Condition | After reconstruction |
| Listing ID | 964580 |
| Price per unit | €16 / m2 |
| Available from | 05/12/2025 |
|---|---|
| Layout | 2 bedroom |
| Usable area | 60 m² |
What does this listing have to offer?
| Basement | |
| Parking | |
| Terrace |
| Lift | |
| MHD 1 minute on foot |
What you will find nearby
Still looking for the right one?
Set up a watchdog. You will receive a summary of your customized offers 1 time a day by email. With the Premium profile, you have 5 watchdogs at your fingertips and when something comes up, they notify you immediately.

















