House for sale • 245 m² without real estateWilhelmsburg Wilhelmsburg Niederösterreich 3150
Wilhelmsburg Wilhelmsburg Niederösterreich 3150Public transport 1 minute of walking • ParkingFor sale is a charming and well-maintained multi-family house with four separately usable residential units in a central location in Wilhelmsburg, south of St. Pölten. The property combines historical character with modern living comfort and is suitable both as an attractive investment property and for owner-occupation—for example, for multi-generational living or a combination of living and renting. The property is only 40 minutes from the Annaberg ski area.
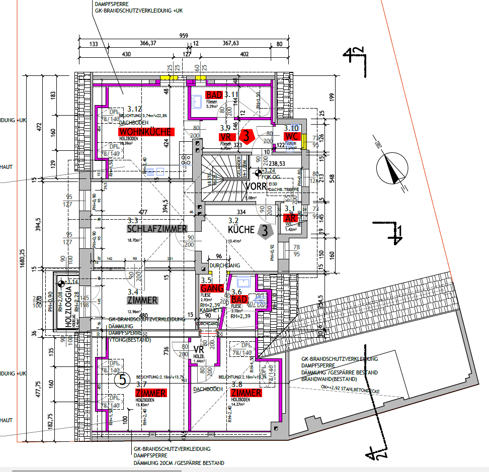
The house dates between 1905 and 1910, but in recent years it has been comprehensively renovated and modernized. Particularly noteworthy is the high-quality finished attic area from 2023, which offers additional living space with a special flair.
Heating is provided by a central, nearly new pellet heating system that efficiently and in an environmentally friendly manner ensures comfortable warmth. Over the past five years, continuous investments have been made in the building’s structure and features:
• The roof was completely re-covered.
• The facade was renovated.
• The driveway was newly paved.
• The attic conversion was implemented.
• A new fence was erected along the street side.
This property offers a rare opportunity to acquire a versatile residential object with strong potential for value appreciation—in a region with good infrastructure and a high quality of life.
Key Details
• Purchase price: €745,000
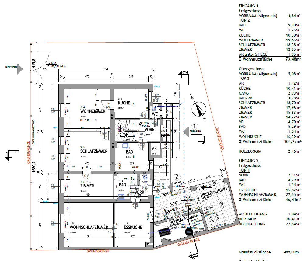
• Total living area: approx. 225 m²
• Plot area: approx. 489 m²
• Number of rooms: 16
• Bedrooms: 6
• Bathrooms: 4
• Parking spaces: 2 in front of the house (on public land) plus additional ones in the courtyard
• Heating: central pellet heating (built in 2020)
• Basement: approx. 9 m²
• Special features: wooden winter balcony, thermal insulation, quiet location, good public connections
• Internet: fiber optic connection available
Apartment Layout
• Unit 1 (Ground Floor, approx. 73 m²): Kitchen, living room, 2 bedrooms, bathroom, WC
• Unit 2 (Ground Floor, approx. 46 m²): Kitchen, bedroom, bathroom, WC
• Unit 3 (Attic, approx. 80 m²): Kitchen, living room, 2 bedrooms, bathroom/WC, office, balcony, storage room
• Unit 4 (Attic, approx. 28 m²): Studio with open kitchen/living area, bathroom/WC
Two unrenovated apartments on the ground floor are currently rented on a fixed-term basis, and the large apartment in the attic is currently occupied by my family and me. Thus, Unit 4 is presently available.
Location & Infrastructure
The property is located in Wilhelmsburg, a quiet small town with excellent infrastructure:
• Highway connection, train station, and bus stop are reachable within 10 minutes.
• Shopping facilities, doctors, and schools are within walking distance.
• The surrounding nature, with good links to industrial areas, is ideal for tenants and commuters.
In 2015, there was a water damage incident in one of the apartments, which was subsequently renovated in the following years. Details are available on request. An ancillary building on the property was affected by fire in 2018 and was extensively renovated in 2019 and 2020. The attic was developed in 2023. An energy certificate is available.
Property characteristics
| Age | Over 5050 years |
|---|---|
| Floor | Ground floor |
| EPC | B - Very economical |
| Land space | 489 m² |
| Condition | Good |
|---|---|
| Listing ID | 964574 |
| Usable area | 245 m² |
| Price per unit | €3,041 / m2 |
What does this listing have to offer?
| Balcony | |
| Parking | |
| Terrace |
| Basement | |
| MHD 1 minute on foot |
What you will find nearby
Still looking for the right one?
Set up a watchdog. You will receive a summary of your customized offers 1 time a day by email. With the Premium profile, you have 5 watchdogs at your fingertips and when something comes up, they notify you immediately.



















