House to rent 5+1 • 141 m² without real estateBussardstr. 6d Ingolstadt Gerolfing Bayern 85049
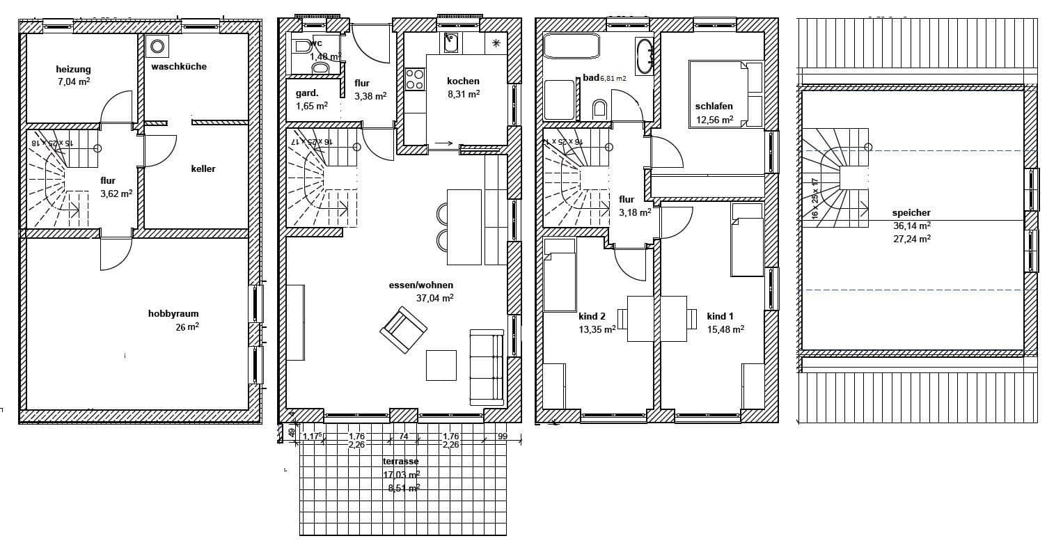
Bussardstr. 6d Ingolstadt Gerolfing Bayern 85049Public transport 2 minutes of walking • Parking • GarageBeautiful end-row terraced house with plenty of living space for rent in Ingolstadt-Gerolfing. On the ground floor, you first enter through the hallway. Here you’ll also find the guest WC, the large, light-filled living room, and the charming fitted kitchen (with a small transfer fee). On the upper floor, there are three bedrooms with large windows and the family bathroom.
As a highlight, the attic offers a spacious room with a cozy exposed beam ceiling.
A south-facing terrace with a large, quiet garden and a shed for bicycles and/or gardening tools creates the perfect outdoor retreat. The house features a full basement with an additional 26 m² hobby room. This level also houses the gas heating system, which is supported by a thermal solar installation.
A lockable garage and an additional parking space are included.
The Gerolfing district is located in the west of Ingolstadt and provides all necessary infrastructure such as a kindergarten, primary school, shops, and medical services. The active local community offers many opportunities, and the nearby Danube wetlands invite you for walks or fun swimming at the local pond.
Major employers, such as Audi or the local hospital, are virtually around the corner.
This terraced house was built with high-quality materials and attractive room design. Thanks to the superior construction and solar-supported hot water generation, the additional costs are kept to a low level. The energy certificate from 2013 shows 61.5 kWh/m²*a (green range). A new certificate is currently being prepared.
We consider a tenant self-disclosure—including information about incoming persons, employers with income details, and previous rental history—as essential information prior to scheduling a viewing.
Property characteristics
| Age | Over 5050 years |
|---|---|
| Condition | Good |
| Listing ID | 964254 |
| Usable area | 141 m² |
| Total floors | 3 |
| Available from | 01/02/2026 |
|---|---|
| Layout | 5+1 |
| EPC | A - Extremely economical |
| Land space | 255 m² |
| Price per unit | €12 / m2 |
What does this listing have to offer?
| Basement | |
| Parking | |
| Terrace |
| Garage | |
| MHD 2 minutes on foot |
What you will find nearby
Still looking for the right one?
Set up a watchdog. You will receive a summary of your customized offers 1 time a day by email. With the Premium profile, you have 5 watchdogs at your fingertips and when something comes up, they notify you immediately.








