
Flat for sale 2+kk • 50 m² without real estateKomunardů, Prague - Holešovice
Komunardů, Prague - HolešovicePartially equipped • Lift • Balcony 1 m² • Cellar 3 m²Vlastnictví - Osobní
Dispozice - 2+kk
Plocha bytu - 49,8 m2
Podlaží - 4.
Sklep - Ano, viz foto
Vytápění - Nové el. akumulační radiátory, wifi ovládání
Teplá voda - El. bojler
Okna - Plastová, izol. Dvojsklo
Elektroměr - 3 fáze, 3x25A
Rozvody el. - Měď, nedávná rekonstrukce
Balkon - Ano, do prostoru mezi domy
Výtah - Ano, do mezipodesty
Přílohy k prohlídce - bezdlužnost SVJ, PENB, prohlášení vlastníka, list vlastnictví, návrh kupní smlouvy, skutečné zaměření bytu s dispoziční studií, zápis ze shromáždění SVJ za rok 2025, aktuální předpis záloh
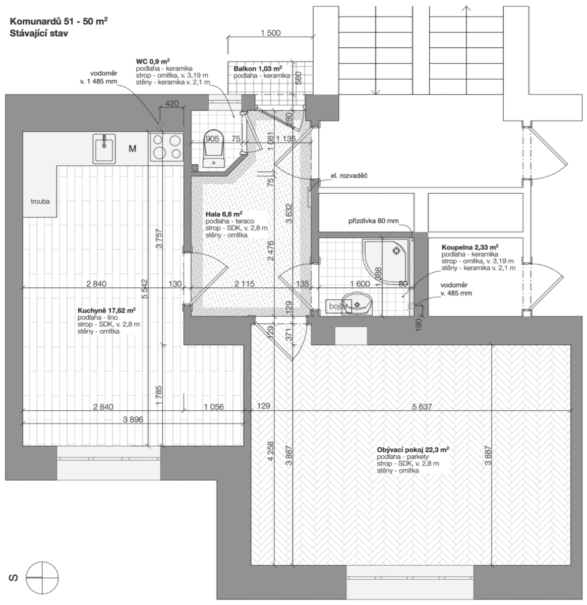
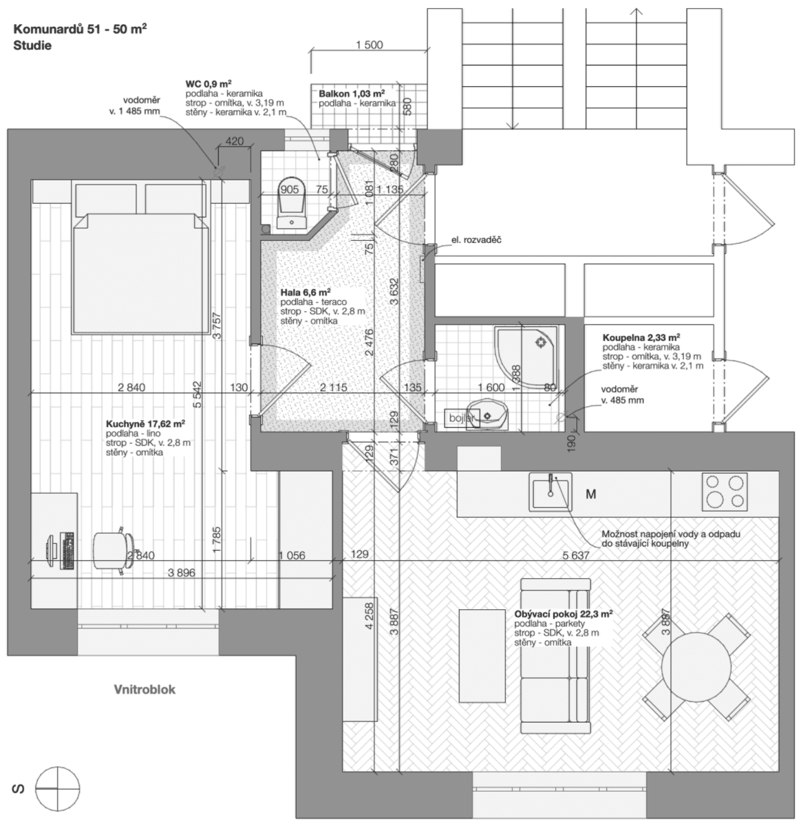
Byt je velmi světlý. Obě obytné místnosti směřují do klidného vnitrobloku se západní orientací. Je po nedávné rekonstrukci (omítky, elektro, kuchyně, okna…) a je možné jeho okamžité užívání. Výšky a rozměry místností, návaznosti dispozice a povrchy jsou popsány v přiložených půdorysech. V obývacím pokoji jsou původní parkety v dobrém stavu. V chodbě je původní teraco, které by chtělo zrenovovat. V kuchyni je stávající linoleum na DTD velkoplošných deskách, které s největší pravděpodobností překrývají původní parkety nebo podlahová prkna - sonda nebyla provedena. Dispozičně je možné přemístit kuchyni do větší obytné místnosti s napojením odpadů a vody do koupelny. Společné prostory domu jsou udržované a čisté s původními povrchy a detaily.
SVJ řádně fungující. Zápis ze shromáždění za rok 2025 k nahlédnutí. Aktuální výše předepsaných záloh je 2 359 Kč (předpis záloh k nahlédnutí)
Jedná se o přímý prodej bez provize realitní kanceláři. Realitní kanceláře prosím nekontaktovat.
Property characteristics
| Available from | 11/11/2025 |
|---|---|
| Building construction | Brick |
| Fully furnished | Partly |
| Design | Standard |
| Listing ID | 964051 |
| EPC | G - Extremely uneconomical |
| Usable area | 50 m² |
| Condition | Good |
|---|---|
| Layout | 2+kk |
| Floor | 4. floor out of 6 |
| Heating | Electric boiler |
| Ownership | Personal |
| Location | Quiet area |
| Price per unit | CZK 164,800 / m2 |
Are you choosing a apartment?
Make sure you have all the important information!
What does this listing have to offer?
| Balcony: 1 m² | |
| Lift |
| Basement: 3 m² |
What you will find nearby
Still looking for the right one?
Set up a watchdog. You will receive a summary of your customized offers 1 time a day by email. With the Premium profile, you have 5 watchdogs at your fingertips and when something comes up, they notify you immediately.
























