House for sale 4+1 • 100 m² without real estateŽandov - Radeč u Horní Police, Liberecký Region
Žandov - Radeč u Horní Police, Liberecký RegionParking • Cellar 10 m² • Terrace 30 m²Dobrý den, jako přímý vlastník prodám rodinný dům v CHKO České středohoří na adrese Radeč 50 (Radeč u Horní Police).
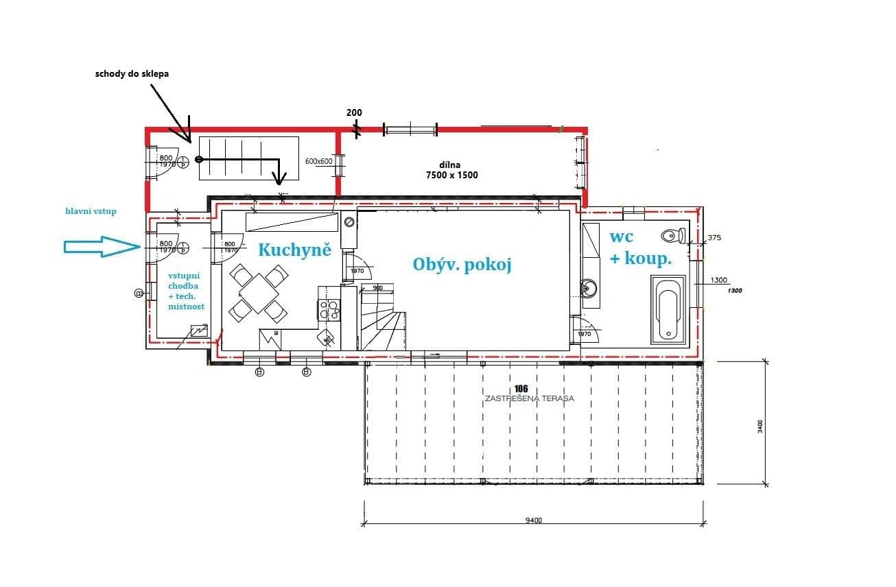
Jedná se o stavbu kolaudovanou v roce 2020 (nedokončená rekonstrukce). Zděná poctivá stavba z Ytongu 375, okna Vekra, střešní pálené tašky Tondach. Dům o užitné podlahové ploše 100m² + 25m² kolna + krásná zastřešená terasa 30m² + cca 10m² sklep. Dispozice domu viz. přiložené půdorysy.
Nádherná zahrada orientovaná na jih – slunce po celý den, velikost parcely 2200m2, která je celá stavební. V domě nové rozvody elektřiny. Vnitřek je potřeba kompletně dokončit (rozvody, topení, schodiště, omítky). Je potřeba také instalovat novou jímku a dodělat fasádu. Vše si tak můžete přizpůsobit vašemu vkusu.
Na zahradě jsou vzrostlé duby, ovocné stromy a keře, kompostér a zahradní domek s vodou a elektřinou (umístěn také bojler, vana ke koupání atd.). Bezproblémový příjezd z přilehlé cesty i obecního pozemku.
Jedná se o klidné místo v naprosté přírodě, bez světelného znečištění s pohodovými sousedy.
Obec Radeč je od České Lípy asi 10 min jízdy autem, do Prahy pak něco přes hodinu. V České Lípě je veškerá občanská vybavenost (nákupní centrum je na okraji České Lípy blíž k Radči, nemusíte proto vůbec zajíždět do města). Radeč spadá pod město Žandov, kde naleznete vše potřebné: pošta, škola, obchody, úřad, restaurace atd. Asi 2 km od domu je v Horní Polici přírodní koupaliště.
V blízkém okolí je Národní park České Švýcarsko, CHKO Kokořínsko, hrad Sloup, pohádkové Varhany a mnoho dalšího. Nedaleko je také Máchovo jezero.
V případě zájmu o bližší informace mne kontaktuje.
Property characteristics
| Available from | 11/11/2025 |
|---|---|
| Building construction | Brick |
| Fully furnished | Unfurnished |
| Ownership | Personal |
| Location of the house | Separate |
| Land space | 2,200 m² |
| Condition | New-build |
|---|---|
| Layout | 4+1 |
| Listing ID | 964040 |
| EPC | C - Economical |
| Usable area | 100 m² |
| Price per unit | CZK 54,000 / m2 |
What does this listing have to offer?
| Basement: 10 m² | |
| Terrace: 30 m² |
| Parking |
What you will find nearby
Still looking for the right one?
Set up a watchdog. You will receive a summary of your customized offers 1 time a day by email. With the Premium profile, you have 5 watchdogs at your fingertips and when something comes up, they notify you immediately.













