Flat for sale 5+1 • 160 m² without real estate, Bavaria
, BavariaPublic transport 1 minute of walking • Lift • ParkingFollowing a conversion of an existing building, a luxurious apartment spanning two floors was created on the ground and upper levels, with its own entrance and the ambiance of an end-of-terrace house.
The residence impresses with a large south-facing terrace, complete with a private garden section.
On the ground floor, you will find the open living and dining area, a modern kitchen with a pantry, and a guest WC equipped with connections for a washing machine and dryer. Also on the ground floor is a practical home office, especially important nowadays.
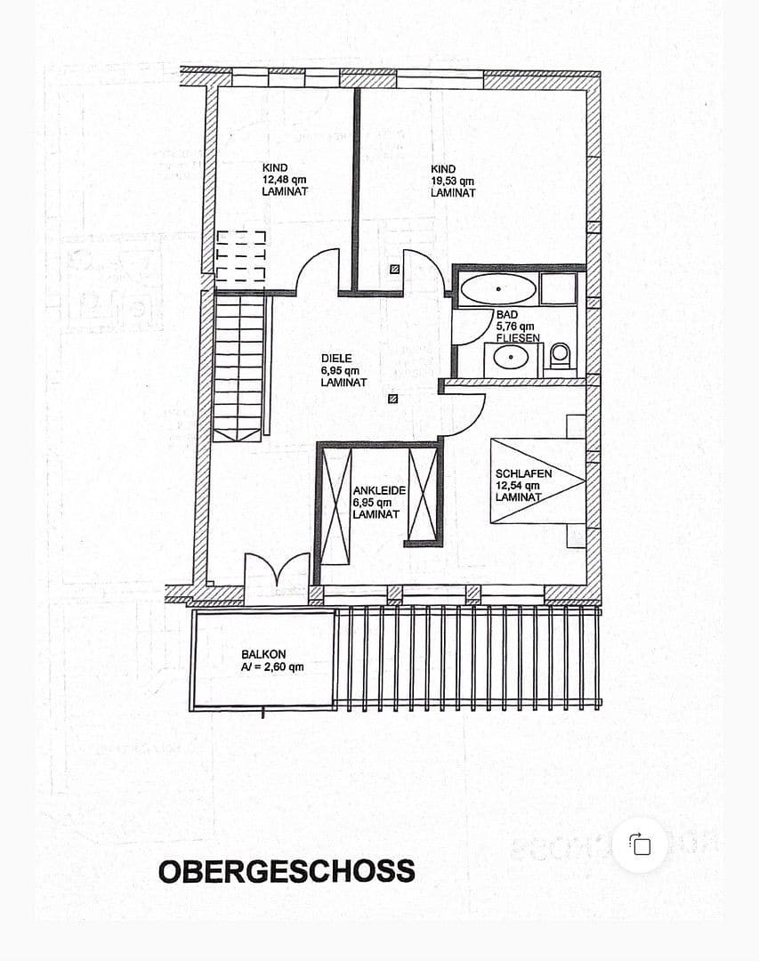
On the upper floor are the two children’s rooms, one of which includes a dressing room. Additionally, there is the master bedroom featuring a dreamy fitted wardrobe and an integrated TV, a family bathroom, and a magnificent south-facing balcony.
With over 3,000 residents, Furth boasts an excellent infrastructure.
It offers a kindergarten with a nursery, a forest kindergarten, an after-school care facility, elementary and secondary schools, and a Maristen Gymnasium.
In the town center, you will find everything needed for daily necessities such as a bakery, butcher, restaurants, a village shop, banks, various doctors, and a pharmacy.
The property includes:
- A controlled ventilation system with heat recovery
- District heating with wood pellet heating
- Rainwater utilization
- Windows in stained larch wood with triple glazing
- Two large, brick-built, lockable cellar rooms
- One parking space next to the entrance and one carport in front of the door
- A fitted kitchen, a fitted wardrobe in the bedroom, and a fitted wardrobe in the guest WC
- New parquet flooring installed in 2014
- A terrace with beautiful granite slabs installed in 2016
This apartment can be converted into two smaller apartments with very little effort. Currently, the apartment is very well rented for €1,500 per month cold rent. The lease has been in effect since 2023.
Property characteristics
| Age | Over 5050 years |
|---|---|
| Condition | Very good |
| Listing ID | 964008 |
| Usable area | 160 m² |
| Available from | 18/11/2025 |
|---|---|
| Layout | 5+1 |
| EPC | C - Economical |
| Price per unit | €3,563 / m2 |
What does this listing have to offer?
| Balcony | |
| Lift | |
| MHD 1 minute on foot |
| Basement | |
| Parking | |
| Terrace |
What you will find nearby
Still looking for the right one?
Set up a watchdog. You will receive a summary of your customized offers 1 time a day by email. With the Premium profile, you have 5 watchdogs at your fingertips and when something comes up, they notify you immediately.












