
Flat for sale 3+kk • 91 m² without real estateHummelbergstraße 2/1, , Baden-Württemberg
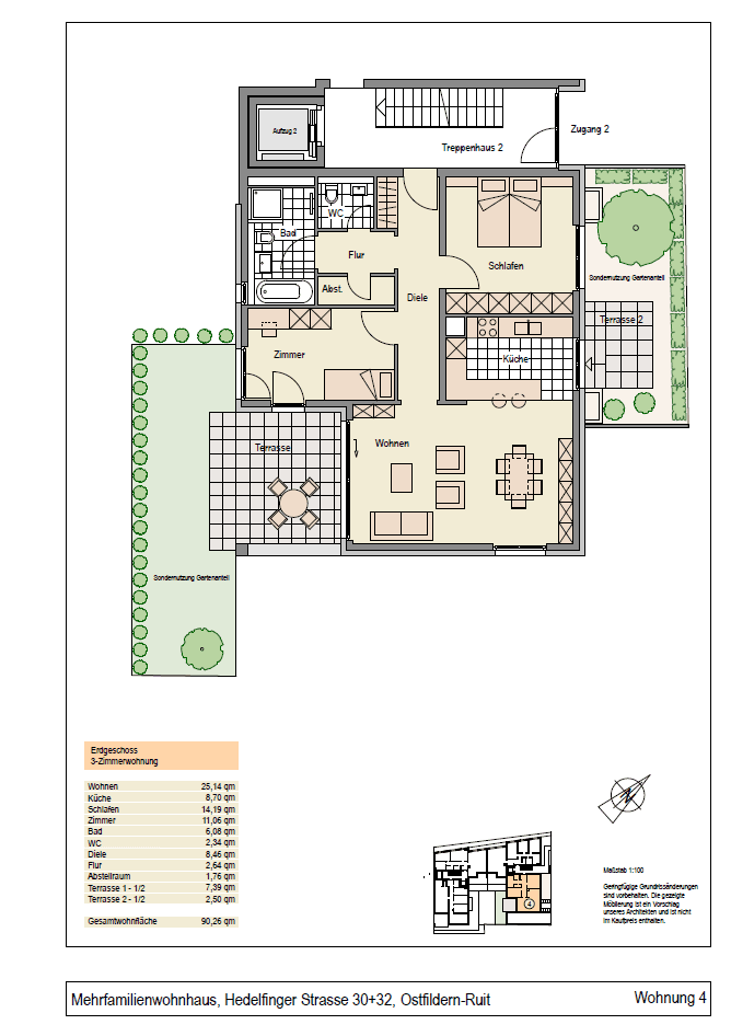
Hummelbergstraße 2/1, , Baden-WürttembergPublic transport 1 minute of walking • Lift • GarageThis like-new 3.5-room ground floor apartment is located in a residential building completed in 2015 in the central area of Ostfildern Ruit. The building features central heating and is equipped with underfloor heating in every room.
The apartment is barrier-free, and the large basement as well as the underground garage can be reached by elevator. Particularly impressive is the spacious, light-filled living and dining area of approximately 34 m², featuring an open kitchen and direct access to a terrace well-protected by a hedge, as well as to a large covered terrace facing the inner courtyard. In addition to a guest WC, this beautiful apartment offers a storage room and a separate laundry cellar where a washing machine and dryer can be accommodated.
The offering is rounded off by an underground parking space that you can purchase separately. The building is predominantly owner-occupied, which ensures it is very well maintained and fosters a very strong community spirit.
Despite the new condition and very low maintenance costs, the service charge reserve is well-funded with around €40,000 and amounts to only approximately €40 per month.
The apartment is currently rented (approximately €15 per m²) and is suitable for both owner-occupiers and investors.
The first viewing appointments are available on Sunday, 16 November 2025 from 9:00.
The building has excellent transport links to both train and bus services, with stops less than 50 meters away. The subway station is reachable in approximately 2 minutes on foot. Due to its central location in Ostfildern Ruit, all shops catering to daily needs are within walking distance. In just a few minutes by car, you can also reach the A8 motorway and Stuttgart Airport. Furthermore, within a few minutes on foot you will find green spaces, offering an ideal blend of urban convenience and nature.
Features:
- Underfloor heating throughout the apartment
- High-quality parquet flooring in all living areas
- Large sliding door with electric rolling shutter in the living room
- Branded fitted kitchen with Miele appliances
- Natural stone tiles in the kitchen and bathroom
- Bathtub and walk-in shower in the bathroom
- Guest WC with ventilation
- Spacious parking space in the underground garage
Property characteristics
| Age | Over 5050 years |
|---|---|
| Condition | Very good |
| Listing ID | 963860 |
| Price per unit | €5,363 / m2 |
| Available from | 01/01/2026 |
|---|---|
| Layout | 3+kk |
| Usable area | 91 m² |
What does this listing have to offer?
| Balcony | |
| Basement | |
| Lift | |
| Terrace |
| Wheelchair accessible | |
| Garage | |
| MHD 1 minute on foot |
What you will find nearby
Still looking for the right one?
Set up a watchdog. You will receive a summary of your customized offers 1 time a day by email. With the Premium profile, you have 5 watchdogs at your fingertips and when something comes up, they notify you immediately.











