House for sale 4+1 • 78 m² without real estateBamberger Str. 15, , Bavaria
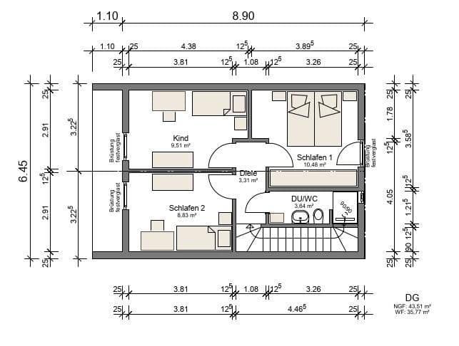
This new construction project comprises a total of 13 modern row houses built sustainably using wood. Each house offers a living area of 77.66 m² (excluding terrace area) and features 4 rooms with an efficient layout. Only high-quality materials are used in the construction to create a durable and comfortable home.
The project is being realized according to the KfW 40 QNG standard, thus meeting the highest requirements for energy efficiency and sustainability. Families additionally benefit from the attractive support provided by the KfW program “Home Ownership for Families – New Construction,” with financing options starting from 0.01% and subsidies of up to €270,000.
https://www.kfw.de/inlandsfoerderung/Privatpersonen/Neubau/F%C3%B6rderprodukte/Wohneigentum-f%C3%BCr-Familien-(300)/
The plots are each approximately 250 m², offering plenty of space for individual design. The outdoor areas can be developed by the owners according to their own ideas; only the access roads in the common property area are constructed by the developer. All additional costs, such as development charges, utility connections, and earthworks, are already included in the purchase price.
Moreover, you will not have to carry out any extra work such as painting, flooring, or similar services – the houses are delivered ready for occupancy. Simply move in and feel at home.
Completion is planned for 2026; the project is currently still in the planning phase. Reserve your spot now!
The municipality of Stegaurach, with approximately 6,900 inhabitants, is located in the Upper Franconian district of Bamberg and is part of the Nuremberg Metropolitan Region. It lies idyllically in the Aurach valley, at the foot of the Altenburg, and is characterized by meadows, watercourses, and ponds – an environment that offers a close connection to nature and relaxation right at your doorstep.
Parking space: €5,000.00
Property characteristics
| Age | Over 5050 years |
|---|---|
| Listing ID | 963535 |
| Usable area | 78 m² |
| Price per unit | €4,679 / m2 |
| Layout | 4+1 |
|---|---|
| EPC | A - Extremely economical |
| Land space | 250 m² |
What does this listing have to offer?
| Parking | |
| Terrace |
| MHD 3 minutes on foot |
What you will find nearby
Still looking for the right one?
Set up a watchdog. You will receive a summary of your customized offers 1 time a day by email. With the Premium profile, you have 5 watchdogs at your fingertips and when something comes up, they notify you immediately.


