
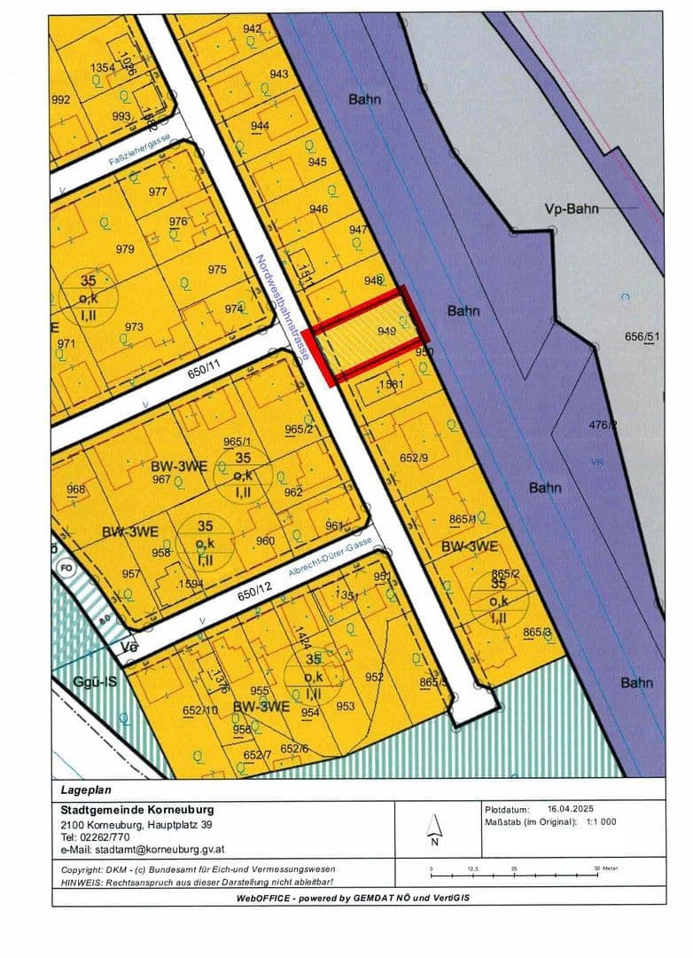
Plot for sale • 460 m² without real estateNordwestbahnstrasse 53a Korneuburg Korneuburg Niederösterreich 2100
Nordwestbahnstrasse 53a Korneuburg Korneuburg Niederösterreich 2100Public transport 9 minutes of walkingThis generous building plot with a total area of 460 m² (construction class II) is located at Nordwestbahnstrasse 53a in 2100 Korneuburg. The plot offered for sale is intended for residential purposes and is available at a price of €358,800.
There is no obligation to build on the property, although it should be noted that connection fees of approximately €30,000 still have to be paid to the municipality. The future owner can thus decide flexibly on the timing of the development.
Due to its close proximity to the center and the train station, both can be reached within a few minutes on foot.
Electricity is available, and there is well water on the property, as well as a mobile toilet.
Property characteristics
| Listing ID | 963240 |
|---|---|
| Price per unit | €780 / m2 |
| Land space | 460 m² |
|---|
What does this listing have to offer?
| MHD 9 minutes on foot |
What you will find nearby
Still looking for the right one?
Set up a watchdog. You will receive a summary of your customized offers 1 time a day by email. With the Premium profile, you have 5 watchdogs at your fingertips and when something comes up, they notify you immediately.









