House for sale 7+1 • 170 m² without real estateLanggasse 32, , Hesse
Langgasse 32, , HessePublic transport 2 minutes of walking • ParkingThis impressive residential building, constructed in 1732, combines historic charm with a variety of design possibilities. With a total living space of approximately 170 m² spread over two full floors, the property offers ample room for individualized living concepts – whether as a spacious single-family home or through a possible division into two separate units.
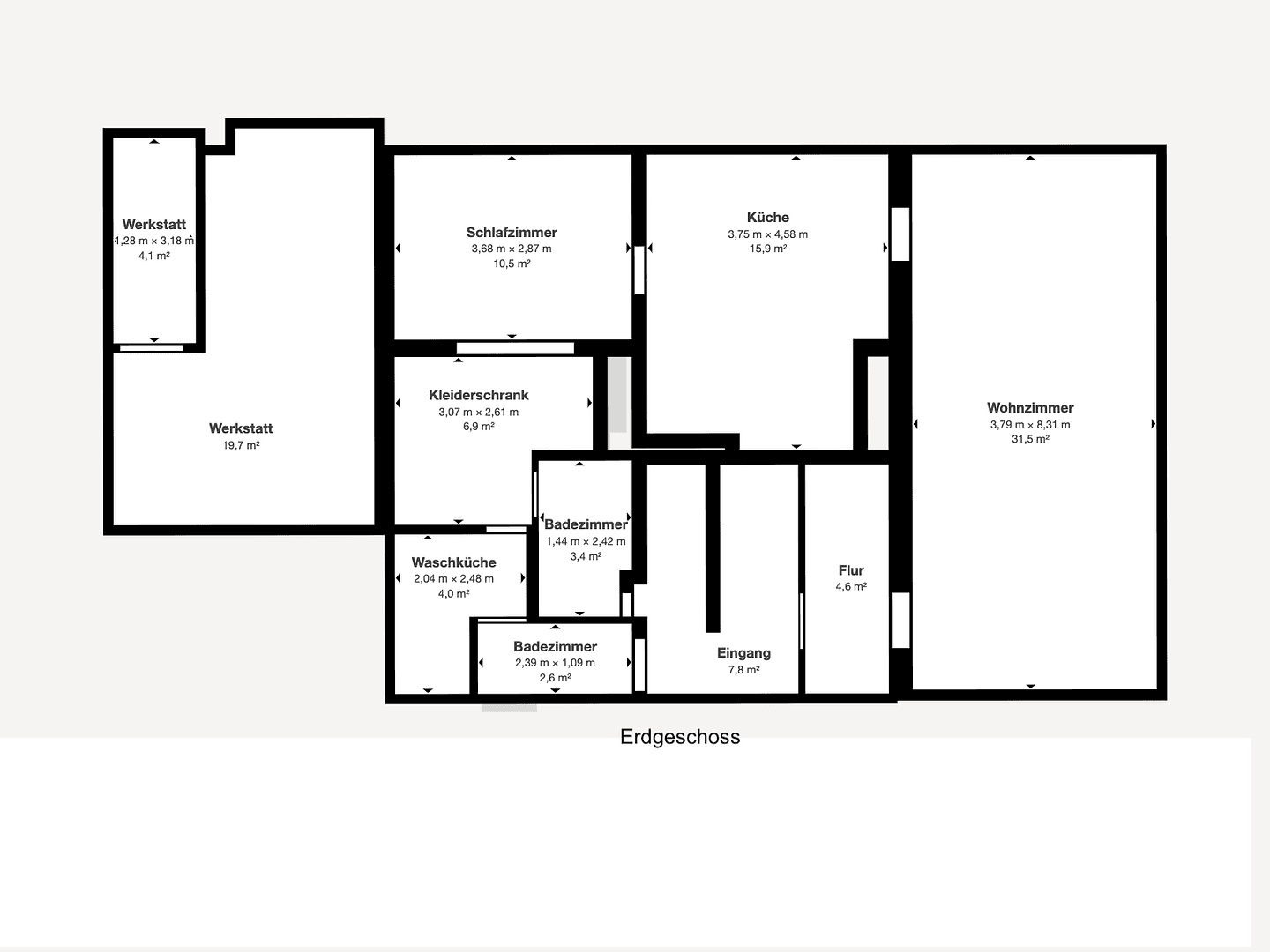
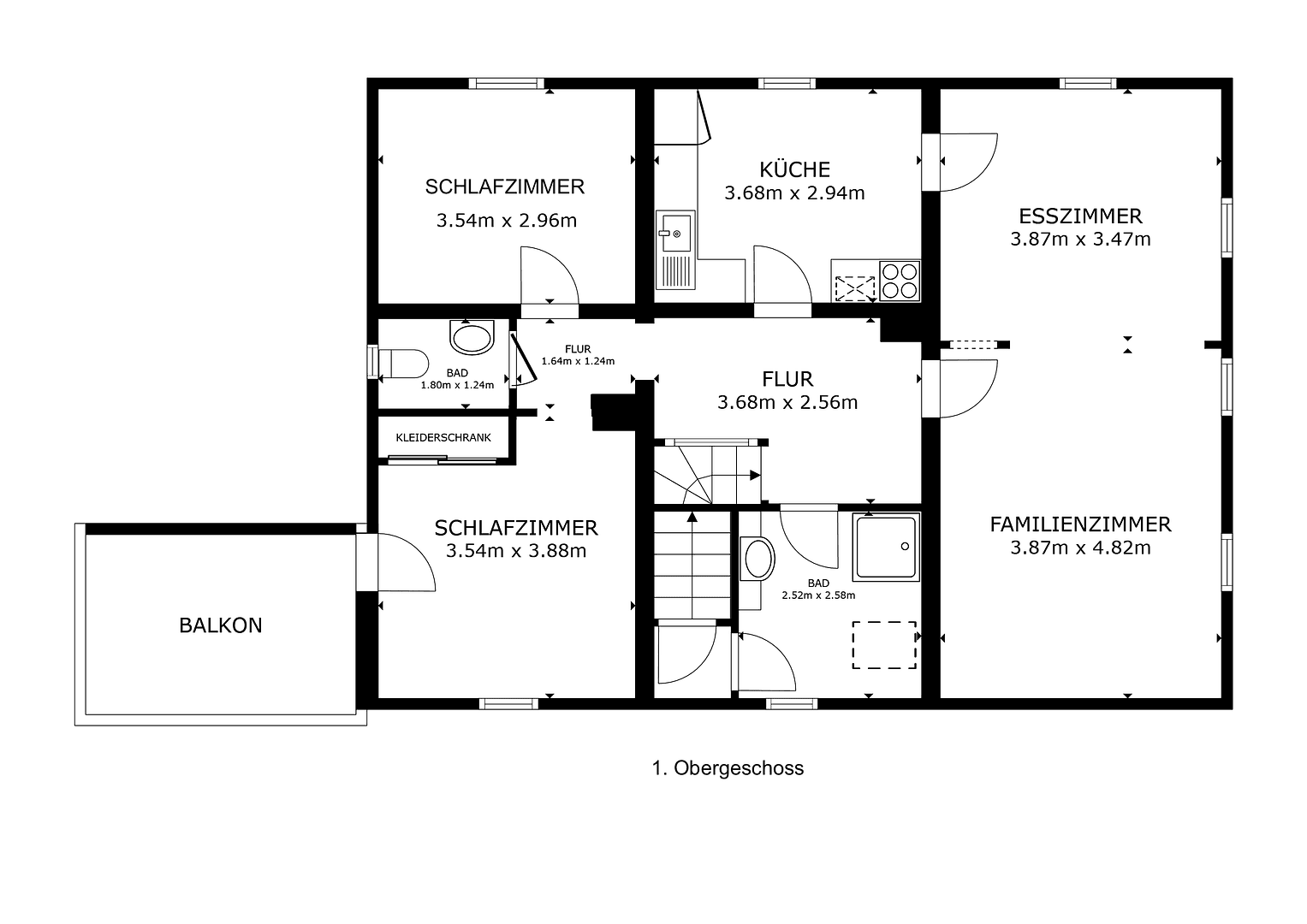
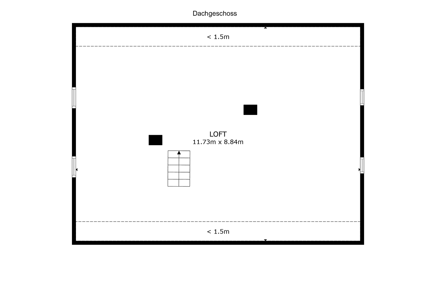
The house is partially basemented and has an attic that can be developed further to provide additional living space. The generous floor plan comprises approximately 85.5 m² of living space on the ground floor and about 84.5 m² on the first floor. A balcony on the upper floor invites you to relax while enjoying a pleasant view of the courtyard.
In the courtyard area, two carports are available, providing sufficient space for vehicles. An outbuilding for workshop purposes ideally complements the ensemble, offering space for crafts or additional storage.
The building presents great potential for renovation and is particularly suited for craftsmen and project developers. With the appropriate modernization, it is possible to create a unique home with an exceptional flair.
The property is located at Langgasse 32 in Mörfelden-Walldorf, a town of around 31,600 inhabitants in the Groß-Gerau district of Hesse.
Environment & Urban Connection
Mörfelden-Walldorf is very conveniently located in the Rhine-Main region, making short trips to the center of Frankfurt possible as well as to other important cities such as Darmstadt. Its proximity to Frankfurt Airport can be a significant advantage for commuters.
There are good local amenities (supermarkets, shops, service providers) in the districts of Mörfelden and Walldorf.
Schools and kindergartens are available in the town, including primary schools in both districts and a comprehensive integrated secondary school.
Transport Connections
Mörfelden-Walldorf is well connected via federal roads (e.g., B44 and B486) and state roads.
Public transportation offers regional train and S-Bahn connections, for example, from the stations in Mörfelden and Walldorf. For motorists, highways and major traffic routes can be reached in a relatively short time.
Property characteristics
| Age | Over 5050 years |
|---|---|
| Condition | Before reconstruction |
| Listing ID | 963065 |
| Usable area | 170 m² |
| Total floors | 3 |
| Available from | 10/11/2025 |
|---|---|
| Layout | 7+1 |
| EPC | G - Extremely uneconomical |
| Land space | 378 m² |
| Price per unit | €1,941 / m2 |
What does this listing have to offer?
| Balcony | |
| Parking |
| Basement | |
| MHD 2 minutes on foot |
What you will find nearby
Still looking for the right one?
Set up a watchdog. You will receive a summary of your customized offers 1 time a day by email. With the Premium profile, you have 5 watchdogs at your fingertips and when something comes up, they notify you immediately.






















