Flat for sale 4+1 • 127 m² without real estateHamburg Rahlstedt Hamburg 22143
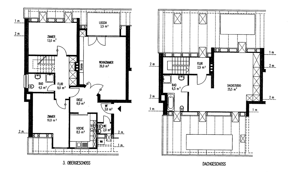
Hamburg Rahlstedt Hamburg 22143Public transport 1 minute of walking • GarageThis charming four-room maisonette apartment with approximately 127 m² of living space is located on the top floor of a six-unit building in Hamburg-Rahlstedt. The apartment features two daylight bathrooms. A bright living area with access to a south-facing loggia, complete with an electric awning, invites you to relax. Next to the kitchen, which includes a fitted kitchen, there is a utility room with a washing machine connection. Through a hallway equipped with practical built-in wardrobes, two additional rooms can be reached. The spacious bedroom—with a ceiling height of up to 3 meters and equipped with built-in wardrobes—is located on the upper floor. Here you will also find the large bathroom, which features an additional shower and a bathtub. The apartment will be available for occupancy on February 1, 2026. A large basement room provides additional storage space. A garage parking space is already included in the price and a communal garden is available.
Rahlstedt offers a diverse residential area with quiet, green neighborhoods and good infrastructure – ideal for families and commuters. It is the largest district of Hamburg by area and is located in the Wandsbek district in the northeast of the city. The area is characterized by a mix of urban flair and a nature-adjacent environment. With its numerous parks and green spaces, including the Stellmoorer Tunneltal and the Berner Forest, Rahlstedt provides relaxation and recreational opportunities right at your doorstep.
The nearest bus stop is 100 meters away, and Rahlstedt railway station is 1,000 meters away. From the station, the main railway station can be reached in 16 minutes. Currently, the new S-Bahn line S4 is under construction, which will further improve the connection to the city center.
Windows:
• Partly double-glazed plastic windows
• Partly triple-glazed plastic windows (with external roller shutters)
Floor coverings:
• Strip parquet, carpet, design flooring in a wood look, tiles
Kitchen:
• Off-white fitted kitchen, already included in the price
Bathrooms:
• Daylight bathroom with shower on the upper floor
• Daylight bathroom with bathtub and separate shower on the top floor
Various modernizations have been carried out.
Please note that we can only respond to complete, written inquiries with name, address, and telephone number.
All information is provided without guarantee. Errors and changes excepted.
Real estate agent inquiries are not desired. According to § 7 UWG, unsolicited contact by real estate agents without the explicit consent of the recipient is prohibited!
Property characteristics
| Age | Over 5050 years |
|---|---|
| Condition | Good |
| Floor | 2. floor |
| EPC | C - Economical |
| Price per unit | €4,244 / m2 |
| Available from | 01/02/2026 |
|---|---|
| Layout | 4+1 |
| Listing ID | 962286 |
| Usable area | 127 m² |
What does this listing have to offer?
| Balcony | |
| Garage |
| Basement | |
| MHD 1 minute on foot |
What you will find nearby
Still looking for the right one?
Set up a watchdog. You will receive a summary of your customized offers 1 time a day by email. With the Premium profile, you have 5 watchdogs at your fingertips and when something comes up, they notify you immediately.












