
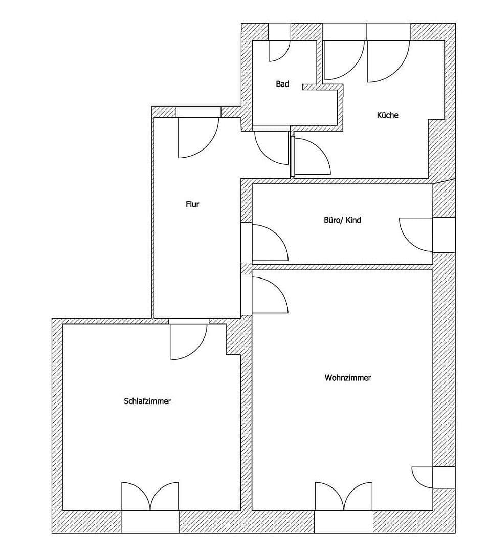
Flat to rent 3+1 • 73 m² without real estateStuttgart West Baden-Württemberg 70193
Stuttgart West Baden-Württemberg 70193Public transport 2 minutes of walkingHighlights at a Glance:
• Comprehensive Renovation: The apartment underwent an extensive renovation in 2024 and now shines in a new glow. The electrical wiring, plumbing, heating system, and windows were completely renewed.
(Photos were taken before the installation of the windows and roller shutters)
• High Ceilings & Original Details: With 3.20 m high ceilings adorned with stucco, premium fine plaster, and beautifully restored original doors, the classic charm of this historic apartment is unmistakably highlighted.
• Refurbished Pitch Pine Floorboards: The original timber floor has been lovingly restored and carefully sealed with hardwax oil. It combines the warm, natural feel and coziness of genuine wood with historical character, creating a uniquely inviting ambiance.
• Modern Bathroom: Exclusive design meets comfort – featuring underfloor heating, a shower with an illuminated niche, a vanity with an integrated base cabinet, a fog-free LED mirror, a towel radiator, and recessed ceiling spotlights for a truly luxurious experience.
• High-Quality Fitted Kitchen: The brand-new kitchen comes fully equipped with premium appliances – oven, induction cooktop, extractor hood with external ventilation, dishwasher, fridge-freezer combination, and washing machine. Perfect for cooking enthusiasts!
(Kitchen rental is an additional €120/month)
• Covered Balcony with a Green View: Enjoy your morning coffee on the covered balcony overlooking lush greenery, complete with a switchable power outlet and lighting for cozy evenings.
• State-of-the-Art Technology: The apartment boasts network connections in every living area, triple-glazed windows with electric shutters, and an efficient gas boiler for both heating and hot water.
**********************************************************
Stuttgart – West: Live in one of Stuttgart’s most attractive locations, where historic charm meets modern comfort. Here, you can enjoy the tranquility of residential living while being just moments away from all essential daily amenities.
**************************************************************
The apartment will be available from December 1, 2025, and is ideally suited for couples, small families, or professionals seeking a special living atmosphere in a prime location.
If you are interested, please send us a message including some details about yourself, your professional situation, and the number of people moving in. We look forward to hearing from you and to showing you the apartment in person!
Property characteristics
| Age | Over 5050 years |
|---|---|
| Condition | After reconstruction |
| Floor | 1. floor out of 5 |
| EPC | G - Extremely uneconomical |
| Price per unit | €21 / m2 |
| Available from | 01/12/2025 |
|---|---|
| Layout | 3+1 |
| Listing ID | 962060 |
| Usable area | 73 m² |
What does this listing have to offer?
| Balcony | |
| MHD 2 minutes on foot |
| Basement |
What you will find nearby
Still looking for the right one?
Set up a watchdog. You will receive a summary of your customized offers 1 time a day by email. With the Premium profile, you have 5 watchdogs at your fingertips and when something comes up, they notify you immediately.
















