Flat for sale 4+1 • 104 m² without real estateSmikova, Prague - Černý Most
Bez prostředníka nabízím k prodeji výjimečný, zrekonstruovaný družstevní byt 4+1 o celkové ploše 104 m², který spojuje moderní styl, dostatek prostoru a promyšlené detaily. Byt se nachází ve čtvrtém patře bez výtahu.
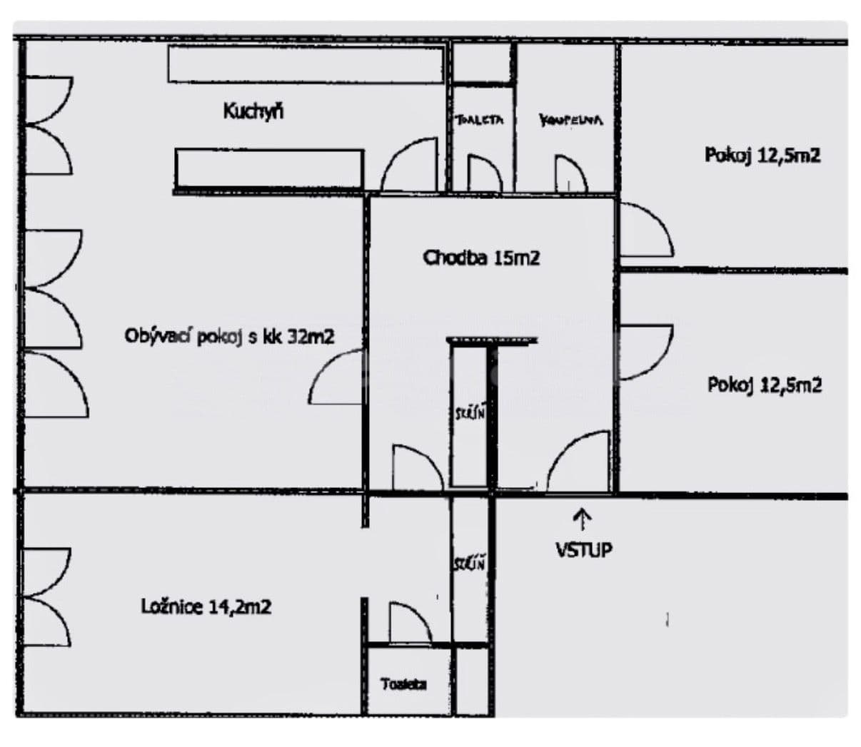
Podlahová plocha činí 95 m², k bytu náleží lodžie o velikosti 7 m² a samostatná komora na patře (2 m²).
Byt nabízí tři samostatné, neprůchozí pokoje, prostorný obývací pokoj se vstupem na lodžii, moderní kuchyň a koupelnu s vanou, doplněnou o dvě samostatná WC. V interiéru dominují kvalitní vinylové podlahy, plastová okna, nové rozvody a stoupačky, a v předsíni praktické vestavěné skříně. Kuchyňská linka je plně vybavená vestavnými spotřebiči – troubou, varnou deskou, myčkou, lednicí i pračkou.
Byt prošel kompletní rekonstrukcí v roce 2022, včetně bezpečnostních vstupních dveří. Aktuální nesplacená anuita činí 3 383 000 Kč.
Tento byt představuje ideální volbu pro ty, kteří hledají kombinaci kvality, prostoru a klidného rodinného bydlení bez nutnosti dalších investic.
Prohlídky jsou možné po předchozí domluvě. Realitní kanceláře prosím nekontaktovat.
Property characteristics
| Available from | 04/11/2025 |
|---|---|
| Building construction | Precast concrete |
| Fully furnished | Partly |
| Design | Standard |
| Listing ID | 961844 |
| EPC | C - Economical |
| Location | Residences |
| Price per unit | CZK 58,654 / m2 |
| Condition | Very good |
|---|---|
| Layout | 4+1 |
| Floor | 4. floor out of 4 |
| Heating | Central |
| Ownership | Cooperative |
| Reconstruction | Complete |
| Usable area | 104 m² |
What does this listing have to offer?
| Basement: 2 m² |
| Loggia balcony: 7 m² |
What you will find nearby
Still looking for the right one?
Set up a watchdog. You will receive a summary of your customized offers 1 time a day by email. With the Premium profile, you have 5 watchdogs at your fingertips and when something comes up, they notify you immediately.
















