
Flat for sale 2 bedroom • 61 m² without real estateWien 2. Bezirk Wien 1020
Wien 2. Bezirk Wien 1020Public transport less than a minute of walking • LiftOLD BUILDING APARTMENT | RECENTLY RENOVATED | GREENED COURTYARD | VENEDIGER AU
The conversion and renovation of the apartment were planned and executed by the architect. Great emphasis was placed on quality and precise workmanship.
The magnificent corner building was also renovated at the base and now presents itself in a contemporary style.
Equipment:
• Underfloor heating with provisions for district heating connection
• Rehau energy-saving and soundproof windows
• Weitzer oak parquet flooring
• Italian fine porcelain tile shower area, with towel warmer
• Wall-mounted WC with electrical and water connections for a bidet function
• Kunex solid wood doors
• Fitted kitchen with island (ordered)
• Security door
• Wolf condensing boiler with provisions for a heat pump or district heating connection
• Cable TV/Internet
• Electrical connections in the window reveals, among many others
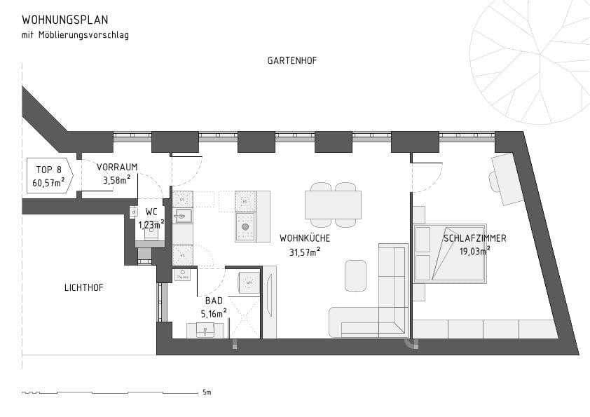
• Fireplace connections in the living room and bedroom
• Greened inner courtyard
• Bicycle and pram room as well as a garbage room on the ground floor
• Built circa 1900
• Large elevator
• Dry basement storage compartment of 3 m²
• Barrier-free
• Monthly service charge of 217 Euros including reserve fund
FREE FROM EXISTING CONTRACTS AND LIABILITIES
I am happy to show you my beautiful apartment so that you can see the difference compared to similar offers.
Surroundings:
U-Bahn, S-Bahn, Vorgartenmarkt, WU, FH, BFI, Webster University, Viertel, two OMV stations, ÖBB, Town-Town, Prater, Augarten, Danube, Ferris wheel, Stadionbad, Austria Campus, Das Muth, Messe Wien, Rad Highway, Kieser Training, Bilal, Penny, Reinthaler, Das Stuber, Mochi, Brösel, The Cake Tree …
High-Quality Materials:
• Windows, floors, and doors from domestic production.
• Bathroom and WC: Italian fine porcelain
• Fitted kitchen ordered, with a delivery time of 6–8 weeks
Notes:
• Resident parking is available in front of the house.
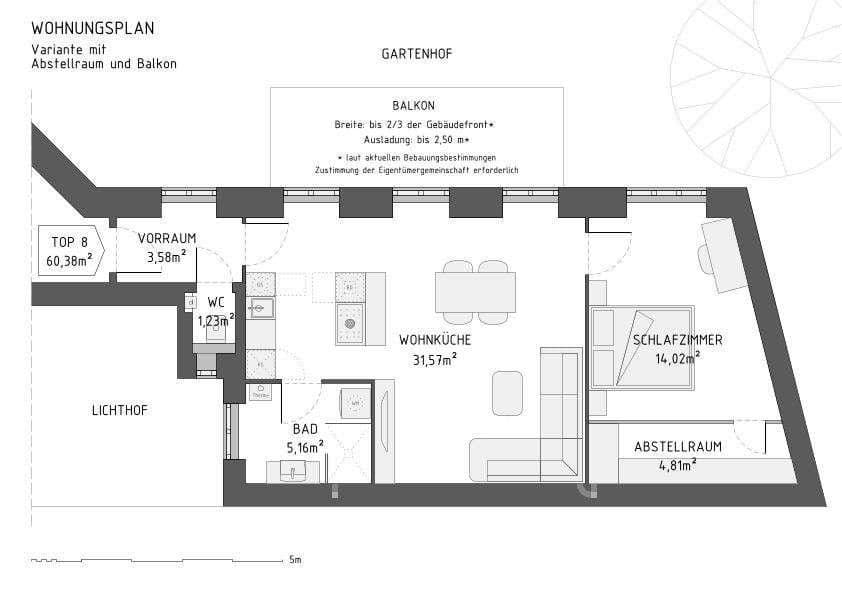
• Balcony addition: “In principle, co-owners must give their consent for the addition of a balcony. However, nowadays there is also the possibility to legally bypass individual consents in line with so-called ‘local custom.’ With the increasing retrofitting of balconies, it is becoming easier to legally enforce the realization of such a project.”
Property characteristics
| Age | Over 5050 years |
|---|---|
| Condition | After reconstruction |
| Floor | 1. floor |
| EPC | C - Economical |
| Price per unit | €8,033 / m2 |
| Available from | 09/11/2025 |
|---|---|
| Layout | 2 bedroom |
| Listing ID | 961729 |
| Usable area | 61 m² |
What does this listing have to offer?
| Wheelchair accessible | |
| Lift |
| Basement | |
| MHD 0 minutes on foot |
What you will find nearby



Flat for saleWithalmstraße Wolkersdorf Wolkersdorf im Weinviertel Niederösterreich 2120- 3+1
- 87 m²
€415,000 + €383

Still looking for the right one?
Set up a watchdog. You will receive a summary of your customized offers 1 time a day by email. With the Premium profile, you have 5 watchdogs at your fingertips and when something comes up, they notify you immediately.












