House for sale 4+1 • 80 m² without real estateMagdeburger Str. 10, , Lower Saxony
Notary appointment only with proof of equity or financing confirmation.
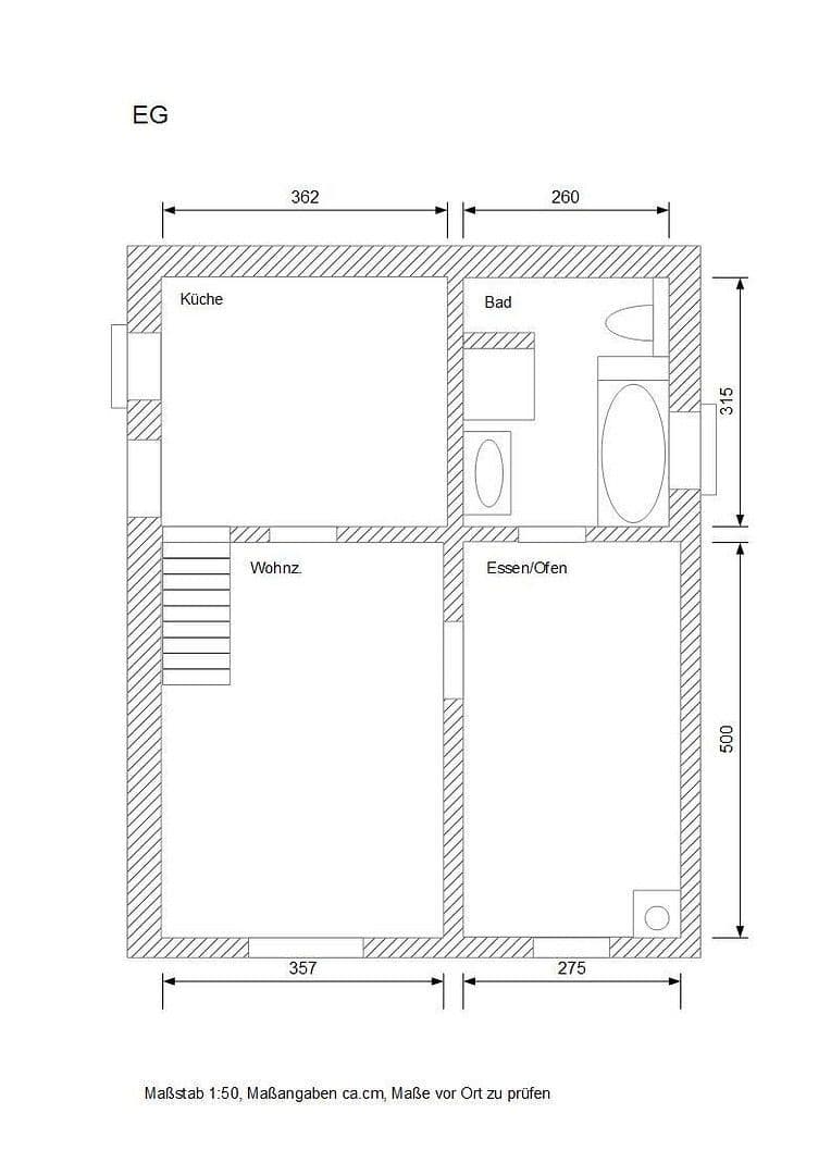
Single-family house, approximately 80 m², comprising:
Ground floor: Bathroom with shower/bathtub and underfloor heating,
Ground floor: Kitchen with fitted kitchen and underfloor heating,
Ground floor: Living room and fireplace room.
Attic floor: Bedroom and dressing room, plus a low attic space used for storage.
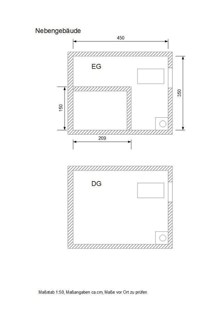
Outbuilding used as a boiler room and storage area.
Aviary for small animals.
Gas connection available; burning wood or briquettes is not a problem.
Kitchen features: Refrigerator/freezer, ceramic hob, oven, dishwasher, sink—with drawers and cabinet doors that close quietly thanks to dampers.
Bathroom features: Wall-mounted fittings by Emco, Kludi, and Grohe.
Motorized shutters in the kitchen, bathroom, bedroom, and attic.
Property characteristics
| Age | Over 5050 years |
|---|---|
| Listing ID | 961696 |
| Usable area | 80 m² |
| Price per unit | €988 / m2 |
| Layout | 4+1 |
|---|---|
| EPC | G - Extremely uneconomical |
| Land space | 122 m² |
What does this listing have to offer?
| MHD 1 minute on foot |
| Terrace |
What you will find nearby
Still looking for the right one?
Set up a watchdog. You will receive a summary of your customized offers 1 time a day by email. With the Premium profile, you have 5 watchdogs at your fingertips and when something comes up, they notify you immediately.























