
Flat to rent 3+1 • 98 m² without real estateMerseburger Straße 95 Leipzig Altlindenau Sachsen 04177
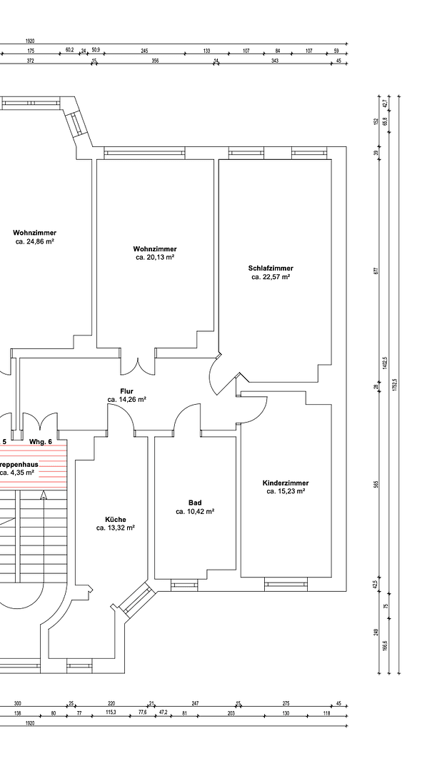
Merseburger Straße 95 Leipzig Altlindenau Sachsen 04177Public transport 2 minutes of walkingThis 3-room apartment on the third floor of a historic listed building has been renovated and is now available for first occupancy. With around 98 m² of living space, you will find bright rooms with high ceilings and stucco details, a spacious living room, and a bathroom featuring a bathtub and a separate shower.
The spacious living room and the practical layout, which caters to both families and couples in need of extra space, are especially worth mentioning.
The apartment is located in a central area in Leipzig, with direct tram and bus connections right at your doorstep. Shopping options, cafés, restaurants, and cultural attractions are in the immediate vicinity. Parks and green spaces are also quickly accessible.
- First occupancy after renovation
- approx. 98 m², 3 rooms, 3rd floor
- Large bathroom with bathtub and separate shower
- High-quality, water-resistant flooring with a wood appearance
- New door handles and window handles, refurbished doors
- Listed historic building with an impressive staircase
Property characteristics
| Age | Over 5050 years |
|---|---|
| Condition | After reconstruction |
| Floor | 3. floor out of 4 |
| Usable area | 98 m² |
| Available from | 09/11/2025 |
|---|---|
| Layout | 3+1 |
| Listing ID | 961557 |
| Price per unit | €13 / m2 |
What does this listing have to offer?
| MHD 2 minutes on foot |
What you will find nearby
Still looking for the right one?
Set up a watchdog. You will receive a summary of your customized offers 1 time a day by email. With the Premium profile, you have 5 watchdogs at your fingertips and when something comes up, they notify you immediately.











