
House for sale 5+kk • 150 m² without real estateNová Ves - Mlýnice, Liberecký Region
Nabízíme k prodeji rodinný dům v malebné obci Nová Ves u Liberce - Mlýnice, který je ideálním místem pro klidný rodinný život. Tento samostatně stojící patrový dům kolaudovaný v roce 2023 nabízí užitnou plochu 150 m² s dispozicí 5+kk a terasami na jižní i severní straně.
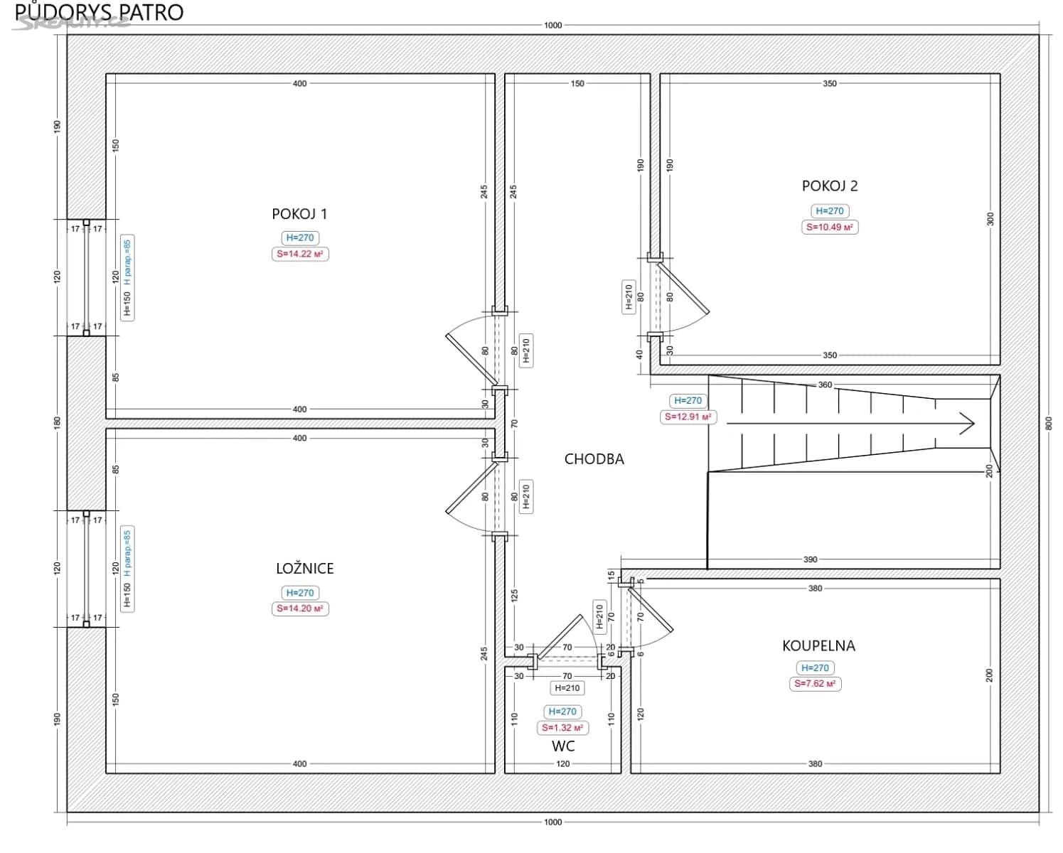
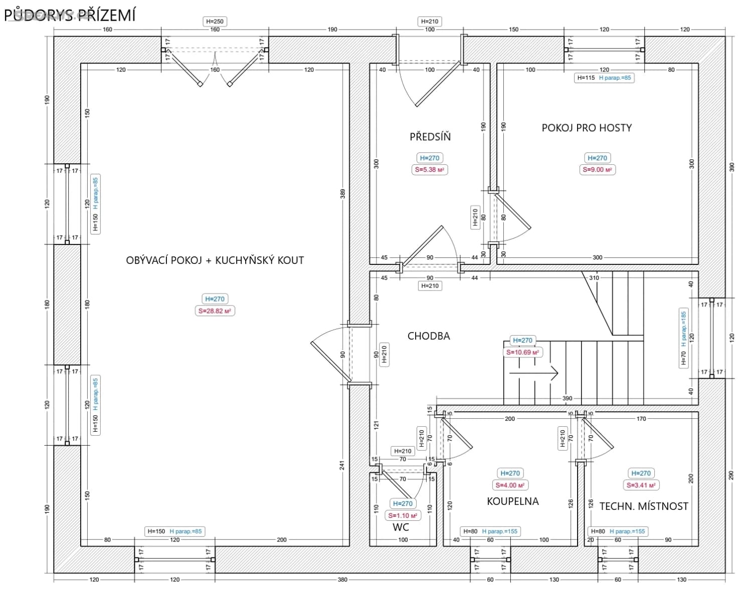
V přízemí domu se nachází prostorná předsíň se vstupem do pokoje pro hosty, dále pokračuje chodba se schodištěm, která spojuje koupelnu, samostatné WC, technickou místnost a prostorný obývací pokoj s kuchyňským koutem vyrobeným na míru, součástí kuchyňské linky jsou vestavěné spotřebiče Beko (indukční deska, el. trouba, mikrovlnná trouba, myčka, digestoř s venkovním odtahem). V obývacím pokoji je možnost připojení krbových kamen do komínu s keramickou vložkou. Po schodišti vystoupáte do patra domu, kde na Vás opět čeká spojovací chodba mezi prostornou koupelnou s vanou, samostatným WC, ložnicí a dvěma dětskými pokoji z něhož jeden je momentálně využíván jako posilovna. Na chodbě v patře je stropní výlez na prostornou půdu o velikosti 30m2 a výškou v nejvyšším bodě 2,2m.
Díky částečnému vybavení a možnosti nastěhování od ledna 2026 je dům připraven k pohodlnému bydlení. V celém domě je podlahové vytápění s topnými tělesy v každé koupelně, které je stejně jako ohřev TUV řešeno tepelným čerpadlem vzduch/voda. V letních měsících zcela určitě oceníte klimatizační splitovou jednotku, která dá celému domu komfort za každého počasí.
Dům se nachází na okraji obce v klidné venkovské zástavbě, která zaručuje soukromí a příjemné prostředí v blízkosti vodní nádrže Mlýnice. Plocha pozemku činí 730 m² a zajišťuje dostatek prostoru pro terénní úpravy podle vašich představ. Užitkovou vodu zajišťuje podzemní retenční nádrž na dešťovou vodu 8m3. Zdrojem pitné vody je vlastní vrtaná studna. Odpadní vody jsou řešeny pomocí ČOV. Okolí domu nabízí dostupnost autobusové dopravy a hlavní silnice Liberec - Frýdlant.
V případě zájmu o bližší informace nebo osobní prohlídku mě prosím kontaktujte prostřednictvím zpráv či komunikační platformy.
Property characteristics
| Available from | 01/01/2026 | 
|---|---|
| Building construction | Brick | 
| Fully furnished | Partly | 
| Ownership | Personal | 
| Location of the house | Separate | 
| Land space | 730 m² | 
| Condition | New-build | 
|---|---|
| Layout | 5+kk | 
| Listing ID | 961487 | 
| EPC | C - Economical | 
| Usable area | 150 m² | 
| Price per unit | CZK 65,000 / m2 | 
What does this listing have to offer?
| Parking | 
| Terrace: 40 m² | 
What you will find nearby
Still looking for the right one?
Set up a watchdog. You will receive a summary of your customized offers 1 time a day by email. With the Premium profile, you have 5 watchdogs at your fingertips and when something comes up, they notify you immediately.

















