Plot for sale • 862 m² without real estateVlastějovice - Vlastějovice, Středočeský Region
Vlastějovice - Vlastějovice, Středočeský RegionNabízím k prodeji rozestavěný RD s pozemkem o rozloze 862 m², který je v mém osobním vlastnictví. Tento pozemek skýtá ideální příležitost pro rodinnou výstavbu či podnikatelskou realizaci, neboť se jedná o území vhodné k výstavbě dle aktuálních předpisů.
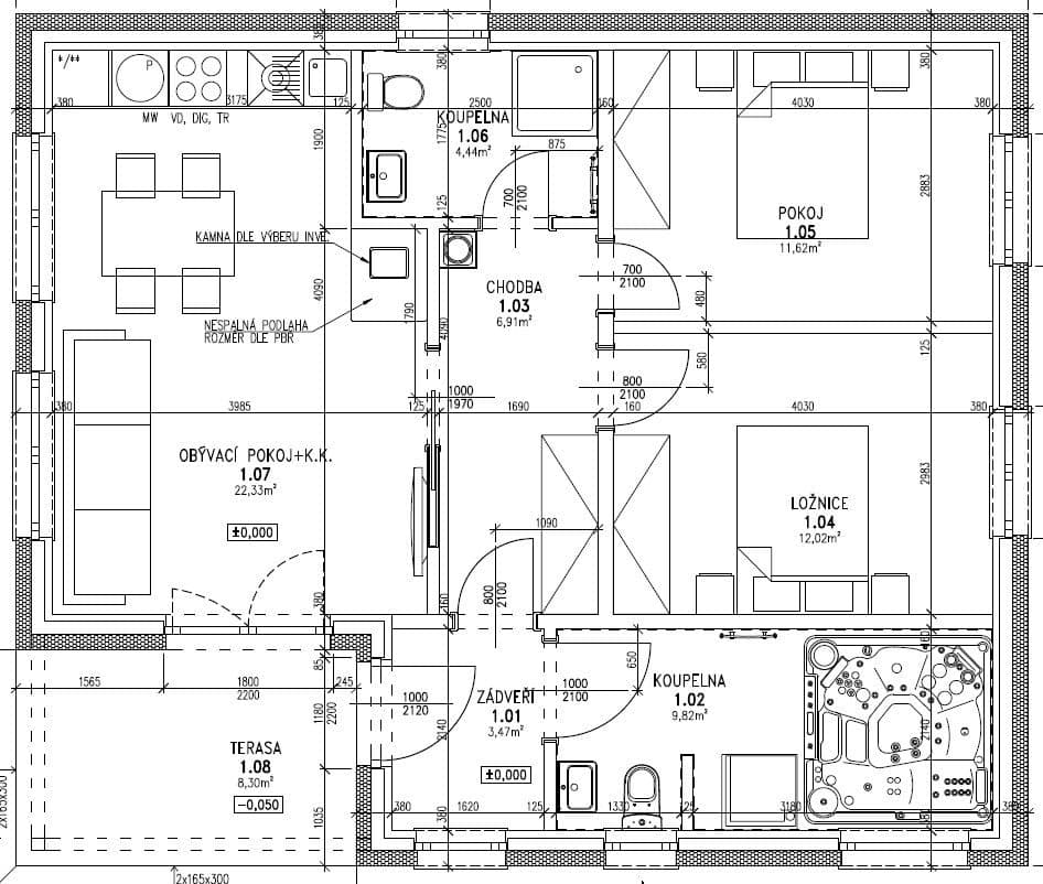
Na pozemku je již schválená stavba rodinného domu a hotové základové pasy pro dům, schválená projektová dokumentace a stavební povolení.
Pozemek se nachází na atraktivní lokalitě a nabízí potenciál pro rozvoj dle individuálních představ. Výhodou této nabídky je jednoduchost převodu vlastnictví a flexibilita využití pozemku, který čeká na nového majitele, jenž jej využije k naplnění svých stavebních a investičních záměrů.
V případě zájmu o bližší informace a sjednání prohlídky mne prosím kontaktujte skrz zprávy / komunikační platformu.
Cena dohodou
Property characteristics
| Available from | 03/11/2025 |
|---|---|
| Land type | Building |
| Land space | 862 m² |
| Listing ID | 961350 |
|---|---|
| Ownership | Personal |
| Price per unit | CZK 5,800 / m2 |
What you will find nearby
Still looking for the right one?
Set up a watchdog. You will receive a summary of your customized offers 1 time a day by email. With the Premium profile, you have 5 watchdogs at your fingertips and when something comes up, they notify you immediately.





