Flat to rent 2 bedroom • 119 m² without real estate, Bavaria
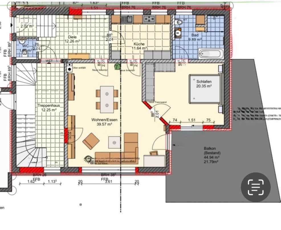
, BavariaPublic transport 2 minutes of walking • Parking • GarageThis freshly gutted 2-room apartment on the ground floor (situated on a slope facing south) of an EE70 house (completely renovated in 2025, built in 1975) offers first-class living comfort over approximately 119 m².
The sunny, partly covered balcony facing south (approximately 45 m², of which about 22 m² count as living space, accessible from over 2 rooms) extends the living area outdoors. It is located on the south-facing slope.
The rooms are very spacious and bathed in light through large windows.
The apartment is ideal for single individuals or couples.
It is situated in a 3-party building.
In the basement, there is a commercial unit/practice.
On the ground floor and the upper floor, there is one rental apartment each.
Layout:
– 1 bedroom
– 1 very generous living/dining area
– 1 kitchen with fitted kitchen
– 1 en-suite bathroom (accessible only from the bedroom) with a level, open shower and bathtub (newly renovated)
– 1 guest WC
– large entrance area with a separate front door (steps)
– possible entrance via the rear courtyard or through the existing garage via the common passage
– approximately 29 m² garage with electric door as well as pre-wiring for an e-charging station
– courtyard access in front of the garage as an additional parking space
Please note that the photos show the apartment in its unfinished state.
Centrally located on Bahnhofstraße – only about a 2-minute walk from the train station. Shops, restaurants, and nature (Rezat) are in the immediate vicinity. It enjoys a quiet location despite its proximity to the train station – ideal for those seeking tranquility and for couples.
– Underfloor heating via a heat pump
– Triple-glazed windows
– Electric shutters
– Hot water provided by an instantaneous water heater
– Lock system
– Integrated spotlights throughout the apartment
– High-quality vinyl flooring, as well as high-quality ceramic tiles in the bathroom
– White interior doors
– Controlled supply and exhaust ventilation
– Private garage directly in front of the front door for €50 per month (with pre-wiring for an e-charging station)
– Fitted kitchen including all appliances (except refrigerator) for €50.00 per month
We place great importance on responsible and reliable tenants.
Ideal for singles or couples.
Pets are allowed by arrangement.
Requirements:
Stable income, non-smoking apartment, and a Schufa report or tenant self-disclosure.
If you are seriously interested, we look forward to hearing from you.
Property characteristics
| Age | Over 5050 years |
|---|---|
| Condition | After reconstruction |
| Listing ID | 961340 |
| Price per unit | €11 / m2 |
| Available from | 01/12/2025 |
|---|---|
| Layout | 2 bedroom |
| Usable area | 119 m² |
What does this listing have to offer?
| Balcony | |
| Parking |
| Garage | |
| MHD 2 minutes on foot |
What you will find nearby
Still looking for the right one?
Set up a watchdog. You will receive a summary of your customized offers 1 time a day by email. With the Premium profile, you have 5 watchdogs at your fingertips and when something comes up, they notify you immediately.



















