House for sale 5+1 • 176 m² without real estate, Baden-Württemberg
A Home with Style, Serenity, and a View
This modern single-family house combines architecture, comfort, and quality of life at the highest level. Located in an idyllic cul-de-sac in a new, youthful residential area, it not only offers peace and privacy but also boasts a breathtaking long-distance view over the gentle hills of Untermünkheim.
Here, every day begins with sunshine, greenery, and the feeling of having arrived.
Untermünkheim – a community that unites tranquility, nature, and excellent infrastructure. A kindergarten, primary school, and a Netto supermarket are just a few minutes’ walk away. The quiet cul-de-sac location provides safety and security, making it ideal for families who value comfort and quality of life. Just minutes from Schwäbisch Hall, yet right in the midst of nature.
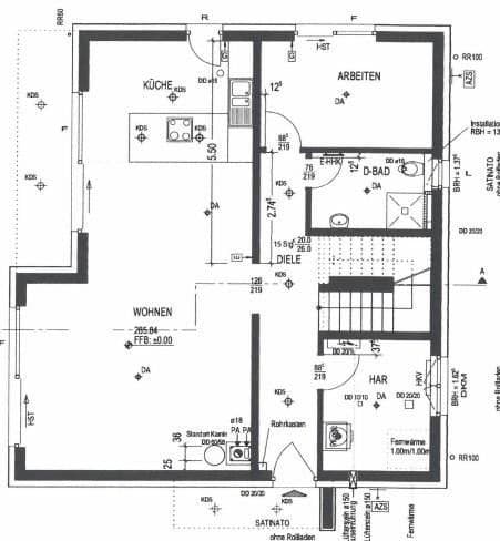
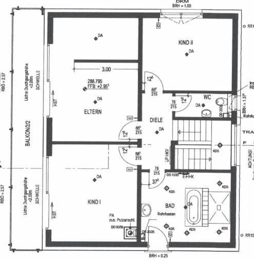
Property Details
• Property Type: Single-family house
• Living Area: 176 m²
• Plot: 703 m²
• Rooms: 5
• Bathrooms: 3
• Year Built: 2020
• Available from: 01.01.2026
• Purchase Price: €950,000
Features
• Solid construction (24 cm brick + 16 cm insulation)
• Underfloor heating, central ventilation, air conditioning (ground and upper floors)
• Fireplace connection (Schiedel) with LEDA pressure measurement
• Designer kitchen made of matte glass and granite with Miele/Bosch appliances
• 4 large sliding doors (3.5 m) with electric blinds/shutters
• 3 stylish bathrooms with walk-in showers
• Massive concrete stairs with oak wood treads
• Balcony (17 m²) with a stunning view
• Photovoltaic system (approx. 10 kWp with 10 kWh storage)
• Fiber-optic connection (Telekom & Vodafone)
Exterior
• 703 m² plot with an elaborately designed garden
• Large terrace with ceramic paving and a southwest orientation
• Approx. 150 m² of paved area
• App-controlled irrigation
• Preparation for a robotic mower including a garage
• Concrete cistern (6.3 m³) & underground trash niche
• 5 retaining walls (4 made of natural stone)
• Playground with a playhouse, slide, and swings
• Wooden pavilion
• Garden house
• Carport
• E-charging station
• Hedge, fence (each 40 m), and numerous fruit and berry bushes
Property characteristics
| Age | Over 5050 years |
|---|---|
| Condition | Very good |
| Listing ID | 961211 |
| Usable area | 176 m² |
| Total floors | 1 |
| Available from | 01/01/2025 |
|---|---|
| Layout | 5+1 |
| EPC | B - Very economical |
| Land space | 703 m² |
| Price per unit | €5,398 / m2 |
What does this listing have to offer?
| Balcony | |
| MHD 0 minutes on foot |
| Parking | |
| Terrace |
What you will find nearby
Still looking for the right one?
Set up a watchdog. You will receive a summary of your customized offers 1 time a day by email. With the Premium profile, you have 5 watchdogs at your fingertips and when something comes up, they notify you immediately.


























