
Flat for sale 2 bedroom • 50 m² without real estateBerlin Kreuzberg Berlin 10967
This renovated and move-in ready 2-room apartment is located on the second floor of the rear building of a well-maintained multi-family house – right in the heart of the sought-after Kreuzberg district in Berlin, in the popular Graefekiez.
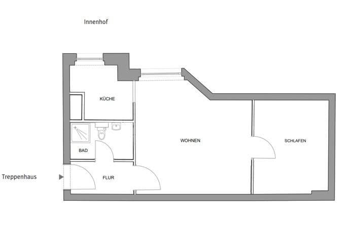
The multi-family house was comprehensively renovated in 2000 and offers modern living comfort in a central, urban location. The apartment has a living area of approximately 50 m² and also includes a basement storage compartment that provides additional space. Please note that the multi-family house does not have an elevator.
Over the past years, the multi-family house has been continuously maintained and remains in excellent overall condition. In 2020, the roof was renewed, and between 2021 and 2024 the gas lines, fresh water pipes, sewage pipes, and rainwater pipes were comprehensively renovated.
The property is situated in the popular Graefekiez in the heart of Berlin-Kreuzberg. This desirable location combines an urban lifestyle, cultural diversity, and a relaxed neighborhood atmosphere. The idyllic Landwehr Canal and the nearby Volkspark Hasenheide provide ideal spots for walks, sports, or enjoying some leisure time in the greenery.
In the immediate vicinity, everything needed for a pleasant daily life is within reach: numerous cafés, restaurants, and bars create a lively streetscape, while supermarkets such as Bio Company, Edeka, and Netto are conveniently accessible on foot. Additionally, pharmacies, bakeries, boutiques, and small local shops ensure excellent local provision.
The public transportation network is excellent: the U-Bahn stations “Schönleinstraße” (U8) and “Südstern” (U7) are only a few minutes’ walk away, offering quick connections to all parts of the city.
The Graefekiez is considered one of the most desirable residential areas in Kreuzberg – known for its lovingly renovated old buildings, high recreational value, and a creative, cosmopolitan community.
The move-in ready apartment was comprehensively renovated in October 2025 and now presents itself in a modern condition. As part of the renovation, the electrical system was completely renewed, solid hardwood flooring in a herringbone pattern was installed, the walls were redesigned, a modern loft door was fitted, and the bathroom was updated to contemporary standards.
Imprint
TRIA Invest GmbH
Schorlemmerstr. 2
04155 Leipzig
Contact:
Phone: +49 176 4185678 2
E-Mail: info@tria-invest.de
Legal form: Limited Liability Company
Management: Ngoc Bui, Viet Hoang
Registration Court: Amtsgericht Leipzig
Registration No.: HRB 38835
Property characteristics
| Age | Over 5050 years |
|---|---|
| Condition | After reconstruction |
| Floor | 2. floor out of 5 |
| EPC | C - Economical |
| Price per unit | €6,900 / m2 |
| Available from | 03/11/2025 |
|---|---|
| Layout | 2 bedroom |
| Listing ID | 961203 |
| Usable area | 50 m² |
What does this listing have to offer?
| Basement |
| MHD 1 minute on foot |
What you will find nearby
Still looking for the right one?
Set up a watchdog. You will receive a summary of your customized offers 1 time a day by email. With the Premium profile, you have 5 watchdogs at your fingertips and when something comes up, they notify you immediately.



















