Flat for sale 5+1 • 155 m² without real estateKöln Rodenkirchen Nordrhein-Westfalen 50996
Köln Rodenkirchen Nordrhein-Westfalen 50996Public transport 2 minutes of walking • Parking • GarageBelow is the English translation of the text:
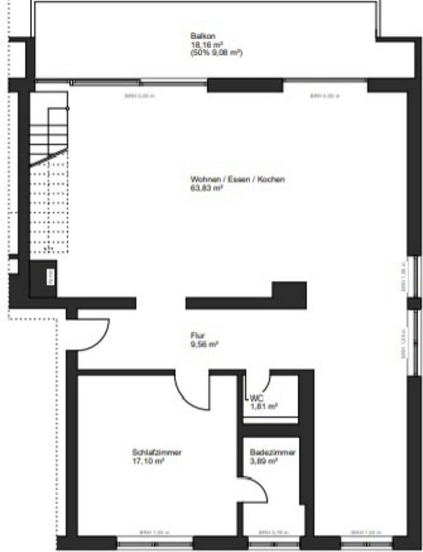
On approximately 155 m², this exceptional maisonette apartment unfolds with its unmistakable “house-inside-a-house” character into a residential gem full of style and atmosphere. The successful combination of timeless architecture and modern living comfort gives this property its distinctive appeal. An impressive gallery with ceilings up to 5.40 meters high and generous window fronts lets the living area shine in natural light while creating a sense of spaciousness and lightness.
From the moment you enter the apartment, the well-thought-out layout is evident: from the inviting hallway, you enter on the right into the master bedroom with an en suite bathroom – equipped with a shower and connections for a washing machine and dryer. Through a generous passage, the light-filled living area with floor-to-ceiling windows is revealed. A stylish fireplace, cleverly placed under the stairs leading to the gallery, ensures cozy hours. The adjoining terrace provides ample space for comfortable seating areas, a barbecue, or sun loungers – ideal for relaxing outdoors. The slightly separated yet open-plan kitchen with two windows fits harmoniously into the overall design scheme. A guest WC complements the offerings on the first level.
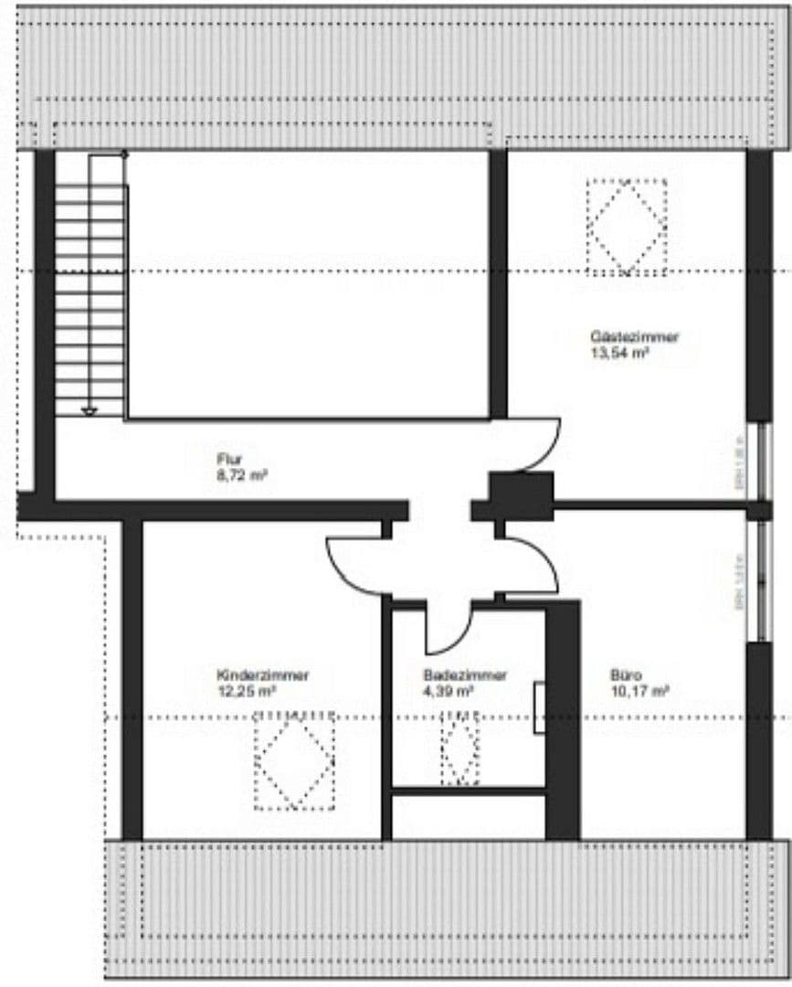
From the elegant gallery, the remaining living areas unfold. Three stylish rooms offer versatile possibilities – as children’s, guest, or workspaces – combining comfort with a retreat-like atmosphere. Another high-quality, fully equipped bathroom completes the second level. Here you will find a freestanding bathtub, a modern rain shower, as well as elegant concealed armatures and large-format tiles that underline the luxurious overall impression.
Partly renewed, triple-glazed floor-to-ceiling windows and fixed glazing with electrical roller shutters guarantee energy efficiency and contemporary living comfort. Air conditioning units on the upper level complete the offering. A communal garden of about 100 square meters is available for use. A double garage can be purchased for 49,000 euros.
This exclusive apartment combines stylish elegance, high-quality materials, and thoughtful architecture into a unique living experience – for discerning buyers who appreciate urban living with the tranquility and proximity of the Rhine in Cologne-Rodenkirchen.
The property is located in a preferred residential area of Cologne-Rodenkirchen, one of the most sought-after districts in the southern part of Cologne. Römerstraße 18 is situated in a mature, quiet residential environment predominantly characterized by well-maintained single-family and multi-family houses, and it is distinguished by its proximity to the Rhine as well as the vibrant town center, Maternusplatz.
The excellent infrastructure provides everything needed for daily requirements: supermarkets, bakeries, pharmacies, doctors, and a multitude of restaurants and cafés are conveniently within walking distance. Families benefit from a wide educational offer with several daycare centers, primary schools, and the renowned Gymnasium Rodenkirchen in the immediate vicinity. Leisure and sports opportunities are also varied – from the Forstbotanical Garden to the nearby city forest and the popular Rhine promenade, which invites you for walks, bike rides, and various sports activities.
Transportation connections are excellent. The Stadtbahn line 16 connects Rodenkirchen directly with Cologne’s city center, and via the nearby motorways A4 and A555 there is quick access to the supra-regional transport network. Cologne’s city center is easily reachable by car as well as by public transport (line 16). The Südstadt can be reached within approximately 10 minutes by car.
Overall, the location offers a perfect balance of urban proximity and relaxed residential quality. The combination of a riverside location, good infrastructure, and a green, family-friendly environment makes Römerstraße 18 one of the most attractive addresses in Cologne, with an exceptionally high quality of life.
5 generous rooms with solid wood parquet
Spacious terrace with southwest orientation
2 full bathrooms with shower, bathtub & guest WC
Gallery with a ceiling height of 5.40 meters
Fireplace and air conditioning
Double garage
La Rocca und Friebe Assets GmbH & Co. KG
Virchowstraße 43
51375 Leverkusen
Commercial Register: HRA 37758
Register Court: Local Court of Cologne
Property characteristics
| Age | Over 5050 years |
|---|---|
| Layout | 5+1 |
| Listing ID | 960617 |
| Price per unit | €6,432 / m2 |
| Available from | 03/11/2025 |
|---|---|
| Floor | 1. floor out of 2 |
| Usable area | 155 m² |
What does this listing have to offer?
| Balcony | |
| Garage | |
| MHD 2 minutes on foot |
| Basement | |
| Parking | |
| Terrace |
What you will find nearby
Still looking for the right one?
Set up a watchdog. You will receive a summary of your customized offers 1 time a day by email. With the Premium profile, you have 5 watchdogs at your fingertips and when something comes up, they notify you immediately.





























