House for sale 4+1 • 143 m² without real estate, Bavaria
I am selling a house in the city center, well-maintained, with central heating and a living room fireplace, equipped with a modern kitchen and an island from Nobilia.
The flooring is finished in black parquet as well as vinyl laminate; the walls are adorned with wallpaper, and the bathroom is also in excellent condition.
The house consists of three floors on a small plot where you can build a terrace. Year built:
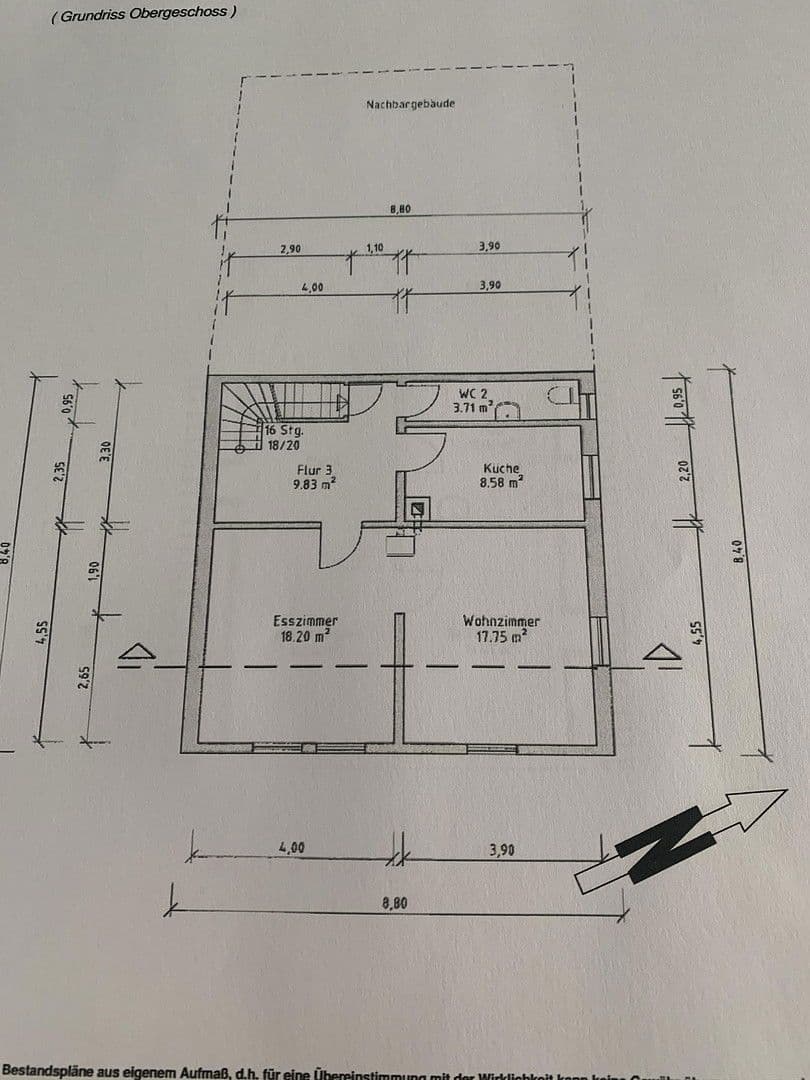
The top two floors and the roof were constructed in 1965, while the first floor and the vaulted cellar date back to 1876. All historical deeds are available, and there is a sketch from the engineering office with the exact plan and dimensions of the house.
Central heating has been in place since 2009, but in 2020 a new oil burner and oil tanks were installed.
The ground floor is wheelchair accessible and has a separate entrance.
The windows in the house were installed in 1992 and are all soundproofed. Only those in the mansard should be replaced, but the town of Rieneck has a subsidy program for houses in the old town with a 30% rebate.
The house is located in the city center, near a shop, a bank, a bus stop, an elementary school, and a kindergarten. Rieneck also has a train station.
Nearby is a large municipal parking lot.
On the house plan, the ground floor is marked only as storage space, as it was previously used for self-employed activities. Otherwise, it is livable and wheelchair accessible, with a separate entrance from the street, though it features low ceilings up to 2.20 meters. See the house plan.
Additional sales costs (notary, land registry, taxes, etc.) are to be borne by the buyer.
If you have any questions, write to me, and I will respond; you can also schedule an appointment to view the house.
Property characteristics
| Age | Over 5050 years | 
|---|---|
| Layout | 4+1 | 
| EPC | G - Extremely uneconomical | 
| Land space | 87 m² | 
| Price per unit | €1,112 / m2 | 
| Condition | Good | 
|---|---|
| Listing ID | 960473 | 
| Usable area | 143 m² | 
| Total floors | 3 | 
What does this listing have to offer?
| Wheelchair accessible | |
| MHD 0 minutes on foot | 
| Basement | |
| Terrace | 
What you will find nearby
Still looking for the right one?
Set up a watchdog. You will receive a summary of your customized offers 1 time a day by email. With the Premium profile, you have 5 watchdogs at your fingertips and when something comes up, they notify you immediately.

















