
Office to rent • 450 m² without real estateWilhelmstraße 78, , Baden-Württemberg
Wilhelmstraße 78, , Baden-WürttembergPublic transport 7 minutes of walking • LiftAre you looking for light-filled, flexibly designed spaces for your office, practice, or business?
Spacious commercial areas in a well-maintained office building in Reilingen offer you ideal conditions for modern work – bright, quiet, and conveniently located for transport.
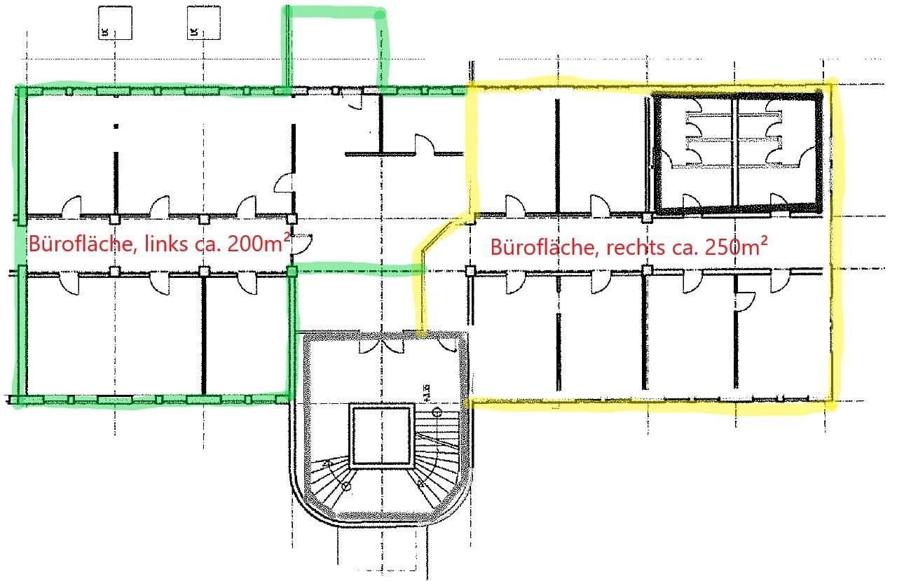
Rooms are available in various sizes ranging from 18m² to 450m². Custom layouts and divisions are possible.
The property is located in a centrally quiet area in Reilingen. The site offers good transport connections both by car and by public transport. In the vicinity, you will find numerous local retail shops, service providers, and dining options.
• Barrier-free access: Spacious elevator & large staircase
• Flexible use: Ideal for offices, agencies, practices, or law firms
• Custom design: Room layout and renovation subject to agreement
• Size as needed: Rooms available in various sizes from 18m² to 450m²
• Condition: Partially air-conditioned, renovated, or unrenovated
• Terrace: Small outdoor area – for instance, for breaks or outdoor meetings
• Social rooms as well as separate toilets and shower facilities
• Parking: Outdoor parking spaces & underground parking spaces available upon request
• Great location: Convenient transport links, central location in Reilingen
PUBLISHER
SPGI Grundstücks GmbH
Wilhelmstraße 78
68799 Reilingen
Phone +49 (0)6205 977496
Fax +49 (0)6205 977468
spgi@schaumaplast.de
Information in accordance with § 5 DDG (Telemedia Act)
Managing Directors: Bernhard Hauck, Markus Hoffmann
The company is based in Reilingen.
Registered at the Mannheim District Court, HRB 753795
VAT identification number: DE 453291862
Property characteristics
| Age | Over 5050 years |
|---|---|
| Condition | Good |
| Land office | 450 m² |
| Available from | 01/11/2025 |
|---|---|
| Listing ID | 960349 |
| Price per unit | €0 / m2 |
What does this listing have to offer?
| Balcony | |
| Lift |
| Wheelchair accessible | |
| MHD 7 minutes on foot |
What you will find nearby
Still looking for the right one?
Set up a watchdog. You will receive a summary of your customized offers 1 time a day by email. With the Premium profile, you have 5 watchdogs at your fingertips and when something comes up, they notify you immediately.




















