
Flat for sale 4+kk • 117 m² without real estateStuttgart Weilimdorf Baden-Württemberg 70499
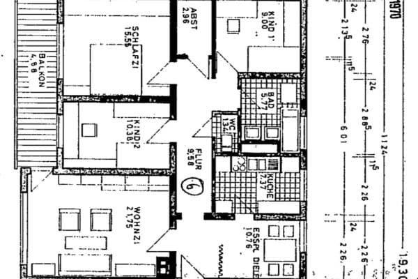
Stuttgart Weilimdorf Baden-Württemberg 70499Public transport less than a minute of walkingIn a central location of Stuttgart-Weilimdorf, this spacious 4.5-room attic apartment for sale is located in a well-maintained multi-family house. Blessed with abundant sunlight, the maisonette apartment offers plenty of space for a family spread over two living levels. The entrance hall leads directly into the open-plan living/dining area. A small fireplace provides cozy evenings here. The fully equipped kitchen was installed in 2001. The bedroom offers plenty of room, and a small storage room next to it serves as a convenient storage area. On the same level, there is also the ceiling-tiled daylight bathroom. Renovated in 2008, it is equipped with an oversized shower, washbasin, towel radiator, and toilet. From the middle of the living area, a solid wooden staircase leads to the developed attic. Starting from a spacious hobby room, you reach two further bedrooms, one of which is currently used as an office. A huge basement room with water and electricity connections, a communal laundry/drying room, as well as a bicycle storage room, belong to the apartment. In the communal garden with a terrace, you can design your own flower bed to suit your individual needs.
The apartment is located in a quiet yet central location of Stuttgart-Weilimdorf. In the town center at Löwenmarkt (which you can reach in about a 7-minute walk) you will find all shopping opportunities, doctors, and public transport (U6, U16 & Bus 90). An excellent range of schools and various sports facilities complete the offer.
Property characteristics
| Age | Over 5050 years |
|---|---|
| Layout | 4+kk |
| Listing ID | 960330 |
| Usable area | 117 m² |
| Condition | Good |
|---|---|
| Floor | 2. floor |
| EPC | F - Very uneconomical |
| Price per unit | €4,521 / m2 |
What does this listing have to offer?
| Basement | |
| Terrace |
| MHD 0 minutes on foot |
What you will find nearby
Still looking for the right one?
Set up a watchdog. You will receive a summary of your customized offers 1 time a day by email. With the Premium profile, you have 5 watchdogs at your fingertips and when something comes up, they notify you immediately.

















