
Office to rent • 38 m² without real estateHeilbronn Heilbronn Baden-Württemberg 74072
Heilbronn Heilbronn Baden-Württemberg 74072Public transport 2 minutes of walking • LiftModern, fully furnished office in the city center of Heilbronn – Flexible 4 workstations for your business:
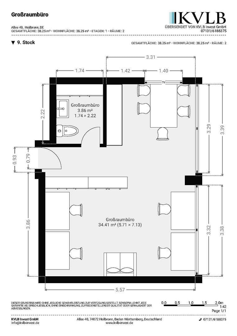
The office offers you:
• 4 individual workstations in the office area
• Offices for 2, 4 or 5 people
• A meeting table with a 75" Samsung Business Monitor (with writing function)
• Complete equipment (49" LG monitors, Logitech keyboards & mice)
• Fully fitted kitchen with dishes & cutlery
• High-quality swivel chairs, furnishings & filing cabinets
• Parking space available at an additional cost
Our rental offer is aimed at startups, creatives, and innovative companies.
Top location – centrally located in the city center, with a view of the vineyards from the 9th floor
The office is located in the shopping center in the heart of Heilbronn, right on the avenue, with the pedestrian zone within walking distance. Public restaurants, a hotel, as well as doctors’ offices & banks are in the immediate vicinity – perfect for your lunch break.
+++ Please always provide your address and telephone number when inquiring! This ensures quick contact and a smooth process. +++
Information in accordance with § 5 DDG
KVLB Services GmbH
Allee 40
74072 Heilbronn
Tel.: 07131/6188375
Registry entry:
Entry in the Commercial Register.
Registry Court: Amtsgericht Stuttgart
Registration number: B 783669
VAT Identification Number in accordance with §27a of the Umsatzsteuergesetz: DE352606175
Property characteristics
| Age | Over 5050 years |
|---|---|
| Condition | After reconstruction |
| Land office | 38 m² |
| Available from | 01/11/2025 |
|---|---|
| Listing ID | 960321 |
| Price per unit | €24 / m2 |
What does this listing have to offer?
| Wheelchair accessible | |
| MHD 2 minutes on foot |
| Lift |
What you will find nearby
Still looking for the right one?
Set up a watchdog. You will receive a summary of your customized offers 1 time a day by email. With the Premium profile, you have 5 watchdogs at your fingertips and when something comes up, they notify you immediately.












