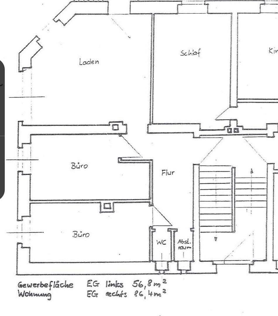
Office to rent • 57 m² without real estateJacobstraße 17, , Saxony
Available for rent is a small commercial unit on the ground floor at Jacobstraße 17 in Zwickau-Marienthal. The property is located at the intersection with Julius-Seifert-Straße, and since neither street is a main thoroughfare, the area is relatively quiet. The unit has an efficient layout, is well-suited for office use or for a sole proprietor, and will be available from February 1, 2024.
In the western part of Zwickau lies the Marienthal district. It is situated along the Marienthal stream, which flows into the Mulde to the north. Daily necessities can be found in the immediate vicinity, and public transportation in Marienthal is readily available.
Bus lines:
• Line 18: Neumarkt – Königswalde – Hartmannsdorf
• Line 21: Neumarkt – Brand
• Line 27: Municipal Hospital – Planitz Market
• Night bus line A: Neumarkt – Marienthal – Olzmannstraße – Neuplanitz – Oberplanitz – Cainsdorf – Wilkau-Haßlau – Schedewitz – City Centre – Neumarkt
Tram line:
• Line 4: Pölbitz – Neumarkt (Bosestraße) – Georgenplatz – Municipal Hospital
RIRE Assets Green GmbH
Bötzowstraße 26
10407 Berlin
Commercial Register: HRB223131 B
Registry Court: Charlottenburg District Court
Represented by:
Benedikt Richter
Property characteristics
| Age | Over 5050 years |
|---|---|
| Condition | After reconstruction |
| Land office | 57 m² |
| Available from | 01/07/2025 |
|---|---|
| Listing ID | 960115 |
| Price per unit | €5 / m2 |
What does this listing have to offer?
| MHD 4 minutes on foot |
What you will find nearby
Still looking for the right one?
Set up a watchdog. You will receive a summary of your customized offers 1 time a day by email. With the Premium profile, you have 5 watchdogs at your fingertips and when something comes up, they notify you immediately.

